Найти в Дзене
ЭТО ВАШ ИНТЕРЬЕР

Полное преображение крохотной "однушки" площадью 25 кв. метров за 700 тыс. рублей

Наша героиня давно мечтала о собственной квартире, и вот настал момент, когда она решилась на покупку данной жилплощади. "Хоть квартира довольно крохотная, зато своя" — говорит с улыбкой хозяйка. Оформление квартиры было решено доверить практикующему дизайнеру, так как на маленькой площади нужно было уместить несколько функциональных зон. Проект Прихожая Зону прихожей оформили в бело-серой цветовой палитре. На полу уложили плитку с узорами. Так же здесь расположилась открытая вешалка для одежды, обувница и банкетка. Под потолком организовали антресольные секции для хранения. Кухня Сразу при входе в основное пространство попадаешь в зону кухни. С правой стороны разместили небольшой угловой гарнитур, который выполнен в белом цвете. Фартук выложен из белой плитки. Часть стены украсили яркими обоями. На противоположной стене от гарнитура появилась встроенная система хранения до самого потолка. Столовая Кухню от столовой зонирует сдвижная стеклянная дверь. На полу уложили ламинат. Сразу пр
Оглавление

Наша героиня давно мечтала о собственной квартире, и вот настал момент, когда она решилась на покупку данной жилплощади. "Хоть квартира довольно крохотная, зато своя" — говорит с улыбкой хозяйка.

Оформление квартиры было решено доверить практикующему дизайнеру, так как на маленькой площади нужно было уместить несколько функциональных зон.

Проект

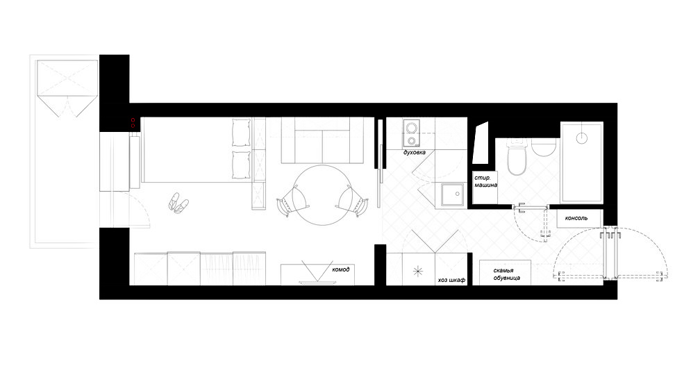
  • Местонахождение: г. Санкт-Петербург
  • Площадь квартиры: 25 кв. м
  • Владельцы: молодая девушка
  • Бюджет: примерно 700 тысяч руб.

Прихожая

Зону прихожей оформили в бело-серой цветовой палитре. На полу уложили плитку с узорами. Так же здесь расположилась открытая вешалка для одежды, обувница и банкетка. Под потолком организовали антресольные секции для хранения.

Кухня

Сразу при входе в основное пространство попадаешь в зону кухни. С правой стороны разместили небольшой угловой гарнитур, который выполнен в белом цвете. Фартук выложен из белой плитки. Часть стены украсили яркими обоями. На противоположной стене от гарнитура появилась встроенная система хранения до самого потолка.

Столовая

Кухню от столовой зонирует сдвижная стеклянная дверь. На полу уложили ламинат. Сразу при входе в комнату разместили небольшую столовую группу с диваном и телевизором.

Спальня

Зону спальни расположили возле окна. Здесь появилась кровать с мягкими бортами. Небольшой стеллаж в изголовье зонирует спальню и столовую. Напротив спального места встал большой белоснежный шкаф.

Если вам понравилась статья, то не забудьте поставить лайк и подписаться, чтобы не пропустить новый материал!

Так же пишите в комментариях, что вам понравилось в этом проекте, а что вызывает сомнения.

Если вам будет интересно, то заходите на мой второй новый канал)