Добавить в корзинуПозвонить
Найти в Дзене

Проект одноэтажного дома 89 м2 из бруса

Одноэтажный дом в финском стиле — это современное здание с удобной планировкой и особенной, узнаваемой архитектурой. Благодаря простой и лаконичной конструкции, а также красивой отделке фасадов, он станет отличным решением для загородного дома или дачи. Подойдет семье из двух-трех человек. В составе: гостиная, кухня, 2 спальни, ванная, туалет, прихожая, холл. Особенности: сауна, камин. Технические характеристики Дизайн Способ внешней отделки выбран традиционный для финских домов — окрашивание. Яркий красный цвет фасадов гармонирует с насыщенной темно-красной кровлей. На этом красном фоне ярко выделяются белые детали — цоколь, оконные и дверные рамы, ограждения и опоры крыльца, подшивы кровли. Крыльцо защищено двускатным навесом с фронтоном. Еще одно, аналогичное, крыльцо-терраса имеется с обратной стороны — это место для отдыха после сауны. Планировка Внутри имеется просторная дневная зона, образованная гостиной и кухней. Камин размещен здесь так, что позволяет любоваться
Оглавление
Проект одноэтажного дома 89 м2 из бруса - DTW0063
Проект одноэтажного дома 89 м2 из бруса - DTW0063

Одноэтажный дом в финском стиле — это современное здание с удобной планировкой и особенной, узнаваемой архитектурой. Благодаря простой и лаконичной конструкции, а также красивой отделке фасадов, он станет отличным решением для загородного дома или дачи. Подойдет семье из двух-трех человек.

В составе: гостиная, кухня, 2 спальни, ванная, туалет, прихожая, холл.

Особенности: сауна, камин.

Технические характеристики

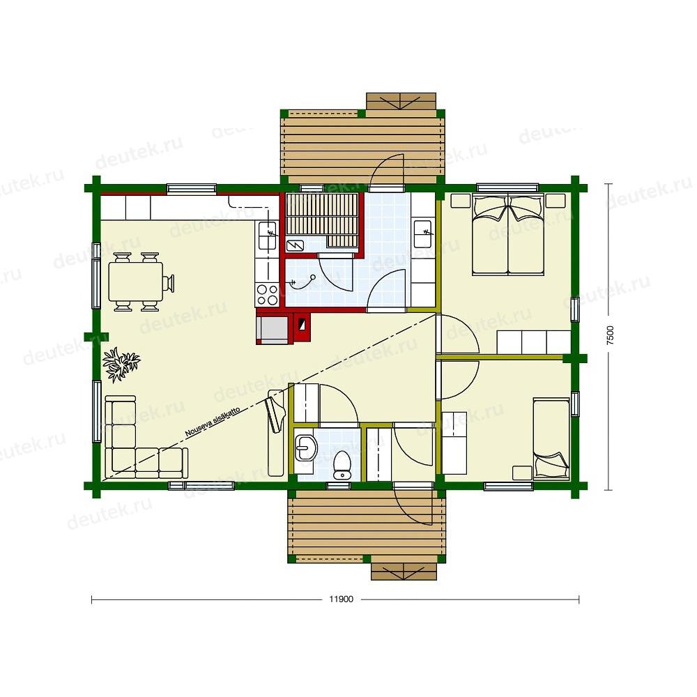
  • Общая площадь 89 м2;
  • Габариты 11.90×7.50 м;
  • Фундамент — ж/б лента;
  • Материал стен — клееный брус;
  • Перекрытия — по деревянным балкам;
  • Крыша — чердачная, с мягкой черепицей;
  • Фасадная отделка — краска.

Дизайн

Способ внешней отделки выбран традиционный для финских домов — окрашивание. Яркий красный цвет фасадов гармонирует с насыщенной темно-красной кровлей. На этом красном фоне ярко выделяются белые детали — цоколь, оконные и дверные рамы, ограждения и опоры крыльца, подшивы кровли. Крыльцо защищено двускатным навесом с фронтоном. Еще одно, аналогичное, крыльцо-терраса имеется с обратной стороны — это место для отдыха после сауны.

Планировка

Проект одноэтажного дома 89 м2 из бруса - DTW0063
Проект одноэтажного дома 89 м2 из бруса - DTW0063

Внутри имеется просторная дневная зона, образованная гостиной и кухней. Камин размещен здесь так, что позволяет любоваться огнем и отдыхающим на диване, и обедающим.

Напротив дневной зоны, через холл, находятся две спальни — взрослая и детская. Центр занимают хозяйственные помещения — холл, прихожая и туалет, сауна. В сауне парное отделение дополнено моечной, оттуда есть выход на заднюю террасу.

Все подробности проекта DTW0063 можно уточнить по телефону +7 (495) 175-30-40 с 09:00 до 19:00 по Москве. Бесплатный звонок по России — 8 (800) 350-03-23. Для приобретения проекта оставьте заявку на сайте.

DTW0063 – проект одноэтажного дома из бруса до 100 кв м c 2 спальнями

Подписывайтесь на канал, ставьте лайки.