Добавить в корзинуПозвонить
Найти в Дзене
DESIGNER

Крошечная студия для мамы с ребёнком на 23м² с очаровательным оформлением.

Здравствуйте и добро пожаловать на канал DESIGNER. Подписывайтесь и ставьте лайки - это очень помогает развитию канала. Проживать в небольшой студии даже в одиночку порой бывает ой как непросто. Но что делать, если на скромной площади в 25м² необходимо организовать место и для ребёнка? Сегодня мы рассмотрим проект крохотной студии на 23м² для мамы с ребёнком. Очевидной сложностью в данном случае является организация пространства. Спланировать все нужно таким образом, чтобы отдельная или относительно отдельная зона была у каждого проживающего. Итак, думаю стоит начать с обзора прихожей зоны. Основную часть стен было решено покрасить в белый, а стену, к которой прилегает дверь в чёрный. В качестве напольного покрытия используется кафельная плитка, имитирующая естественный камень. Основной стиль квартиры - минимализм. Именно поэтому используется подобная мебель или отсутствует некоторая привычная. Так, например, в прихожей встроены шкафы в бело-древесном оформлении, но нет обувницы, пуфа
Оглавление

Здравствуйте и добро пожаловать на канал DESIGNER. Подписывайтесь и ставьте лайки - это очень помогает развитию канала.

Проживать в небольшой студии даже в одиночку порой бывает ой как непросто. Но что делать, если на скромной площади в 25м² необходимо организовать место и для ребёнка?

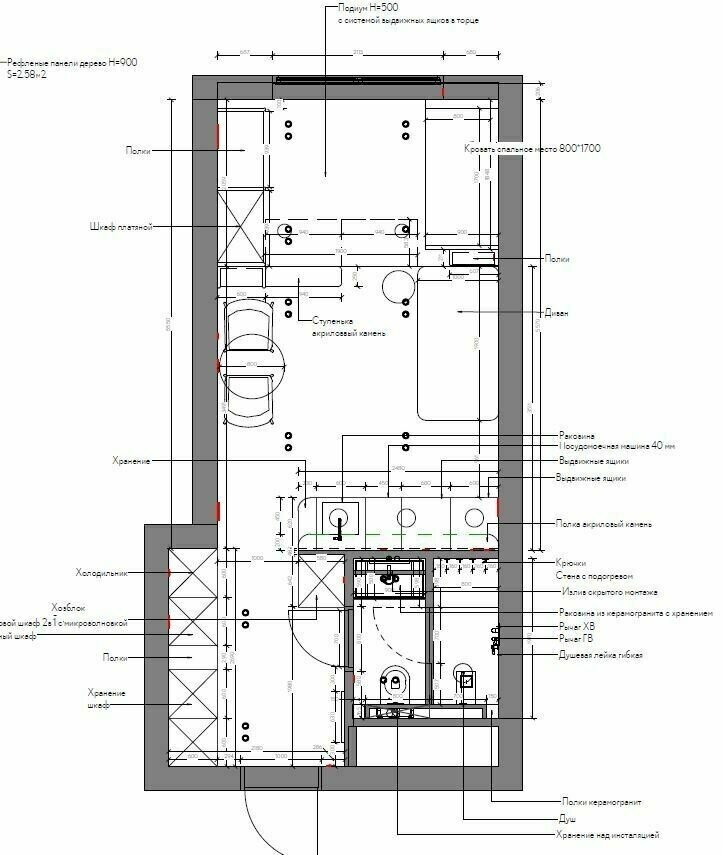
Сегодня мы рассмотрим проект крохотной студии на 23м² для мамы с ребёнком. Очевидной сложностью в данном случае является организация пространства. Спланировать все нужно таким образом, чтобы отдельная или относительно отдельная зона была у каждого проживающего.

Взято из: https://vk.com/niart
Взято из: https://vk.com/niart

Итак, думаю стоит начать с обзора прихожей зоны. Основную часть стен было решено покрасить в белый, а стену, к которой прилегает дверь в чёрный. В качестве напольного покрытия используется кафельная плитка, имитирующая естественный камень. Основной стиль квартиры - минимализм. Именно поэтому используется подобная мебель или отсутствует некоторая привычная.

Взято из: https://vk.com/niart
Взято из: https://vk.com/niart

Так, например, в прихожей встроены шкафы в бело-древесном оформлении, но нет обувницы, пуфа и других элементов. Тем не менее имеется округлое зеркало.

Ванная комната сильно отличается от ранее виденного визуала. В качестве основных оттенков используется чёрный мрамор и светлая древесина. Напротив входа установлена душевая зона. Справа же расположен подвесной унитаз чёрного цвета с инсталляцией и несколько полочек. Слева от входа установлена подвесная чёрная тумба со встроенной раковиной и зеркало.

Взято из: https://vk.com/niart
Взято из: https://vk.com/niart

Так как ванная комната получилась не очень вместительной, то часть техники и полочек было решено встроить в коридор. Получилось ненавязчиво и аккуратно.

Взято из: https://vk.com/niart
Взято из: https://vk.com/niart

Далее расположена кухня. Гарнитур выполнен из светлого дерева. Именно так оформлена мебель в прихожей зоне, часть из которой, вместе со встроенной техникой, является элементом кухни.

Несмотря на скромные размеры жилища, кухня получилась вместительной. В наличии имеется вся нужная техника, достаточное количество места для хранения и приготовления.

Взято из: https://vk.com/niart
Взято из: https://vk.com/niart

Обеденная зона представлена круглым столом чёрного цвета, а также парой стульев схожего оттенка.

Взято из: https://vk.com/niart
Взято из: https://vk.com/niart

Напротив расположена гостиная часть квартиры. Она состоит из бежевого дивана и небольшого кофейного столика. В качестве декора используются картины, а также элемент отделки стен из светлого дерева.

Взято из: https://vk.com/niart
Взято из: https://vk.com/niart
Взято из: https://vk.com/niart
Взято из: https://vk.com/niart

Удивительным образом, но на 23м² уместилась также и детская. Она располагается на небольшом подиуме, являющимся основной системой хранения вещей.

Взято из: https://vk.com/niart
Взято из: https://vk.com/niart

Детская, как и положено, оформлена в более красочном исполнении. В качестве основной мебель выступает голубой диван, пуф и стенка. Зонирование никто не отменял, поэтому гостиную от детской отделили при помощи плотной шторы.

Взято из: https://vk.com/niart
Взято из: https://vk.com/niart

Что в итоге?

Дизайнеру, как мне кажется, вполне удалось обустроить столь крохотную студию для проживания одного взрослого и одного ребёнка, с формальным разделением зон.

На этом у меня всё, не забывайте подписываться на канал и ставить лайки. До новых встреч.