Найти в Дзене
Филдс

Как дизайнер обыграла нестандартную планировку евротрёшки 70 м² для семейной пары

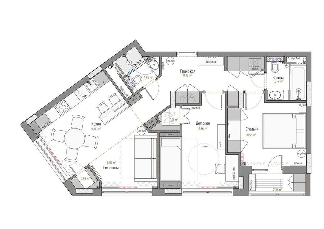
Дизайнер Лина Савина оформила евротрёшку 70 м² для семейной пары с ребенком. Из необычной планировки квартиры выжали максимум, удовлетворив все запросы владельцев. Планировка Квартира имеет нестандартную конфигурацию. Саму планировку создавали с нуля, поэтому удалось учесть все пожелания заказчиков. Кухня-гостиная Кухню и гостиную объединили в одно помещение. Благодаря двум окнам хорошо освещается каждый уголок комнаты. Рядом сформировали небольшую кладовую, за счет нее удалось расширить возможности хранения, а также предусмотреть место для крепления телевизора. Главным акцентным пятном в гостиной стал синий диван. Стену за ним украсили зеркалами в рамках из молдингов, которые создают эффект присутствия дополнительных окон. Гарнитур расположили линейно и дополнили барной стойкой. Она отделяет кухню от зоны отдыха. Помимо навесных шкафов предусмотрели антресольный верх, где можно хранить редко используемую посуду и технику. Филенки на фасадах перекликаются с молдингами на стенах. Сп
Оглавление

Дизайнер Лина Савина оформила евротрёшку 70 м² для семейной пары с ребенком. Из необычной планировки квартиры выжали максимум, удовлетворив все запросы владельцев.

  • Общая площадь: 70 м²
  • Место: Москва
  • Тип дома: новостройка
  • Количество комнат: евротрёшка
  • Высота потолка: 3 м
  • Кто здесь живет: семья с ребенком
  • Дизайнер: Лина Савина
  • Фото: Роман Мокров
  • Стилист: Настасья Корбут

Планировка

Квартира имеет нестандартную конфигурацию. Саму планировку создавали с нуля, поэтому удалось учесть все пожелания заказчиков.

Кухня-гостиная

Кухню и гостиную объединили в одно помещение. Благодаря двум окнам хорошо освещается каждый уголок комнаты. Рядом сформировали небольшую кладовую, за счет нее удалось расширить возможности хранения, а также предусмотреть место для крепления телевизора.

Главным акцентным пятном в гостиной стал синий диван. Стену за ним украсили зеркалами в рамках из молдингов, которые создают эффект присутствия дополнительных окон.

Гарнитур расположили линейно и дополнили барной стойкой. Она отделяет кухню от зоны отдыха. Помимо навесных шкафов предусмотрели антресольный верх, где можно хранить редко используемую посуду и технику. Филенки на фасадах перекликаются с молдингами на стенах.

Спальня

Спальню спланировали так, чтобы в изножье появилась ниша для встроенной системы хранения. Внутри нее предусмотрели углубление для телевизора.

Одну из стен выделили акцентными обоями с растительным принтом. Зеркало на смежной стене создает эффект обнимающего изголовья.

Детская

В детской запланировали сразу две ниши, в которых спрятали кровать и рабочий стол.

-7

Для дополнительного зонирования использовали разную отделку — спальную зону выделили обоями, а рабочую — грифельной краской. Также в комнате нашлось место для изолированной гардеробной.

Прихожая

Прихожая получилась вытянутой формы с отходящими от нее в разные стороны коридорами. Прямо напротив входной двери установили встроенный шкаф для верхней одежды.

В коридоре при входе в кухню параллельно друг другу запланировали две ниши со стеклянными полками. А в коридоре, ведущем в спальню, обустроили хозблок со стиральной машинкой.

-10

Санузел

В квартире два санузла, для каждого из которых избрали свою отделку. Большую ванную оформили в темных тонах. Все, кроме потолка, облицевали плиткой. Акцентной керамикой с геометричным принтом выделили стену за чашей ванны.

В маленьком санузле скомбинировали краску и три вида плитки. Тумбу под раковину изготовили на заказ, чтобы она идеально вписалась в необычную конфигурацию помещения.

Интересные мнения в комментариях приветствуются. Если материал понравился — ставь лайк!

🖤 Филдс — это не только блог на Дзене, но и магазин дизайнерских предметов интерьера. Заходите на сайт, чтобы увидеть мебель, которую дизайнеры выбирают для своих проектов.