Найти в Дзене

Минимализм – стиль, рожденный ленью архитекторов или тонкое искусство видеть красоту без «мишуры»?

«Скучная коробка» — вот что скажет большая часть сторонников классической архитектуры.
Но не все так просто. Стиль минимализм в архитектуре – это простые формы и фасады со сложной и выверенной планировкой внутренних пространств.
Посмотрим пример интересного проекта в стиле минимализм.
Площадь: 340 кв. м
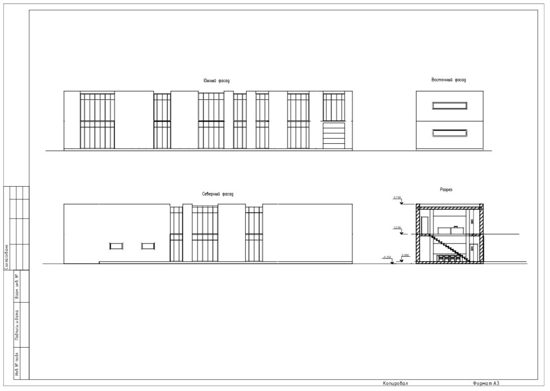
Регион: Ленинградская область, поселок Ахматово Для минимализма свойственны большие светлые помещения. Поэтому комнаты проектируются с окнами на две стороны, дом просвечивает насквозь витражами, от этого пространства кажутся еще больше. Второй свет и центр дома: столовая и большой семейный стол становятся центром притяжения. Вокруг этого помещения проектируется весь дом. «Корабль» — система переходов, как трапы, вокруг второго света сделали дом похожим на корабль, пригородный лайнер с кормой, носовой частью по схеме планировок. Да и сами конструкции, использованные при проектирование дома в стиле минимализм, чем-то похожи на «скелет» корабля. Внимание к материалам: в минимализме исполь

«Скучная коробка» — вот что скажет большая часть сторонников классической архитектуры.
Но не все так просто. Стиль минимализм в архитектуре – это простые формы и фасады со сложной и выверенной планировкой внутренних пространств.

Посмотрим пример интересного проекта в стиле минимализм.
Площадь: 340 кв. м
Регион: Ленинградская область, поселок Ахматово

Для минимализма свойственны большие светлые помещения. Поэтому комнаты проектируются с окнами на две стороны, дом просвечивает насквозь витражами, от этого пространства кажутся еще больше.

Второй свет и центр дома: столовая и большой семейный стол становятся центром притяжения. Вокруг этого помещения проектируется весь дом.

-2

«Корабль» — система переходов, как трапы, вокруг второго света сделали дом похожим на корабль, пригородный лайнер с кормой, носовой частью по схеме планировок. Да и сами конструкции, использованные при проектирование дома в стиле минимализм, чем-то похожи на «скелет» корабля.

-3

Внимание к материалам: в минимализме используют современные материалы. Сталь, стекло, бетон безусловно подчеркивают и обогащают этот стиль.

Планировка коттеджа: в левом крыле отдельный бассейн со вторым светом, в центре дома кухня-столовая и отделенная гостиная с камином, на первом этаже есть отдельная гостевая, а на втором хозяйская и две детских. В правом крыле гараж для теплолюбивой хозяйки дома и спортзал над ним для хозяина дома. Проектирование дома в духе минимализма – это простота и выветренность пропорций.

-4

Конструктивная схема дома не такая простая:
– Фундамент стоит на сваях собранных ростверком из-за плохих почв.
– Конструкция дома монолитно-каркасная, что было необходимо из-за того, что стен у дома почти нет, он весь состоит из витражей. В этом случае необходимы несущие колонны внутри.
– Блок бассейна оторван деформационным швом от основного дома.
– Крыши на фасадах кажутся плоскими, но, на самом деле, они состоят из наклонных ферм и небольшого подчердачного пространства.

-5

А вам нравится минимализм в архитектуре или кажется, что чего-то не хватает?