Добавить в корзинуПозвонить
Найти в Дзене

Проект "РАЗУМ" 110 м2 одноэтажного дома +50 м2 бонусом на чердаке под 2 спальни

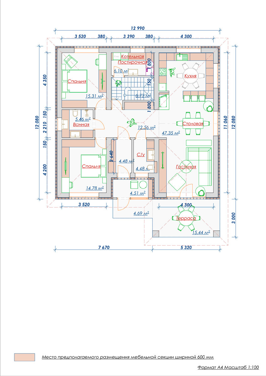
Планировка полностью разрабатывалась на семейном совете семейно пары заказчиков. Хотя дом кажется изначально не большим, но зато есть небольшой секрет - бонус на втором этаже. Что в итоге даёт 4 спальни в доме. И отличительной чертой этого дома является терраса спереди дома! Очень удобно кстати будет - пришли гости - и чтобы не ждать сразу сели под навес в зону отдыха) Планировка понятна, как 5 пальцев одной руки: на входе уборная чтобы помыть руки и пойти есть на кухню. А ванная поближе к спальням, она между ними. Обычно для всех гудящая котельная в глубине дома за лестничной клеткой, смежно с кухней и заодно там появляется труба на крыше. Есть также застеклённый холодный тамбур - очень хорошая "штука" для любого дома - чтобы хорошо удерживать тепло или холод. Терраса спереди, а это значит что позади дома что-то Вам будет мешать. И к тому же это на американский - европейски манер - когда дом "утоплен" в глубине участка и вся красота проезжающим спереди - ЧТОБЫ ЗАВИДОВАЛИ! Поз
3D Визуализация №1
3D Визуализация №1

Планировка полностью разрабатывалась на семейном совете семейно пары заказчиков.

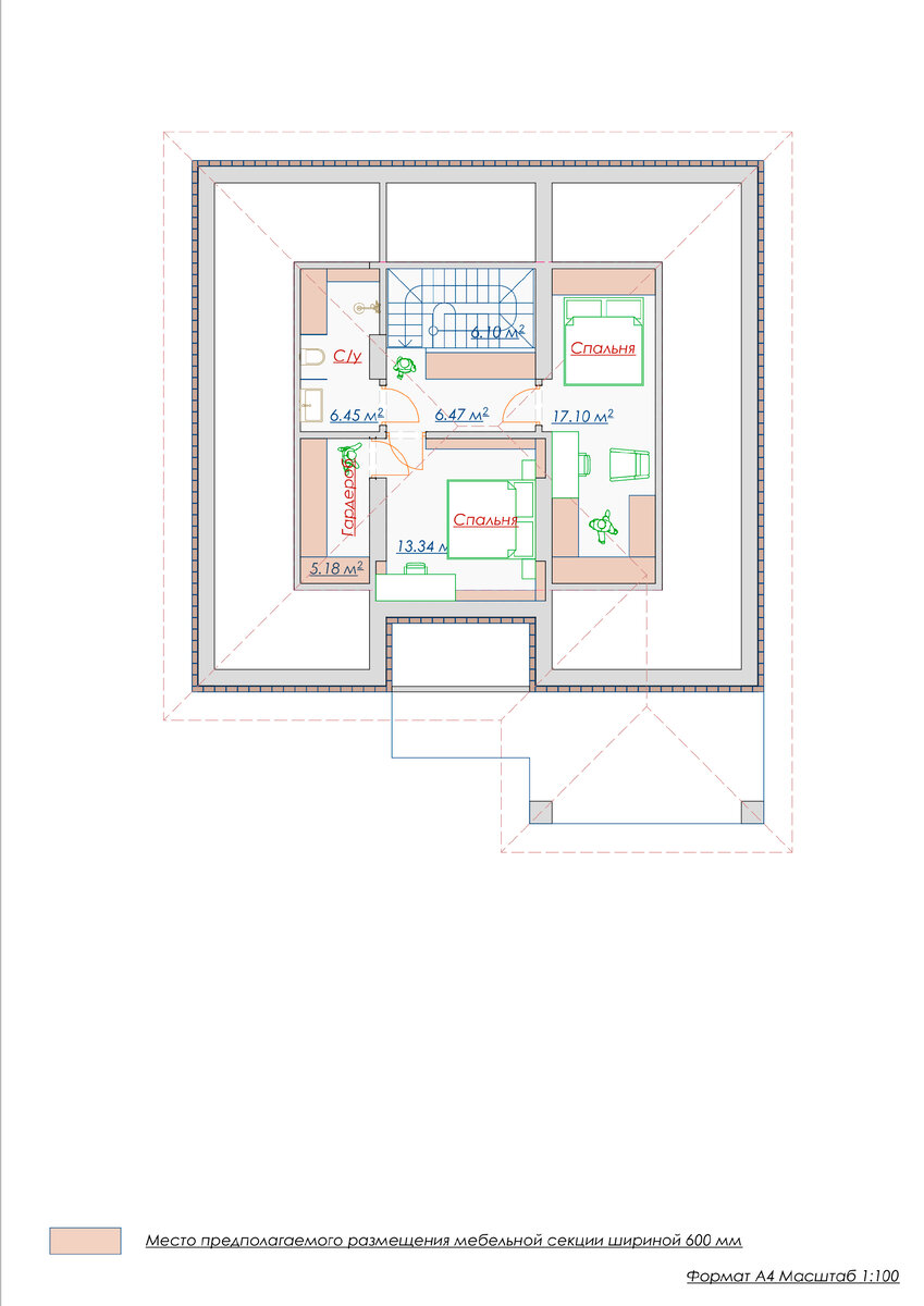
Хотя дом кажется изначально не большим, но зато есть небольшой секрет - бонус на втором этаже. Что в итоге даёт 4 спальни в доме.

И отличительной чертой этого дома является терраса спереди дома! Очень удобно кстати будет - пришли гости - и чтобы не ждать сразу сели под навес в зону отдыха)

3D Визуализация №2
3D Визуализация №2

Планировка понятна, как 5 пальцев одной руки: на входе уборная чтобы помыть руки и пойти есть на кухню.

А ванная поближе к спальням, она между ними.

Обычно для всех гудящая котельная в глубине дома за лестничной клеткой, смежно с кухней и заодно там появляется труба на крыше.

Есть также застеклённый холодный тамбур - очень хорошая "штука" для любого дома - чтобы хорошо удерживать тепло или холод.

3D Визуализация №3
3D Визуализация №3

Терраса спереди, а это значит что позади дома что-то Вам будет мешать. И к тому же это на американский - европейски манер - когда дом "утоплен" в глубине участка и вся красота проезжающим спереди - ЧТОБЫ ЗАВИДОВАЛИ!

3D Визуализация №4
3D Визуализация №4

Позади дома простое фасадное решение. Без заморочек и лишних трат денег.

3D Визуализация №5
3D Визуализация №5

В зоне обеденного стола панорамное окно, как и в приоритете на главном фасаде из кирпича.

Ну что убедил?) Пора задуматься, а то цены на газосиликатный блок упали ниже "теневого" плинтуса!