Найти в Дзене
InteriorLine

Почему хороший дизайн-проект стоит дорого?

Многим заказчикам сложно понять почему цены на проект сильно отличаются у разных дизайнеров. Хочу осветить вопрос ценообразования и объяснить отчего качественный проект не может стоить дешево.
Полнота проекта и его проработанность
При выборе дизайнера стоит обратить внимание на то, насколько проработаны чертежи, есть ли спецификации на материалы. То есть: прикладной проект или концептуальный.
Дизайнер должен разрабатывать интерьер исходя из вашего бюджета и предлагать материалы подходящей ценовой категории. Мебель на плане планировке должна быть реальных размеров в соответствии со спецификацией иначе в итоге у вас может не встать диван или кухонный гарнитур, или светильники окажутся непропорциональными помещению, или по абстрактным вещам нельзя будет найти аналоги. Хорошо, когда произведен расчёт освещенности.
Чем более полный проект, тем больше времени и сил у исполнителя он занимает. Образование
Работа дизайнера сложносоставная и требует большого багажа знаний. Большим преимущество

Многим заказчикам сложно понять почему цены на проект сильно отличаются у разных дизайнеров. Хочу осветить вопрос ценообразования и объяснить отчего качественный проект не может стоить дешево.

Полнота проекта и его проработанность
При выборе дизайнера стоит обратить внимание на то, насколько проработаны чертежи, есть ли спецификации на материалы. То есть: прикладной проект или концептуальный.
Дизайнер должен разрабатывать интерьер исходя из вашего бюджета и предлагать материалы подходящей ценовой категории. Мебель на плане планировке должна быть реальных размеров в соответствии со спецификацией иначе в итоге у вас может не встать диван или кухонный гарнитур, или светильники окажутся непропорциональными помещению, или по абстрактным вещам нельзя будет найти аналоги. Хорошо, когда произведен расчёт освещенности.
Чем более полный проект, тем больше времени и сил у исполнителя он занимает.

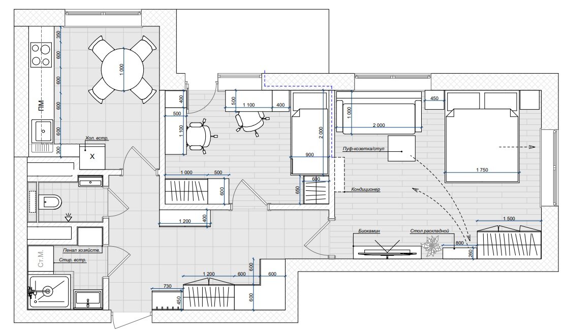
Планировка с реальными размерами мебели
Планировка с реальными размерами мебели

Образование
Работа дизайнера сложносоставная и требует большого багажа знаний. Большим преимуществом здесь является университетское образование, которое оттачивает чувство вкуса и стиля у дизайнера годами упражнений под руководством профессиональных преподавателей.
Также важно регулярно обновлять эти знания, быть в курсе новинок, совершенствовать свой художественный вкус. Курсы и выставки стоят денег.
Дизайнеры с портфолио
У дизайнеров с опытом и реализованными объектами проект стоит дороже, но есть и уверенность в том, что результат вам понравится, и при заказе авторского надзора будет исполнен в соответствии с визуализациями.

Если вы не готовы потратиться на полный проект?
Возьмите консультацию опытного дизайнера. Концепции, набросанной специалистом, вы сможете придерживаться и создать прекрасный интерьер. Специалист на основе своего опыта и знаний материалов расскажет вам о том, какие отделочные и мебель использовать и где их лучше приобрести.

Пример мудборда-консультации
Пример мудборда-консультации