Добавить в корзинуПозвонить
Найти в Дзене
Филдс

Места хватило всем: как дизайнер оформила большую квартиру 153 м² в Уфе для семьи с двумя детьми

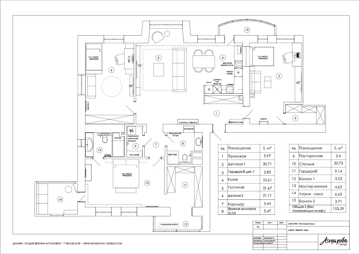
Дизайнер Евгения Астахова оформила четырехкомнатную квартиру 153 м² в центре Уфы для семьи с двумя детьми. Интерьер служит отражением своих хозяев — в нём есть и мягкие цветовые сочетания, и буйство красок. Планировка В результате перепланировки гостиную увеличили за счёт коридора, а одно из помещений переоборудовали в гардеробную при спальне. Сыновьям-подросткам достались две почти одинаковые по площади комнаты. Гостиная Гостиную обустроили рядом с эркером. У окна повесили зеркало, что позволило максимально увеличить инсоляцию комнаты. Сам эркер выделили цветом. Бледно-зеленые стены и потолок соотносятся с обивкой кресла и столешницей кофейного столика. Главной фишкой интерьера стало стеклянное панно с подсветкой в ТВ-зоне. После заката оно преображается, подчеркивая индивидуальность интерьера. Кухня Кухня получилась очень элегантной. Гарнитур построили Г-образно. Блок с пеналами скрыли в нише — его не видно при входе в комнату. Один из шкафов сделали витринным, он и хрустальная л
Оглавление

Дизайнер Евгения Астахова оформила четырехкомнатную квартиру 153 м² в центре Уфы для семьи с двумя детьми. Интерьер служит отражением своих хозяев — в нём есть и мягкие цветовые сочетания, и буйство красок.

  • Общая площадь: 153 м²
  • Место: Уфа
  • Количество комнат: 4
  • Кто здесь живет: семья с двумя детьми
  • Фото: Роман Спиридонов
  • Стилист: Эльмина Гай

Планировка

В результате перепланировки гостиную увеличили за счёт коридора, а одно из помещений переоборудовали в гардеробную при спальне. Сыновьям-подросткам достались две почти одинаковые по площади комнаты.

Гостиная

Гостиную обустроили рядом с эркером. У окна повесили зеркало, что позволило максимально увеличить инсоляцию комнаты.

Сам эркер выделили цветом. Бледно-зеленые стены и потолок соотносятся с обивкой кресла и столешницей кофейного столика.

-3

Главной фишкой интерьера стало стеклянное панно с подсветкой в ТВ-зоне. После заката оно преображается, подчеркивая индивидуальность интерьера.

Кухня

Кухня получилась очень элегантной. Гарнитур построили Г-образно. Блок с пеналами скрыли в нише — его не видно при входе в комнату. Один из шкафов сделали витринным, он и хрустальная люстра подчеркивают статусность интерьера.

Сдержанную цветовую гамму разбавили акцентными зелеными стульями в обеденной зоне.

-6

Спальня

Интерьер спальни оформили в спокойных тонах. В отделке скомбинировали два вида обоев. За разнообразие фактур отвечает стеганая обивка кровати и рифленые фасады комода.

На лоджии при спальне обустроили лаунж-зону для отдыха хозяина, которую оформили в неожиданном африканском стиле. Вторую лоджию присоединили к гардеробной — там находится туалетный столик хозяйки.

-8

Детские

Помещения для братьев похожи, но в тоже время отличаются. В интерьере обеих комнат присутствуют яркие цвета и классические черты — молдинги и высокие карнизы.

В обеих похожий набор функциональных зон — спальное и рабочие места, системы хранения. Большую часть мебели детских выполнили на заказ по эскизам дизайнера.

Прихожая

Несмотря на наличие большой гардеробной, в прихожей предусмотрели дополнительный шкаф для верхней одежды. Часть его фасадов сделали зеркальными, чтобы визуально расширить пространство.

-11

На входе в гостиную разместили комод, над которым повесили зеркало в зеркальной раме.

Санузлы

В квартире два санузла: один при спальне, второй — в коридоре. Оба помещения полностью облицевали плиткой, однако настроение у них получилось совершенно разное. Один выглядит более задорным за счет жёлтой акцентной стены, а другой — более сдержанным, но не без изюминки, которую создают латунные аксессуары.

Интересные мнения в комментариях приветствуются. Если материал понравился — ставь лайк!

🖤 Филдс — это не только блог на Дзене, но и магазин дизайнерских предметов интерьера. Заходите на сайт, чтобы увидеть мебель, которую дизайнеры выбирают для своих проектов.