Добавить в корзинуПозвонить
Найти в Дзене

Каркасный дом 9х10. Чертежи и ведомость метариалов. Показываю по шагам.

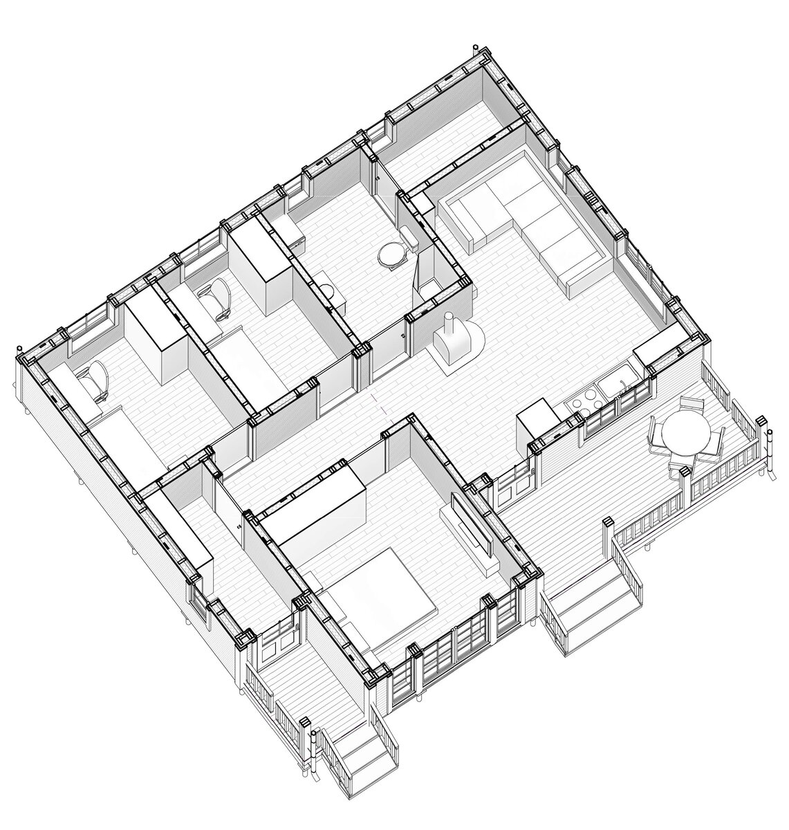
Всем привет друзья! В этой записи покажу вам проект каркасного дома размером 9х10,5 м., общей площадью 83 кв.м. Это одноэтажный каркасный дом с террасой под общей крышей. В доме располагаются- 3 спальни, прихожая, техническое помещение, санузел, большая кухня-гостиная и открытая терраса.​ Фундамент дома - винтовые металлические сваи диам. 108 мм. с оголовками 200х200 мм. Ростверк деревянный, выполнен из доски 50х200 собранной в балки.​ Цокольное перекрытие из доски 50х200 мм., с утеплением 200 мм. между балок перекрытия. Чёрный пол из ОСП-3 толщ. 18 мм.​ Наружные и несущие стены запроектированы из доски 50х150. Перегородки из доски 50х100. В качестве способа обеспечения жёсткости дома, предусмотрена врезка укосин в наружные и внутренние стеновые панели дома.  Утепление стен между стоек каркаса составляет 150 мм. Что бы получить толщину утепления наружных стен в 200 мм, вы можете выполнить горизонтальную обрешётку из бруска 50х50 снаружи или изнутри дома с дополнительным слоем утеплител

Всем привет друзья!

В этой записи покажу вам проект каркасного дома размером 9х10,5 м., общей площадью 83 кв.м.

-2

Это одноэтажный каркасный дом с террасой под общей крышей. В доме располагаются- 3 спальни, прихожая, техническое помещение, санузел, большая кухня-гостиная и открытая терраса.​

-3

Фундамент дома - винтовые металлические сваи диам. 108 мм. с оголовками 200х200 мм. Ростверк деревянный, выполнен из доски 50х200 собранной в балки.​

-4

Цокольное перекрытие из доски 50х200 мм., с утеплением 200 мм. между балок перекрытия. Чёрный пол из ОСП-3 толщ. 18 мм.​

-5

Наружные и несущие стены запроектированы из доски 50х150. Перегородки из доски 50х100. В качестве способа обеспечения жёсткости дома, предусмотрена врезка укосин в наружные и внутренние стеновые панели дома.  Утепление стен между стоек каркаса составляет 150 мм. Что бы получить толщину утепления наружных стен в 200 мм, вы можете выполнить горизонтальную обрешётку из бруска 50х50 снаружи или изнутри дома с дополнительным слоем утеплителя. ​

-6

Стропила дома выполнены из доски 50х200 мм. Чердак холодный.

-7

Сам проект и ведомость основных материалов для постройки дома по ссылке https://www.karkasproekt.com/kd-90

Если вам нужен индивидуальный проект каркасного дома, заказать его можно здесь https://www.karkasproekt.com/design

Каталог всех готовых проектов https://www.karkasproekt.com/Проекты

Моя группа ВКонтакте https://vk.com/karkas_dom_proekt

С уважением, Дмитрий.