Найти в Дзене

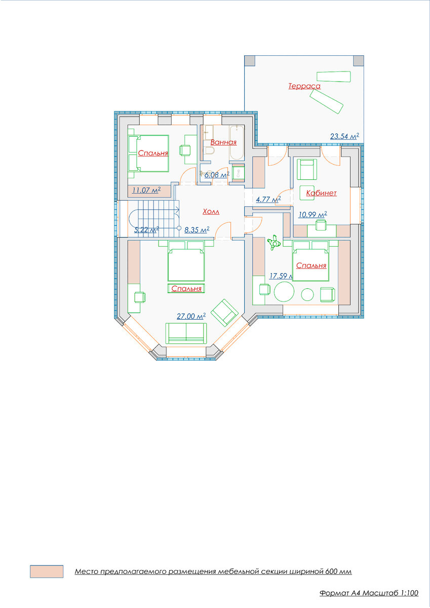
Проект "ПЕСОЧНИК" 200 м2 дома с зимним садом и открытой террасой над ним из песочного и коричневого кирпича

Поправил предыдущий проект "МОСКВА" - сделал открытой террасу и переделал цвет крыши на коричневый из-за уже существующей бани с коричневой металлочерепицей. Коричневый и соломенный кирпич в купе с коричневой металлочерепицей и коричневыми рамами окон - самое распространённое в нашей стране. Для нюанса принята коричневая подшивка под кровлей и завод отделки цоколя под подоконник эркера, спереди. Как видно есть как открытая, так и закрытая терраса. На все случаи жизни. Я думаю многим по душе такое цветовое решение. Так ли?
3D Визуализация №1
3D Визуализация №1

Поправил предыдущий проект "МОСКВА" - сделал открытой террасу и переделал цвет крыши на коричневый из-за уже существующей бани с коричневой металлочерепицей.

3D Визуализация №2
3D Визуализация №2

Коричневый и соломенный кирпич в купе с коричневой металлочерепицей и коричневыми рамами окон - самое распространённое в нашей стране.

3D Визуализация №3
3D Визуализация №3

Для нюанса принята коричневая подшивка под кровлей и завод отделки цоколя под подоконник эркера, спереди.

3D Визуализация №4
3D Визуализация №4

Как видно есть как открытая, так и закрытая терраса. На все случаи жизни.

3D Визуализация №5
3D Визуализация №5

Я думаю многим по душе такое цветовое решение. Так ли?