Добавить в корзинуПозвонить
Найти в Дзене

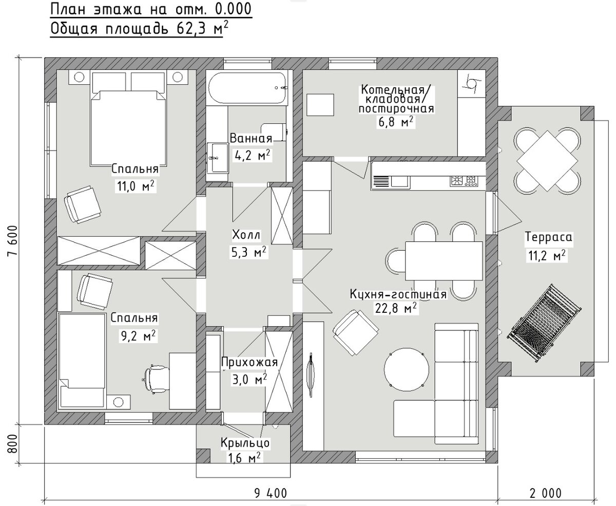
Небольшой двухсталенный домик, но уже не "мини".

Это очень небольшой домик формата 9,4*8,2м. Терраса, дымоход камина и второй санузел - опции.
Для домиков после 24.02.22, кроме не обсуждаемых спален, гостиной и санузла, считаю необходимым
- наличие котельной-кладовой приличного формата, а не только по нашим газовым нормам (ощутимо более 5м) . При желании котельное оборудование и щиток может занимать не сильно много немного места в таком помещении, а основное его назначение - кладовка. Кроме продуктов здесь должны быть инструменты и хозяйственные вещи, которые портятся на морозе. Если у вас вода из скважины (своей или поселковлй), то с очень большой вероятностью вам потребуется водоподготовка. Она обычно съедает ощутимый кусок стены (ставится вдоль стенки) - "водоподготовители" обычно хотят 1,7-2м, но им губы "губы раскатывать не надо". В 1м влезть маловероятно, но 1,2-1,3 - вполне реально, Дом - он в первую очередь для людей, а уже потом - для оборудования, пусть даже и необходимого. Сантехник, электрик, водоподго

Это очень небольшой домик формата 9,4*8,2м. Терраса, дымоход камина и второй санузел - опции.

Для домиков после 24.02.22, кроме не обсуждаемых спален, гостиной и санузла, считаю необходимым
- наличие котельной-кладовой приличного формата, а не только по нашим газовым нормам (ощутимо более 5м) . При желании котельное оборудование и щиток может занимать не сильно много немного места в таком помещении, а основное его назначение - кладовка. Кроме продуктов здесь должны быть инструменты и хозяйственные вещи, которые портятся на морозе.

Если у вас вода из скважины (своей или поселковлй), то с очень большой вероятностью вам потребуется водоподготовка. Она обычно съедает ощутимый кусок стены (ставится вдоль стенки) - "водоподготовители" обычно хотят 1,7-2м, но им губы "губы раскатывать не надо". В 1м влезть маловероятно, но 1,2-1,3 - вполне реально, Дом - он в первую очередь для людей, а уже потом - для оборудования, пусть даже и необходимого. Сантехник, электрик, водоподготовка обычно стремятся создать себе условия работы покомфортнее, и поэтому расползаются максимально широко и комфортно. Для себя, а не для обитателей дома...

- холодный сарай/хозблок. В данном случае один из вариантов - на месте террасы. Но и отдельно стоящий - тоже вполне годится. Это очень простое и недорогое сооружение. Его вполне можно сделать каркасным и на винтовых сваях - совсем без фундамента.

- навес для машины. Это тоже без фундаментное сооружение, особенно если на одну машину.

Некоторые из этих подсобных наружные сооружений можно устроить на месте террасы. хотя хозблок получается очень маленьким. Но и отдельные тоже будут "на месте" и поболее.

Пока имеем эскизы базового варианта домика:

Базовая планировка двухспаленного домика с Террасой
Базовая планировка двухспаленного домика с Террасой
-2
Вид спереди-сверху-справа
Вид спереди-сверху-справа
Вид с задней стороны
Вид с задней стороны

Архитектура домика довольно бюджетная (в том смысле, что позволяет построить его недорого), хотя "навернуть" конечно можно ...

Мне его планировка настолько симпатична, что постараюсь посчитать смету по этому домику в первую очередь. Терраса - необязательный элемент - в базовую смету включать не буду.

Как показала практика, закладываться на регулярное использование дров в процессе отопления - не лучший вариант, поэтому слово "газгольдер " - наше все: его можно поставить быстро, и даже взять в аренду маленький, литров на 600, который ставится сверху, не закапывается. Но аренда - если сильно повезет. У меня сейчас такой работает на отоплении одной из строек.

Даже если вам обещают магистральный газ, то газгольдер выбрасывать из вариантов не стоит - природный газ при установке и недешёвое, и очень НЕБЫСТРОЕ мероприятие. Но после установки и запуски - полный кайф. И наши газовщики стали шевелиться быстрее..

Конечно, на постоянку ставить имеет смысл бОльшие газгольдеры - 4-5 тыс литров, и место под него планировать сразу, на этапе стройки. Одна из заморочек мелких газгольдеров - многие заправщики газом на мелкие объемы просто не едут. Или едут очень долго, по сути непредсказуемо.

Даже при наличии 15 киловатт электричества не стоит рассчитывать на него как на постоянный энергоноситель - оно легко и внезапно выключается. Методика отопления, которая мне кажется сейчас разумной, достойна отдельного описания - сделаю чуть позже, сейчас не описаны много более важных вещей.