Найти в Дзене
Филдс

Как в однушке 32 м² решили вопрос со спальней и при этом создали ощущение простора

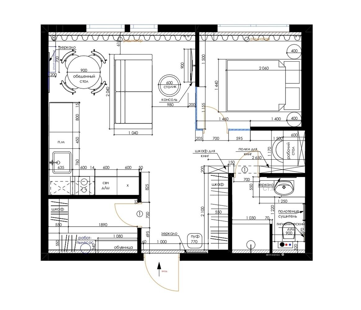
Дизайнер, основатель студии DENISH DESIGN Кристина Селютина оформила компактную квартиру 32 м² для молодой девушки. Однушку превратили в евродвушку, что позволило свободно разместить кухню, гостиную и спальню. В отделке не побоялись использовать броские насыщенные цвета. Планировка Спроектировали объединенную кухню-гостиную, выделили изолированную спальню — ее обнесли преимущественно стеклянными перегородками. Также сформировали нишу, где организовали рабочее место. Большая общая зона и грамотные интерьерные приемы помогли обеспечить ощущение простора в маленькой квартире. Кухня-гостиная Часть стен выкрасили в красный, что добавило интерьеру выразительности. Активный цвет уравновесили спокойными по тону мебелью и остальной отделкой. Диван поставили спинкой к кухне и столовой группе, чтобы обозначить границы между зонами в общем пространстве. Напротив организовали ТВ-зону, вместо тумбы использовали лаконичную консоль — это позволило сэкономить место. В глубокой нише между санузлом и
Оглавление

Дизайнер, основатель студии DENISH DESIGN Кристина Селютина оформила компактную квартиру 32 м² для молодой девушки. Однушку превратили в евродвушку, что позволило свободно разместить кухню, гостиную и спальню. В отделке не побоялись использовать броские насыщенные цвета.

  • Общая площадь: 32 м²
  • Место: Москва
  • Количество комнат: из однушки в евродвушку
  • Высота потолка: 2,7 м
  • Кто здесь живет: девушка
  • Дизайнер: Кристина Селютина (студия DENISH DESIGN)
  • Фото: Katya Geits

Планировка

Спроектировали объединенную кухню-гостиную, выделили изолированную спальню — ее обнесли преимущественно стеклянными перегородками. Также сформировали нишу, где организовали рабочее место. Большая общая зона и грамотные интерьерные приемы помогли обеспечить ощущение простора в маленькой квартире.

Кухня-гостиная

Часть стен выкрасили в красный, что добавило интерьеру выразительности. Активный цвет уравновесили спокойными по тону мебелью и остальной отделкой.

Диван поставили спинкой к кухне и столовой группе, чтобы обозначить границы между зонами в общем пространстве. Напротив организовали ТВ-зону, вместо тумбы использовали лаконичную консоль — это позволило сэкономить место.

В глубокой нише между санузлом и спальней обустроили мини-кабинет. Полки переходят в систему хранения в прихожей, образуя единую мебельную конструкцию вдоль смежных стен.

-4

Угловой кухонный гарнитур интегрировали в нишу. Шкафы-колонны и небольшой верхний ярус установили напротив окна, чтобы они меньше просматривались из жилой зоны.

Минимизировать роль кухни в едином пространстве также помогли спокойные белые фасады и отсутствие верхних шкафов вдоль вытянутой стены. Зрительно увеличить объем помещения также помогло зеркало в столовой зоне.

Спальня

Спальню выполнили в насыщенном синем оттенке, и это оказалось не в ущерб визуальному восприятию комнаты. Высокое окно и прозрачные перегородки обеспечивают достаточное количество естественного света, благодаря чему помещение кажется просторнее.

Лаконичные подвесы и столики вместо прикроватных тумб выполняют нужный функционал, но не перегружают компактное пространство.

Прихожая

Прихожую сделали частью общей зоны. Ее удалось сохранить максимально свободной еще и благодаря тому, что в квартире имеется отдельная гардеробная, которая забрала на себя значительную часть хранения. Обилие света и воздуха усилили с помощью зеркала.

Санузел

Маленький санузел площадью всего 4 м² оборудовали всем необходимым. Сэкономить место помогла душевая, ее выделили плиткой терраццо. Стиральную машину встроили под раковину.

Над инсталляцией организовали отсек для хранения хозяйственных принадлежностей. Оживить нейтральный интерьер помогла частичная покраска — того же цвета, что и в кухне-гостиной.

Интересные мнения в комментариях приветствуются. Если материал понравился — ставь лайк!

🖤 Филдс — это не только блог на Дзене, но и магазин дизайнерских предметов интерьера. Заходите на сайт, чтобы увидеть мебель, которую дизайнеры выбирают для своих проектов.