Найти в Дзене
GREY HOUSE

Двухэтажный каркасный дом 6х6 с планировкой и фото с объекта + Дом 6х9м

В конце прошлого года мы сдали двухэтажный каркасный дом 6х6м. В доме: кухня-гостиная, 2 спальни, с/у, хоз. помещение + терраса. Габариты дома: 6 х 6 м Площадь: 71 м2 Срок строительства дома с внутренней отделкой - 6 недель. Планировка 1 этажа Планировка 2 этажа Готовый дом Внутренняя отделка Высота потолков на 1 этаже - 2,7м Высота потолков на 2 этаже - 3,4-1,7 м Цена и описание комплектации как на фото - https://grey-house.ru/object/karabanovo/ Нам очень понравился этот проект и мы подготовили проект дома побольше Размеры дома - 6х9м Планировка 1 этажа Планировка 2 этажа Внешний вид дома 6х9м Примерный график строительства на начало следующего года: Мы предлагаем строительство дома в максимально сжатые сроки: Наши преимущества: 1. Бригады: постоянные, история строительства (фотоотчеты), можно выбрать понравившуюся бригаду, можно посетить строящиеся объекты, почитать отзывы клиентов
2. Документация: детальная смета, чертежи дома в соответствии с нормами, разработанные конструктором
Оглавление

В конце прошлого года мы сдали двухэтажный каркасный дом 6х6м.

В доме: кухня-гостиная, 2 спальни, с/у, хоз. помещение + терраса.

Габариты дома: 6 х 6 м

Площадь: 71 м2

Срок строительства дома с внутренней отделкой - 6 недель.

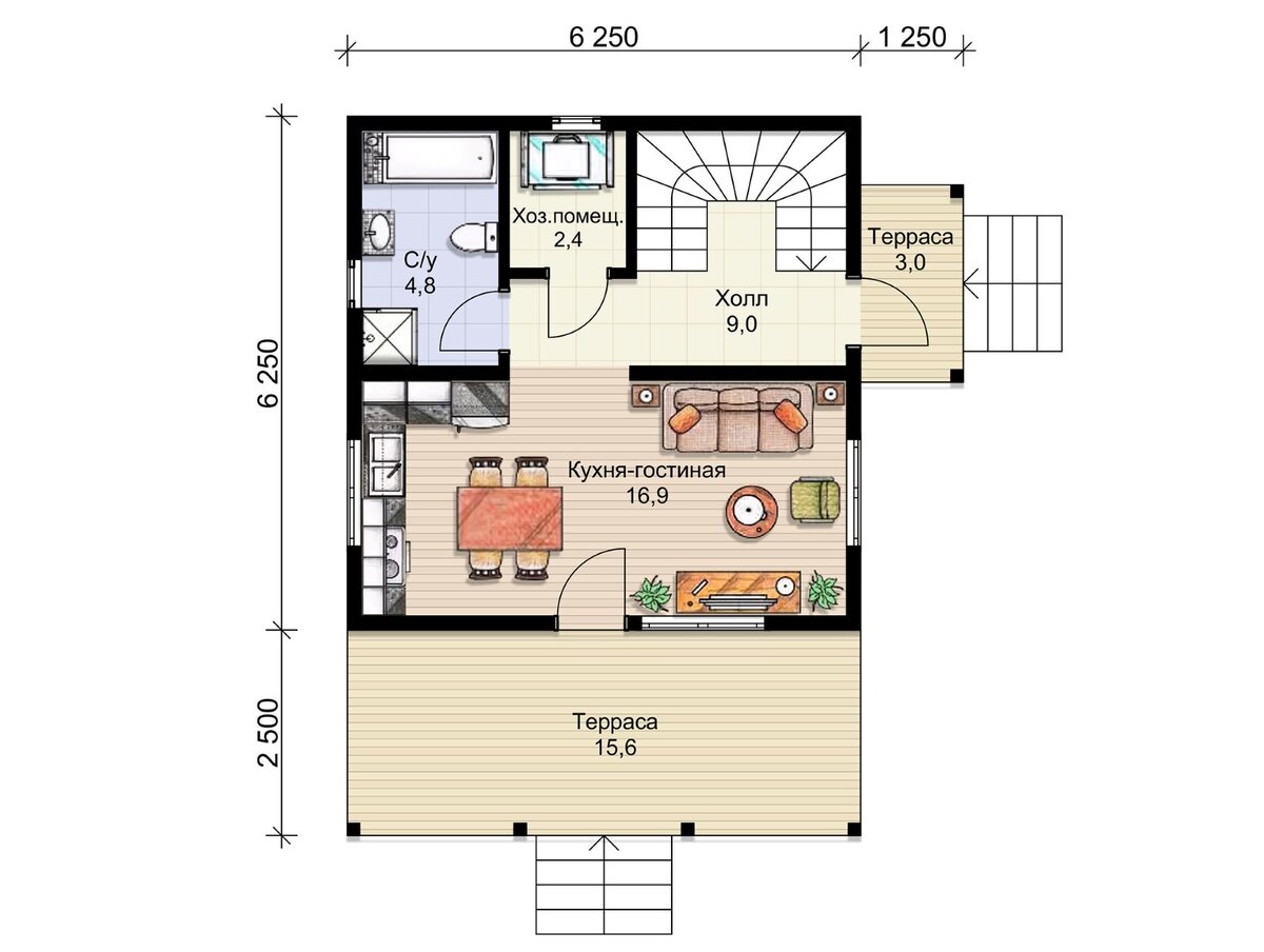
Планировка 1 этажа

Планировка дома 6х6м
Планировка дома 6х6м

Планировка 2 этажа

Планировка дома 6х6м
Планировка дома 6х6м

Готовый дом

Внутренняя отделка

Высота потолков на 1 этаже - 2,7м

Высота потолков на 2 этаже - 3,4-1,7 м

Цена и описание комплектации как на фото - https://grey-house.ru/object/karabanovo/

Нам очень понравился этот проект и мы подготовили проект дома побольше

Размеры дома - 6х9м

Планировка 1 этажа

Планировка дома 6х9м
Планировка дома 6х9м

Планировка 2 этажа

Планировка дома 6х9м
Планировка дома 6х9м

Внешний вид дома 6х9м

Примерный график строительства на начало следующего года:

  • Февраль - свободно 2 бригады
  • Март - свободна 1 бригада
  • Апрель - свободно 2 бригады
  • Май - свободна 1 бригада

Мы предлагаем строительство дома в максимально сжатые сроки:

  • Выход на стройку за 2 недели
  • Срок строительства до 6 недель

Наши преимущества:

1. Бригады: постоянные, история строительства (фотоотчеты), можно выбрать понравившуюся бригаду, можно посетить строящиеся объекты, почитать отзывы клиентов
2. Документация: детальная смета, чертежи дома в соответствии с нормами, разработанные конструктором
3. Премиальное качество и разумная цена

Внесение любых изменений в проект - бесплатно!

***
Все новости читайте в нашем телеграм-канале

Подписывайтесь на нашу группу Вконтакте

И, конечно же, подписывайтесь на нас в «Дзене»

Базовая цена и комплектация дома 6х6м - https://grey-house.ru

Базовая цена и комплектация дома 6х9м - https://grey-house.ru

Наши контакты:
Телефон:
8-495-504-71-33
What’s App
mail@grey-house.ru
Сайт:
grey-house.ru