Добавить в корзинуПозвонить
Найти в Дзене
АО «ТАМАК»

Каркасно-панельный дом в стиле «Барнхаус» для постоянного проживания

Дом «BARN-141» большей площади, чем дом «BARN -129». Три жилые комнаты стали просторнее и вместительнее. Устройство мастер-спальни с персональной ванной комнатой и гардеробом делает планировочное решение еще более привлекательным. В других спальнях предусмотрен отдельный гардероб. Отличие данного проекта от дома «BARN-129» – устройство на 2 этаже дополнительной спальни вместо второго света. В соседней спальне устроен балкон, который позволит наслаждаться видом природы. План 1 этажа: Общая площадь первого этажа: гостиная: 14,35 м²; кухня: 7,3 м²; санузел: 3,45 м²; тамбур: 10,37 м²; крыльцо: 3,74 м²; столовая: 17,67 м²; кладовая - лестница: 2,97 м²; кабинет: 11,13 м²; терраса: 7,34 м². План 2 этажа: Общая площадь второго этажа: балкон: 3,51 м²; ванная 1: 6,02 м²; ванная 2: 5,11 м²; коридор: 10,71 м²; гардероб 1: 3,22 м²; гардероб 2: 3,63 м²; спальня 1: 17,02 м²; спальня 2: 14,56 м²; спальня 3: 13,1 м². Фасады дома: Мы производим долговечные дома по запатентованной каркасно-панельной тех
Внешний вид дома
Внешний вид дома

Дом «BARN-141» большей площади, чем дом «BARN -129». Три жилые комнаты стали просторнее и вместительнее. Устройство мастер-спальни с персональной ванной комнатой и гардеробом делает планировочное решение еще более привлекательным. В других спальнях предусмотрен отдельный гардероб.

Отличие данного проекта от дома «BARN-129» – устройство на 2 этаже дополнительной спальни вместо второго света. В соседней спальне устроен балкон, который позволит наслаждаться видом природы.

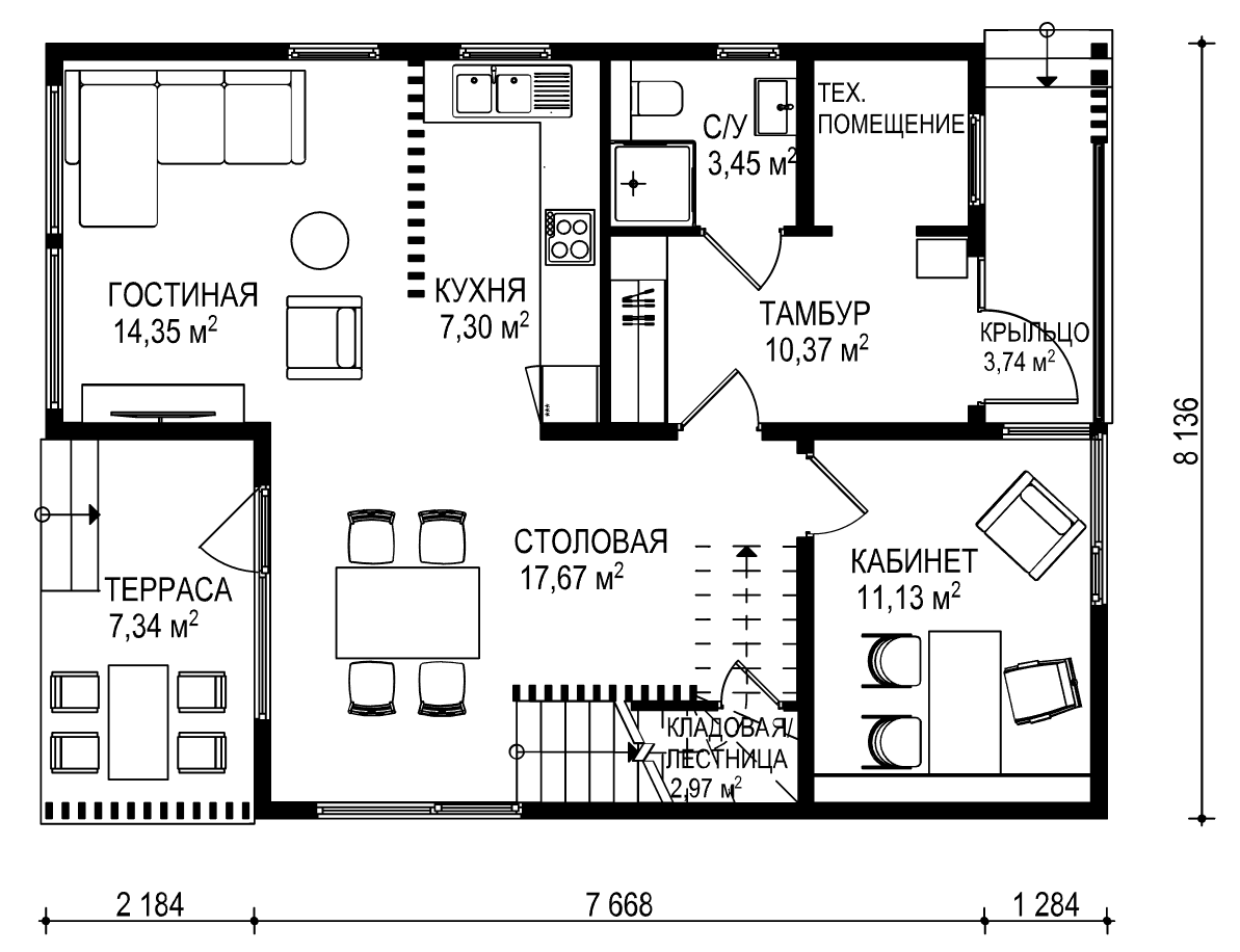
План 1 этажа:

План 1 этажа
План 1 этажа

Общая площадь первого этажа: гостиная: 14,35 м²; кухня: 7,3 м²; санузел: 3,45 м²; тамбур: 10,37 м²; крыльцо: 3,74 м²; столовая: 17,67 м²; кладовая - лестница: 2,97 м²; кабинет: 11,13 м²; терраса: 7,34 м².

План 2 этажа:

План 2 этажа
План 2 этажа

Общая площадь второго этажа: балкон: 3,51 м²; ванная 1: 6,02 м²; ванная 2: 5,11 м²; коридор: 10,71 м²; гардероб 1: 3,22 м²; гардероб 2: 3,63 м²; спальня 1: 17,02 м²; спальня 2: 14,56 м²; спальня 3: 13,1 м².

Фасады дома:

Мы производим долговечные дома по запатентованной каркасно-панельной технологии «Тhermomak Haus». Для конструкции дома используются исключительно прочные экологичные цементно-стружечные плиты. Каркас дома изготавливается из сосны и ели, поставляемых с Урала и из Сибири. Пиломатериал проходит строгий входящий контроль, автоматическую калибровку, сортировку и промышленную сушку. В готовых конструкциях сухой пиломатериал не подвергается гниению.

Телефон: 8(800)300-89-77

Наш сайт: https://www.tamak.ru/

Подписывайтесь на канал и ставьте лайки! :)