Добавить в корзинуПозвонить
Найти в Дзене
Evgeniy Sodylev Architects

- Project Alpine Hills No. 149 -

⚜ More about the project https://sodylev.ru/portfolio/project-alpine-hills-149
Project Alpine Hills No. 149 - Evgeniy Sodylev Architects
Project Alpine Hills No. 149 - Evgeniy Sodylev Architects
Ground floor plan
Ground floor plan
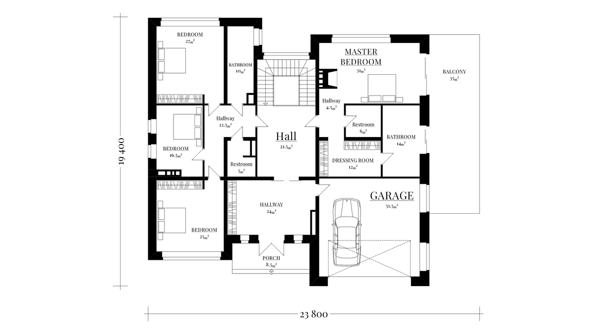
Second floor plan
Second floor plan
Project Alpine Hills No. 149 - Evgeniy Sodylev Architects
Project Alpine Hills No. 149 - Evgeniy Sodylev Architects
Project Alpine Hills No. 149 - Evgeniy Sodylev Architects
Project Alpine Hills No. 149 - Evgeniy Sodylev Architects
⚜ More about the project
https://sodylev.ru/portfolio/project-alpine-hills-149