Добавить в корзинуПозвонить
Найти в Дзене

Проекты «проектной Рябухина» в Декабре

Обещал себе, приложению тудуист и бумажке с записями задач на неделю, а такая тоже есть, выложить все проекты выполненные моими силами и силами моих коллег проектировщиков сюда, на яндекс дзен. У каждого действия - должна быть цель. Стараюсь следовать этому принципу чтобы не тратить время попусту. Цель таких ежемесячных сборников - возможное сео продвижение моих проектов, с целью получения дополнительных бесплатных клиентов. Ну и заодно проверить как работает СЕО на яндекс дзене, миф это или реальность. Итак, поехали 2.Выполнили разработку чертежей марки КМД по обустройству научно-исследовательского центра Краснодарского высшего военного училища для компании строителя ООО «АльбионСтройСервис» силами моего коллеги из Республики Беларусь - Олега Дедова Разработка чертежей выполнялась в САПР TEKLA 2017 с предварительной разработкой 3d модели. Заказчику были предоставлены полный комплект КМД чертежей: монтажные схемы, сборочные чертежи, деталлировка, ведомости металла, марок, метизов, дх

Обещал себе, приложению тудуист и бумажке с записями задач на неделю, а такая тоже есть, выложить все проекты выполненные моими силами и силами моих коллег проектировщиков сюда, на яндекс дзен.

Пруфы
Пруфы

У каждого действия - должна быть цель. Стараюсь следовать этому принципу чтобы не тратить время попусту. Цель таких ежемесячных сборников - возможное сео продвижение моих проектов, с целью получения дополнительных бесплатных клиентов. Ну и заодно проверить как работает СЕО на яндекс дзене, миф это или реальность.

Итак, поехали

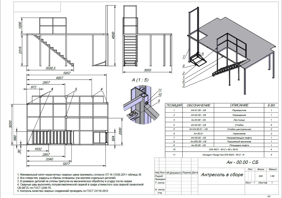
  1. Выполнил сам проект второго этажа на склад с лестницей и подъемником. Провел расчеты на прочность, подобрал соответствующее сечение профиля. Стены склада из сомнительного кирпича, поэтому принято решение крепить антресоль к основанию - бетонной плите. У заказчика склад Озона, решил увеличить его вместительность таким образом
-2
-3

2.Выполнили разработку чертежей марки КМД по обустройству научно-исследовательского центра Краснодарского высшего военного училища для компании строителя ООО «АльбионСтройСервис» силами моего коллеги из Республики Беларусь - Олега Дедова

Разработка чертежей выполнялась в САПР TEKLA 2017 с предварительной разработкой 3d модели.

Заказчику были предоставлены полный комплект КМД чертежей: монтажные схемы, сборочные чертежи, деталлировка, ведомости металла, марок, метизов, дхф для лазерной резки.

-4

3.Разработали КМД площадок обслуживания в производственный цех для ООО «ГК Латона Групп» силами моей коллеги из Ижевска - Красноперовой Софьи

Выполняем разработку чертежей марки КМД по вашим чертежам КМ от 1350₽ за тонну. Готовы разрабатывать до 300 тонн в месяц. Разработка проектов ведется всегда с предварительной проработкой 3d моделей, чтобы исключить возможные ошибки на монтаже. Работаем в САПР TEKLA и Adnance Steel

-5

4.Разработал сам конструкторскую документацию на изготовление входной группы в ТРЦ «Галерея Краснодар» для ООО «АльбионСтройСервис»

Разработка проходила в САПР SolidWorks с предварительной проработкой 3d модели и при необходимости расчетами на прочность. Полный комплект КД включает сборочные чертежи, деталировку и спецификацию.

Еще один проект отправляется в Краснодар. Так же позднее нам прислали фото готового изделия

-6

-7
-8

5.Разработали комплект чертежей КМД на коммуникационную башню высотой 20м для Кировского Электромеханического Завода опять же силами коллеги из РБ.

Разработанный нами проект отправился в республику Удмуртия.

-9

6.Специалистами Проектной Рябухина был разработан проект чертежей КМД на производственное здание массой 127 тонн для ООО "Латона". Выполнили проект в максимально сжатые сроки за 12 рабочих дней. 

-10
-11
-12

7.Разработал сам комплект конструкторской документации на МАФ "Арка в сквер влюбленных". Проект отправился в Башкирию

-13

8.Выполнил проект по разработке конструкторской документации на Малые Архитектурные Формы - Перголы для придомовой территории для строящегося ЖК в п. Ложок Новосибирской области.

-14

Проектная Рябухина разрабатывает конструкторскую, рабочую и проектную документацию в области машиностроения и строительства.

приоритетные направления

  • Проектирование детских площадок и малые архитектурных форм
  • Проектирование модульных зданий
  • Проектирование механизмов и устройств
  • Промышленное проектирование ангаров, складов, силосов