Найти в Дзене

Баня 3х8 или гостевой домик. Проект для сборки.

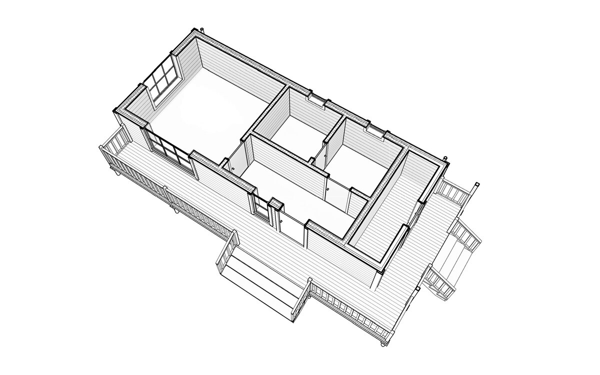
Друзья, всех приветствую! В этом посте покажу вам проект каркасной бани, а возможно гостевого домика, размером 3х8 метров. Общая площадь составляет 26 кв.м. Это одноэтажная каркасная баня или гостевой домик. В бане располагаются-  комната отдыха, душевая-санузел, парная и хозяйственное помещение. Потолок бани наклонный по стропилам. Фундамент - винтовые металлические сваи диам. 108 мм.  с оголовками 200х200 мм. Ростверк деревянный, выполнен из доски 45х140 собранной в балки. Цокольное перекрытие из доски 45х140 мм., с утеплением 150 мм. между балок перекрытия. Чёрный пол из ОСП-3 толщ. 18 мм Наружные стены запроектированы из доски 45х90. В качестве способа обеспечения жёсткости дома, предусмотрена врезка укосин в наружные и внутренние стеновые панели дома. Фасад с большой площадью остекления обшивается плитами ОСП-3. Утепление стен между стоек каркаса составляет 100 мм. Что бы получить толщину утепления наружных стен в 150 мм, вы можете выполнить горизонтальную обрешётку из бруска 50х5

Друзья, всех приветствую!

В этом посте покажу вам проект каркасной бани, а возможно гостевого домика, размером 3х8 метров. Общая площадь составляет 26 кв.м.

Это одноэтажная каркасная баня или гостевой домик. В бане располагаются-  комната отдыха, душевая-санузел, парная и хозяйственное помещение. Потолок бани наклонный по стропилам.

-3

Фундамент - винтовые металлические сваи диам. 108 мм.  с оголовками 200х200 мм. Ростверк деревянный, выполнен из доски 45х140 собранной в балки.

-4

Цокольное перекрытие из доски 45х140 мм., с утеплением 150 мм. между балок перекрытия. Чёрный пол из ОСП-3 толщ. 18 мм

-5

Наружные стены запроектированы из доски 45х90. В качестве способа обеспечения жёсткости дома, предусмотрена врезка укосин в наружные и внутренние стеновые панели дома. Фасад с большой площадью остекления обшивается плитами ОСП-3. Утепление стен между стоек каркаса составляет 100 мм. Что бы получить толщину утепления наружных стен в 150 мм, вы можете выполнить горизонтальную обрешётку из бруска 50х50 снаружи или изнутри дома с дополнительным слоем утеплителя.

-6

Стропила бани выполнены из доски 45х190 мм. с утеплением 200 мм. между стропил. Что бы получить толщину утепления крыши в 250 мм, вы можете выполнить дополнительную обрешётку из бруска 50х50 изнутри дома с дополнительным слоем утеплителя 50 мм.

-7

Сам проект и ведомость основных материалов для постройки дома по ссылке https://www.karkasproekt.com/kd-86

Если вам нужен индивидуальный проект каркасного дома, заказать его можно здесь https://www.karkasproekt.com/design

Каталог всех готовых проектов https://www.karkasproekt.com/Проекты

Моя группа ВКонтакте https://vk.com/karkas_dom_proekt

С уважением, Дмитрий.