Добавить в корзинуПозвонить
Найти в Дзене
АО «ТАМАК»

Дом из клееного бруса для полного комфорта большой семьи

Полезная площадь этой элитной резиденции «Усадьба–426» — 389,26 кв.м. На ней находятся: просторная гостиная, функциональная кухня, 6 санузлов, 4 спальни. Также обращают на себя внимание встроенный гараж на 2 автомобиля и большая терраса. План 1 этажа: План 2 этажа: Цокольный этаж: Фотографии построенного дома: Качество материалов и продукция завода «ТАМАК» соответствует директивам ЕС и российским строительным нормам и правилам, регулярно проверяется независимыми органами по сертификации и контролю. Пиломатериал проходит строгий входящий контроль, автоматическую калибровку, сортировку и промышленную сушку. В готовых конструкциях сухой пиломатериал не подвергается гниению. Телефон: 8(800)300-89-77 Наш сайт: https://www.tamak.ru/ Подписывайтесь на канал и ставьте лайки! :)

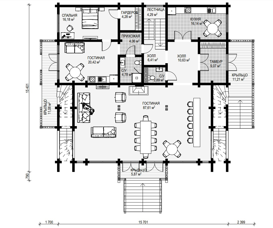
Полезная площадь этой элитной резиденции «Усадьба–426» — 389,26 кв.м. На ней находятся: просторная гостиная, функциональная кухня, 6 санузлов, 4 спальни. Также обращают на себя внимание встроенный гараж на 2 автомобиля и большая терраса.

Внешний вид дома «Усадьба–426»
Внешний вид дома «Усадьба–426»

План 1 этажа:

План 1 этажа
План 1 этажа

План 2 этажа:

План 2 этажа
План 2 этажа

Цокольный этаж:

Цокольный этаж
Цокольный этаж

Фотографии построенного дома:

Качество материалов и продукция завода «ТАМАК» соответствует директивам ЕС и российским строительным нормам и правилам, регулярно проверяется независимыми органами по сертификации и контролю.

Пиломатериал проходит строгий входящий контроль, автоматическую калибровку, сортировку и промышленную сушку. В готовых конструкциях сухой пиломатериал не подвергается гниению.

Телефон: 8(800)300-89-77

Наш сайт: https://www.tamak.ru/

Подписывайтесь на канал и ставьте лайки! :)