Добавить в корзинуПозвонить
Найти в Дзене

Мы расширили линейку одноэтажных домов!

Одноэтажные дома – тренд в строительстве. Это удобный, практичный, безопасный из-за отсутствия лестниц вариант. Отличное решение для семей с маленькими детьми и людей в возрасте. Именно поэтому мы расширили линейку одноэтажных домов. Одноэтажный проект «Оптимум» от компании DMITRY DOM представлен в нескольких вариантах, представленных в разных площадях и планировках. Оптимум, 115 кв.м Особенности проекта Оптимум, 140 кв.м Особенности проекта Оптимум, 160 кв.м Особенности проекта Какой из проектов вам понравился больше? Расскажите в комментариях!
Оглавление

Одноэтажные дома – тренд в строительстве. Это удобный, практичный, безопасный из-за отсутствия лестниц вариант. Отличное решение для семей с маленькими детьми и людей в возрасте. Именно поэтому мы расширили линейку одноэтажных домов.

Одноэтажный проект «Оптимум» от компании DMITRY DOM представлен в нескольких вариантах, представленных в разных площадях и планировках.

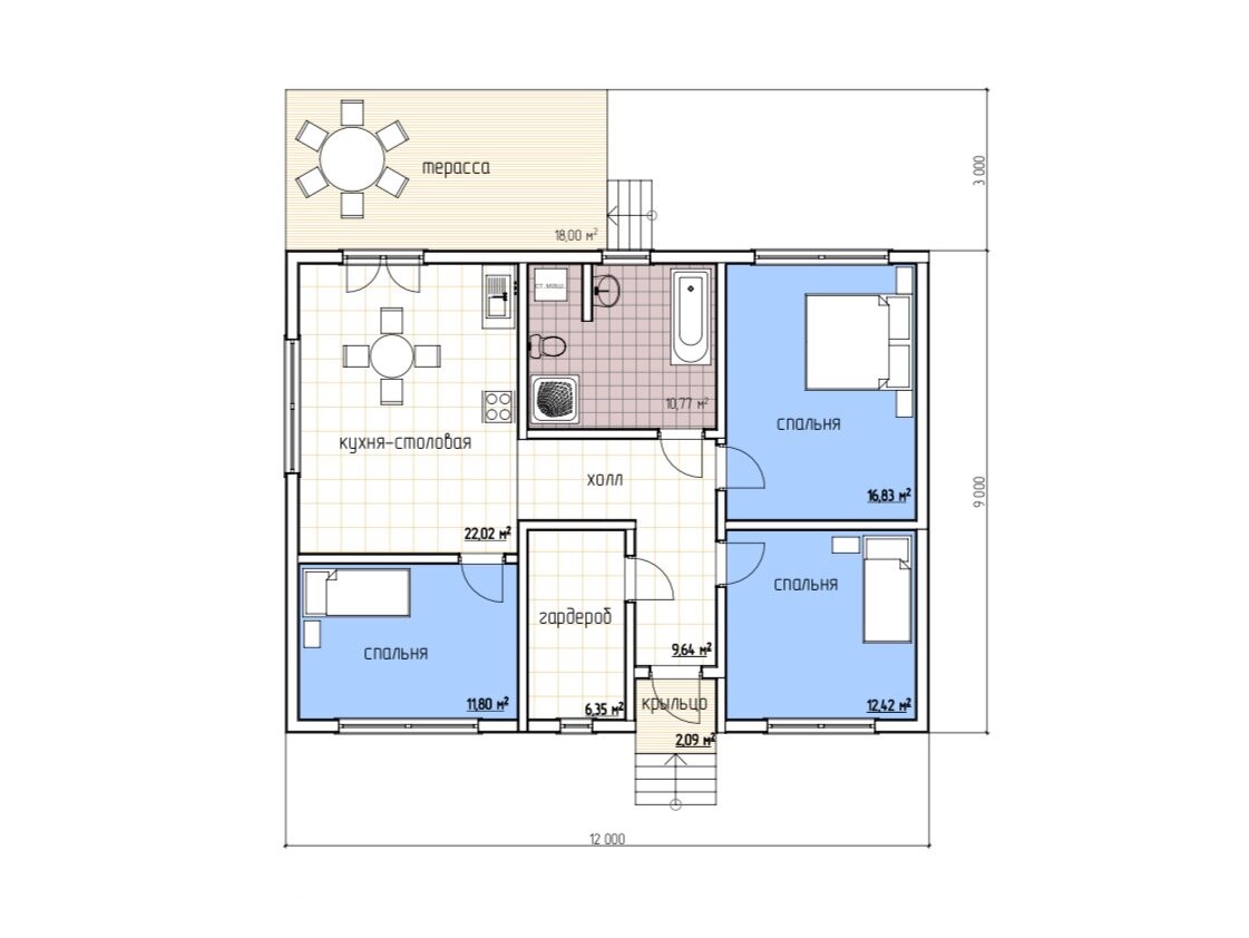
Оптимум, 115 кв.м

Особенности проекта

  • два варианта планировки
  • большая и просторная кухня-гостиная;
  • от 2-х до 3-х спальных комнат
  • просторный санузел
  • гардеробная
  • терраса

Оптимум, 140 кв.м

Листайте, чтобы увидеть варианты планировки
Листайте, чтобы увидеть варианты планировки

Особенности проекта

  • три варианта планировки
  • входная зона  с гардеробной
  • большая и просторная кухня-гостиная
  • мастер-спальня с собственной гардеробной и ванной
  • две дополнительных жилых комнаты
  • общий санузел
  • отдельный хозблок
  • терраса

Оптимум, 160 кв.м

Особенности проекта

  • входная зона  с гардеробной
  • большая и просторная кухня-гостиная
  • мастер-спальня с собственной гардеробной и ванной
  • три дополнительных жилых комнаты
  • общий санузел
  • кладовка
  • терраса

Какой из проектов вам понравился больше? Расскажите в комментариях!