Найти в Дзене

Красивый, комфортабельный коттедж со вторым светом, террасой и гаражом

Просторный, изысканный особняк - показатель благополучия своих хозяев. Дом по проекту "Атланта" с легкостью украсит собой Ваш загородный участок. Он выглядит очень стильно, при этом сохраняет классические формы домостроения. А просторные помещения внутри рассчитаны на проживание большой семьи. Площадь дома - 303 кв.м.
Габариты - 18.6 м x 18.6 м. Планировка ⭐Оставьте заявку прямо сейчас для получения оптимального коммерческого предложения. Для этого переходите по ссылке => проект "Атланта" Если Вы планируете построить дом по этому проекту, обращайтесь к специалистам нашей компании, мы проконсультируем, адаптируем под Ваши пожелания и земельный участок, построим Вам надежный дом и предложим гарантию 5 лет на свою работу. Отличная новость! При заключении договора на строительство дома в нашей компании, проект индивидуального дома идет вам в подарок. ⭐Приглашаем Вас посетить наши строящиеся дома, чтобы Вы могли вживую оценить профессионализм, компетентность и ответственность нашей компании

Просторный, изысканный особняк - показатель благополучия своих хозяев.

Дом по проекту "Атланта" с легкостью украсит собой Ваш загородный участок. Он выглядит очень стильно, при этом сохраняет классические формы домостроения. А просторные помещения внутри рассчитаны на проживание большой семьи.

Площадь дома - 303 кв.м.
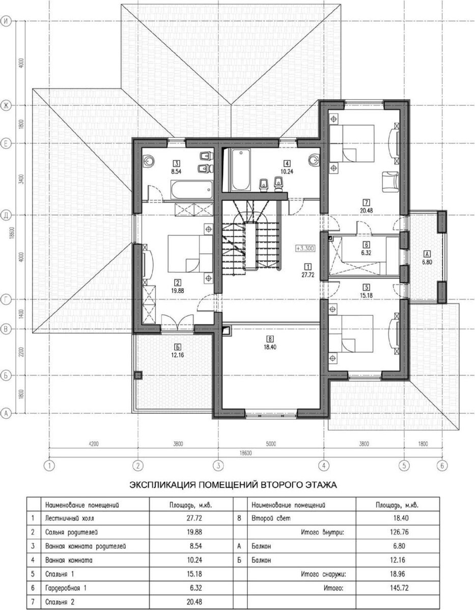
Габариты - 18.6 м x 18.6 м.

Планировка

⭐Оставьте заявку прямо сейчас для получения оптимального коммерческого предложения. Для этого переходите по ссылке => проект "Атланта"

Если Вы планируете построить дом по этому проекту, обращайтесь к специалистам нашей компании, мы проконсультируем, адаптируем под Ваши пожелания и земельный участок, построим Вам надежный дом и предложим гарантию 5 лет на свою работу.

Отличная новость!
При заключении договора на строительство дома в нашей компании, проект индивидуального дома идет вам в подарок.

⭐Приглашаем Вас посетить наши строящиеся дома, чтобы Вы могли вживую оценить профессионализм, компетентность и ответственность нашей компании.

Смотрите на нашем сайте другие проекты двухэтажный домов

Проекты домов площадью 300-350 кв.м.

Будем рады обратной связи!

Позвоните нам для консультации: 8-965-199-61-04
Ещё мы ждём Вас в наших социальных сетях
Телеграмм канал и Инстаграм

_________

С Уважением,
строительно-проектная компания «Стоун Вуд Хаус»

#проектдома #проектирование #коттедж #строимдом #строительствоиремонт #ремонт #недвижимость #строительство #загороднаянедвижимость #проекты загородного дома #проект частный дом #загородные дома проекты #проектдома #дом с гаражом проекты #загородныйдом