Найти в Дзене
Старково

Китайская философия и проектирование русской усадьбы

Фэн-шуй — это древнее китайское учение о том, как жить в гармонии с миром. Оно основано на принципах, сформулированных философом Лао Цзы в VI—V веках до нашей эры. Основатель даосизма говорил о том, что всё сущее имеет единое происхождение. Философ рассуждал о сочетании противоположностей Инь и Ян, об энергии Ци, пронизывающей всё вокруг, и о месте человека во вселенной.  Классическая планировка русских усадеб идеально отвечает философии фэн-шуй. Создатели имений 18—19 веков были близки к природе. Именно поэтому их проекты получались гармоничными и соответствующими естественным законам, открытым Лао Цзы. Давайте вместе с нашими экспертами рассмотрим основные черты архитектуры русской усадьбы, отвечающие основным положениям фэн-шуй. — Расположенный по центру фасада вход, привлекающий внимание портиком с колоннадой. Этот прием обеспечивает органичный и беспрепятственный приток энергии во внутреннее пространство дома. Симметричность самого фасада говорит о гармоничных и равноправных отн

Фэн-шуй — это древнее китайское учение о том, как жить в гармонии с миром. Оно основано на принципах, сформулированных философом Лао Цзы в VI—V веках до нашей эры. Основатель даосизма говорил о том, что всё сущее имеет единое происхождение. Философ рассуждал о сочетании противоположностей Инь и Ян, об энергии Ци, пронизывающей всё вокруг, и о месте человека во вселенной. 

Классическая планировка русских усадеб идеально отвечает философии фэн-шуй. Создатели имений 18—19 веков были близки к природе. Именно поэтому их проекты получались гармоничными и соответствующими естественным законам, открытым Лао Цзы. Давайте вместе с нашими экспертами рассмотрим основные черты архитектуры русской усадьбы, отвечающие основным положениям фэн-шуй.

— Расположенный по центру фасада вход, привлекающий внимание портиком с колоннадой. Этот прием обеспечивает органичный и беспрепятственный приток энергии во внутреннее пространство дома. Симметричность самого фасада говорит о гармоничных и равноправных отношениях в хозяйской семье. А пруд или фонтан перед парадным входом является источником животворной энергии.

-2

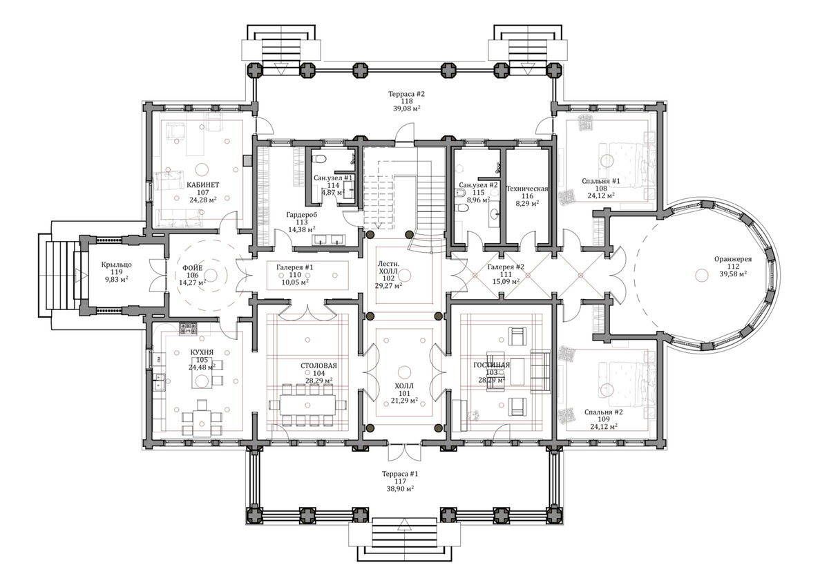
— В центре усадьбы обычно расположен холл, разделяющий технические и жилые помещения. Свободное пространство в этой точке позволяет энергии правильное распределяться по всему дому. 

— Задняя часть дома обычно глухая. Это препятствует утечке энергии и способствует ее накоплению в доме. 

— Важное значение имеет и материал, из которого построена усадьба. Например, деревянный брус, используемый компанией Starkwood в строительстве, органично сочетается с философией, основанной на законах природной энергии, и обеспечивает правильный приток Ци во внутреннее пространство дома..

-3

— Учение фэн-шуй учитывает не только архитектурное и дизайнерское решение усадьбы, но и окружающий ландшафт. В нём не должно быть геопатогенных и негативных зон. Дом, окруженный красивым садом, дарит своим владельцам не только эстетическое удовольствие, но и обеспечивает их максимальным уровнем жизненной энергии. Это одна из причин, по которым при создании проекта мы уделяем большое внимание расположению усадьбы на местности.

Проектирование домов с учётом учения фэн-шуй обеспечивает хозяевам гармоничную и сбалансированную жизнь. Богатый опыт строительства позволяет нашим специалистам раскрыть весь потенциал дома и создать имение, которое станет для вас настоящим родовым гнездом.