Найти в Дзене

Польский проект дома общей площадью 99.11 кв.м.

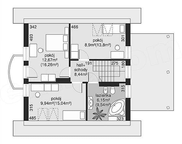
Представляем вам шикарный, удобный польский проект жилого дома. Общая площадь дома - 99.11 квадратных метров. Делитесь в комментариях - как вам проект польского дома? Подписывайтесь на канал, у нас про строительство, ремонт и лайфхаки в ремонте своими руками.

Представляем вам шикарный, удобный польский проект жилого дома. Общая площадь дома - 99.11 квадратных метров.

Польский проект жилого дома
Польский проект жилого дома
Делитесь в комментариях - как вам проект польского дома? Подписывайтесь на канал, у нас про строительство, ремонт и лайфхаки в ремонте своими руками.