Добавить в корзинуПозвонить
Найти в Дзене

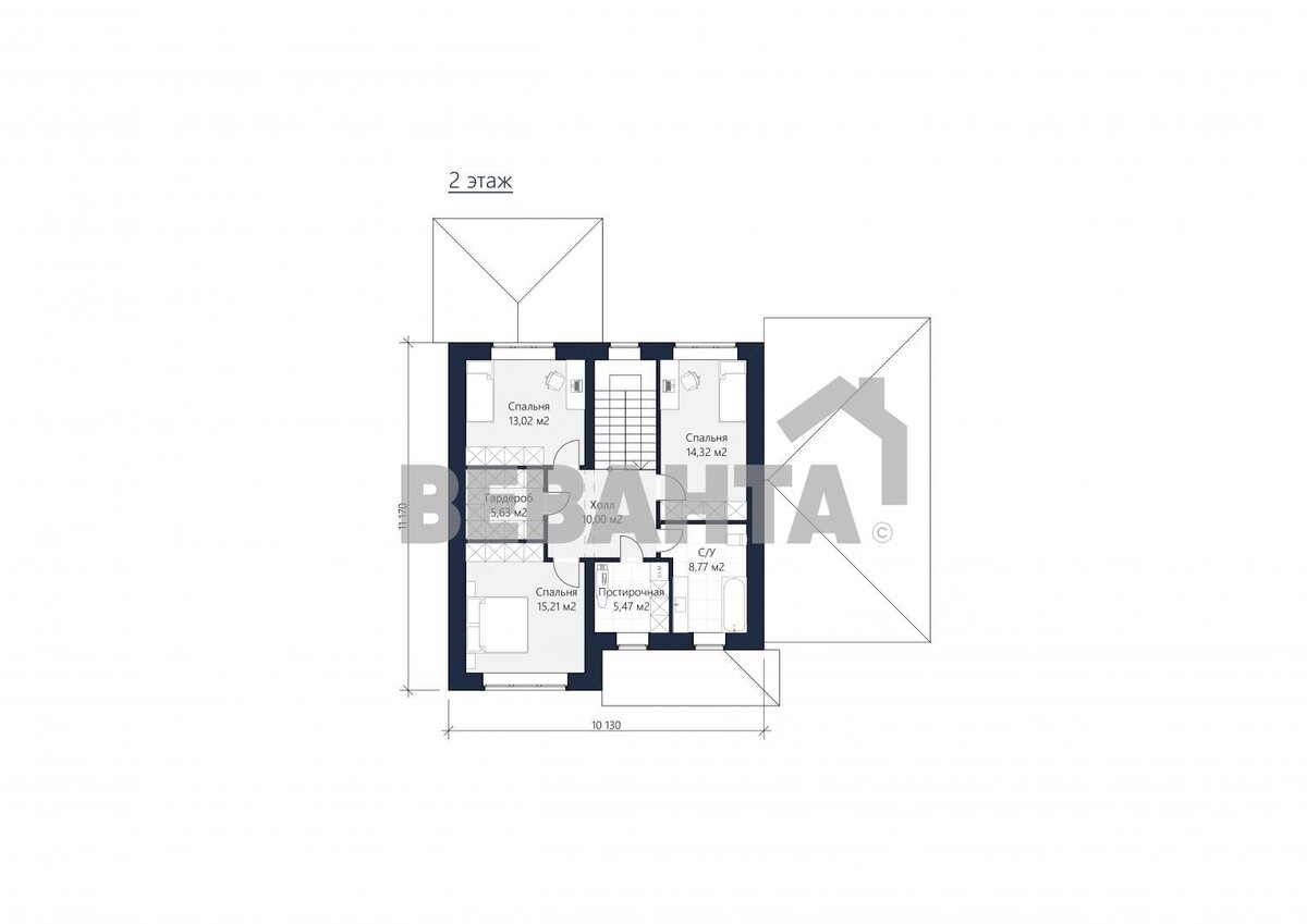
Новый проект двухэтажного коттеджа с гаражом и террасой

Представляем новый проект двухэтажного загородного коттеджа с террасой и теплым гаражом Долорес. Площадь дома составляет 182.89 м2 + площадь террасы 15.09 м2 + крыльцо 6.52 м2. Внешне коттедж выглядит статно и дорого, облицовка из белого кирпича в сочетании с коричневой баварской кладкой придает дому особый шик. Большие окна в пол говорят о хорошем современном вкусе хозяев особняка. Внутреннее пространство спланировано до мелочей, в доме есть абсолютно все для комфортной жизни большой дружной семьи. Большая кухня-гостиная, 4 спальни, 2 санузла + отдельная постирочная, две гардеробных комнаты и два холла на первом и втором этажах. Теплый гараж в доме совмещен с помещением котельной. Коттедж разработан для проживания семьи из 4-5 человек. Понравился проект? А может быть не в вашем вкусе? Напишите свой комментарий. Закажите проект дома в Тюмени. Заказать проект дома в Москве. И не забудьте подписаться на наш канал, чтобы не пропустить новые интересные события! Чудесного дня и хорошего н

Представляем новый проект двухэтажного загородного коттеджа с террасой и теплым гаражом Долорес.

Площадь дома составляет 182.89 м2 + площадь террасы 15.09 м2 + крыльцо 6.52 м2. Внешне коттедж выглядит статно и дорого, облицовка из белого кирпича в сочетании с коричневой баварской кладкой придает дому особый шик. Большие окна в пол говорят о хорошем современном вкусе хозяев особняка.

Внутреннее пространство спланировано до мелочей, в доме есть абсолютно все для комфортной жизни большой дружной семьи. Большая кухня-гостиная, 4 спальни, 2 санузла + отдельная постирочная, две гардеробных комнаты и два холла на первом и втором этажах. Теплый гараж в доме совмещен с помещением котельной. Коттедж разработан для проживания семьи из 4-5 человек.

Понравился проект? А может быть не в вашем вкусе? Напишите свой комментарий.

Закажите проект дома в Тюмени.

Заказать проект дома в Москве.

И не забудьте подписаться на наш канал, чтобы не пропустить новые интересные события!

Чудесного дня и хорошего настроения!