Добавить в корзинуПозвонить
Найти в Дзене

Красивый и современный дом для всей семьи.

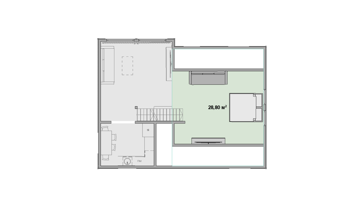
Всем привет! 👋 Сегодня расскажем про один из наших самых продуманных и удобных домов для небольших участков - это дом Ридгард! При своих небольших размерах 8,5х11 м дом включает в себе все необходимое как для постоянного проживания семьи, так и для дачи на выходные 🔥 Размер дома 8,7х9,35 м, но в нем есть все необходимые комнаты: 🔹 просторный холл 6,95 м2 🔹 котельная 4,3 м2 🔹 вместительный санузел 5,43 м2 🔹 2 спальни 12,46 и 12,46 м2 🔹 кухня/гостиная 34,48 м2. В доме есть все, что любят большинство заказчиков: кухня-гостиная со вторым светом и большими панорамными окнами, 2 просторные спальни по 12,5 м2, сердце дома - котельная и дополнительное помещение - антресоль, которое можно использовать по любому назначению: спальня, кабинет, кинотеатр или детская - все будет зависеть только от Ваших идей и желаний 😉 Ридгард - это финский дом, который украсит любой участок 😍 Кроме того этот дом, как и все дома в нашей компании можно оформить в ипотеку на выгодных условиях от 5,3% 😊

Всем привет! 👋 Сегодня расскажем про один из наших самых продуманных и удобных домов для небольших участков - это дом Ридгард!

Добавьте описание
Добавьте описание

При своих небольших размерах 8,5х11 м дом включает в себе все необходимое как для постоянного проживания семьи, так и для дачи на выходные 🔥 Размер дома 8,7х9,35 м, но в нем есть все необходимые комнаты:

🔹 просторный холл 6,95 м2

🔹 котельная 4,3 м2

🔹 вместительный санузел 5,43 м2

🔹 2 спальни 12,46 и 12,46 м2

🔹 кухня/гостиная 34,48 м2.

В доме есть все, что любят большинство заказчиков: кухня-гостиная со вторым светом и большими панорамными окнами, 2 просторные спальни по 12,5 м2, сердце дома - котельная и дополнительное помещение - антресоль, которое можно использовать по любому назначению: спальня, кабинет, кинотеатр или детская - все будет зависеть только от Ваших идей и желаний 😉

Ридгард - это финский дом, который украсит любой участок 😍

Кроме того этот дом, как и все дома в нашей компании можно оформить в ипотеку на выгодных условиях от 5,3% 😊

Подробнее на нашем сайте

____________________________________________________________________________________

Мы строим Для вас/Дома/Мечту.

📡 www.norvill.ru

📞 Позвонить: +7 (916) 304-75-40

WhatsApp / Telegram: +7 (916) 304-75-40

📧 norvilcompany@yandex.ru

#проектдома #скандинавскиедома #домподключ #одноэтажныйдом #каркасноестроительство #каркасноедомостроение #строительстводома #строительство #каркасныйдом #каркасник