Добавить в корзинуПозвонить
Найти в Дзене
АО «ТАМАК»

Барнхаус с идеальной планировкой для комфорта всей семьи

Если вы ищете современный и необычный проект дома, обратите внимание на «Барнхаус-129» Дом кроме грамотной и комфортной планировки, имеет такое преимущество, как двусветную гостиную, совмещенную с кухней. Витраж в два этажа насыщают гостиную и холл светом. Наличие в планировке первого этажа кабинета позволяет удобно обустроить рабочее место. Так же неоспоримым приоритетом этого проекта является наличие сауны. План 1 этажа: План 2 этажа: Современный интерьер с применением ламельных конструкций из деревянных стоек зонирует пространство, но не создает изолированные помещения, позволяя почувствовать простор. Для удобства хранения необходимых в быту вещей дополнительно предусмотрено устройство небольшого помещения под лестницей. Дизайн-проект дома: Мы производим долговечные дома по запатентованной каркасно-панельной технологии «Тhermomak Haus». Для конструкции дома используются исключительно прочные экологичные цементно-стружечные плиты. Каркас дома изготавливается из сосны и ели, поставля

Если вы ищете современный и необычный проект дома, обратите внимание на «Барнхаус-129»

Внешний вид дома
Внешний вид дома

Дом кроме грамотной и комфортной планировки, имеет такое преимущество, как двусветную гостиную, совмещенную с кухней. Витраж в два этажа насыщают гостиную и холл светом. Наличие в планировке первого этажа кабинета позволяет удобно обустроить рабочее место. Так же неоспоримым приоритетом этого проекта является наличие сауны.

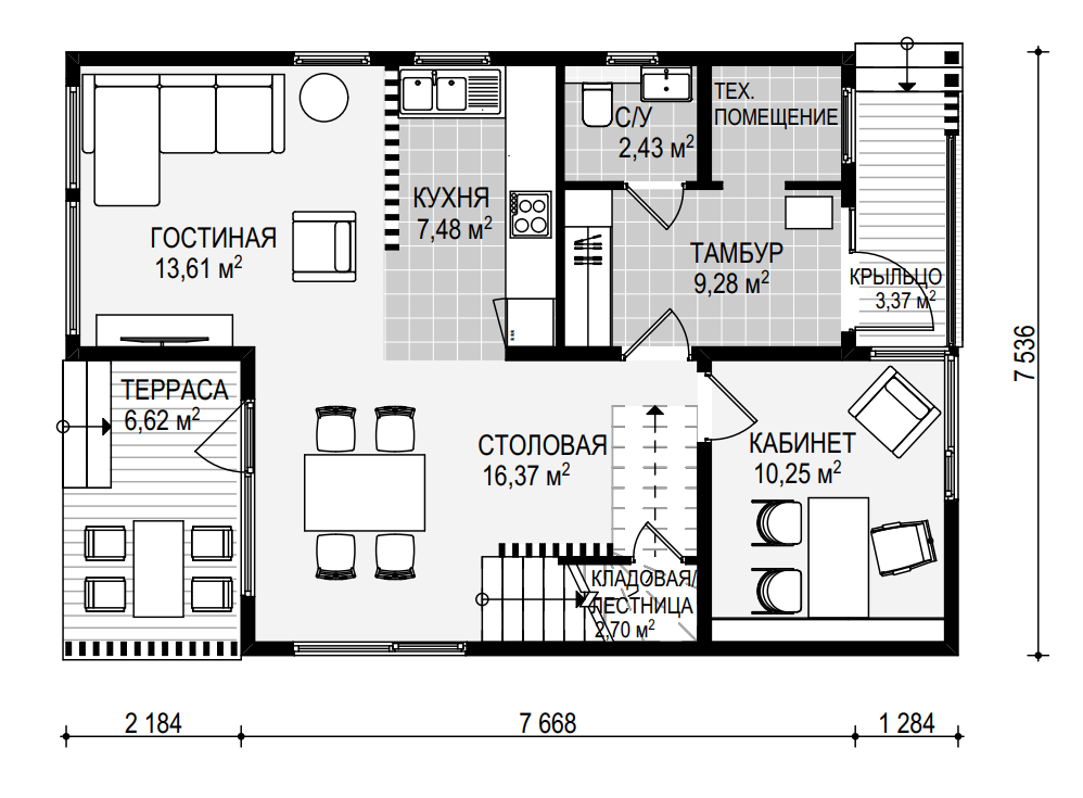
План 1 этажа:

План 1 этажа
План 1 этажа

План 2 этажа:

План 2 этажа
План 2 этажа

Современный интерьер с применением ламельных конструкций из деревянных стоек зонирует пространство, но не создает изолированные помещения, позволяя почувствовать простор. Для удобства хранения необходимых в быту вещей дополнительно предусмотрено устройство небольшого помещения под лестницей.

Дизайн-проект дома:

Мы производим долговечные дома по запатентованной каркасно-панельной технологии «Тhermomak Haus». Для конструкции дома используются исключительно прочные экологичные цементно-стружечные плиты. Каркас дома изготавливается из сосны и ели, поставляемых с Урала и из Сибири. Пиломатериал проходит строгий входящий контроль, автоматическую калибровку, сортировку и промышленную сушку. В готовых конструкциях сухой пиломатериал не подвергается гниению.

Телефон: 8(800)300-89-77

Наш сайт: https://www.tamak.ru/

Подписывайтесь на канал и ставьте лайки! :)