Найти в Дзене
Дневник Дизайнера

Безвкусная и скучная квартира стала стильной дизайнерской квартирой: ремонт квартиры пятиугольной формы

Квартиры в доходных домах всегда имели большой и всё время растущий спрос на рынке. Они могут быть как многоэтажные, так и малоэтажными, в них всегда достаточно интересные планировки, которые отличаются от сталинок и хрущевок очень значительно.

Эта квартира так же находится в доходном доме малоэтажной застройки. У квартиры очень интересная планировка, поработав над которой возможно создать жильё, которое будет соответствовать современным требованиям для комфортной жизни.

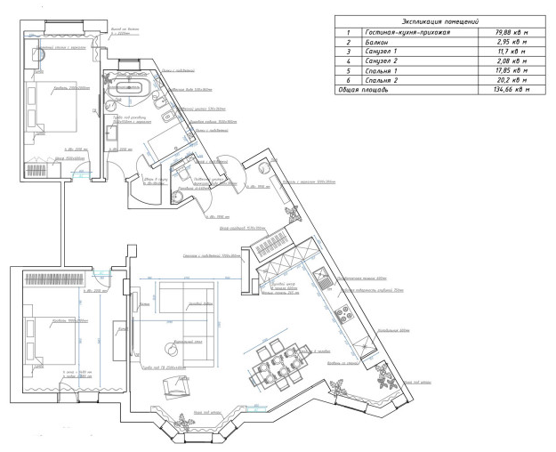
Планировка квартиры. Источник: Houzz.
Планировка квартиры. Источник: Houzz.

Квартира имеет ассиметричную планировку, что немного осложняет процесс проектирования, но с другой стороны даёт больший простор для фантазии дизайнеров. Дом старый, поэтому не могло не обойтись без трудностей при демонтаже и при подготовительных работах. Оказалось, что стяжка успела просесть за такое долгое время, поэтому пришлось устроить её заново с нуля, предварительно демонтировав старую. Раньше при входе был коридор, который был достаточно узкий и маленький, он очень неудобный, поэтому было принято решение снести стены и создать единое пространство, совмещённое с гостиной и кухней.

-2

Колонна занимает внушительное место, поэтому было необходимо органично вписать её в пространство. Она хорошо смотрится в сочетании с гардеробом и полками. Складывается ощущение, будто там и не было никакой колонны, настолько хорошо она вписалась в интерьер.

Гостиная. Источник: Houzz
Гостиная. Источник: Houzz

Ванная была выполнена в ужасных тонах, натяжной потолок розового цвета, безвкусная плитка, вот что случается, если люди, у которых нет вкуса берутся за дизайн интерьера. После работы дизайнера ванная приобрела прекрасный вид, всё выполнено в спокойных цветах, которые не мозолят глаз.

-4

В спальне по стене идёт деревянная вставка, которая прекрасно сочетается с остальными цветами в комнате.

-5