Π”ΠΎΠ±Π°Π²ΠΈΡ‚ΡŒ Π² ΠΊΠΎΡ€Π·ΠΈΠ½ΡƒΠŸΠΎΠ·Π²ΠΎΠ½ΠΈΡ‚ΡŒ
Найти Π² Π”Π·Π΅Π½Π΅

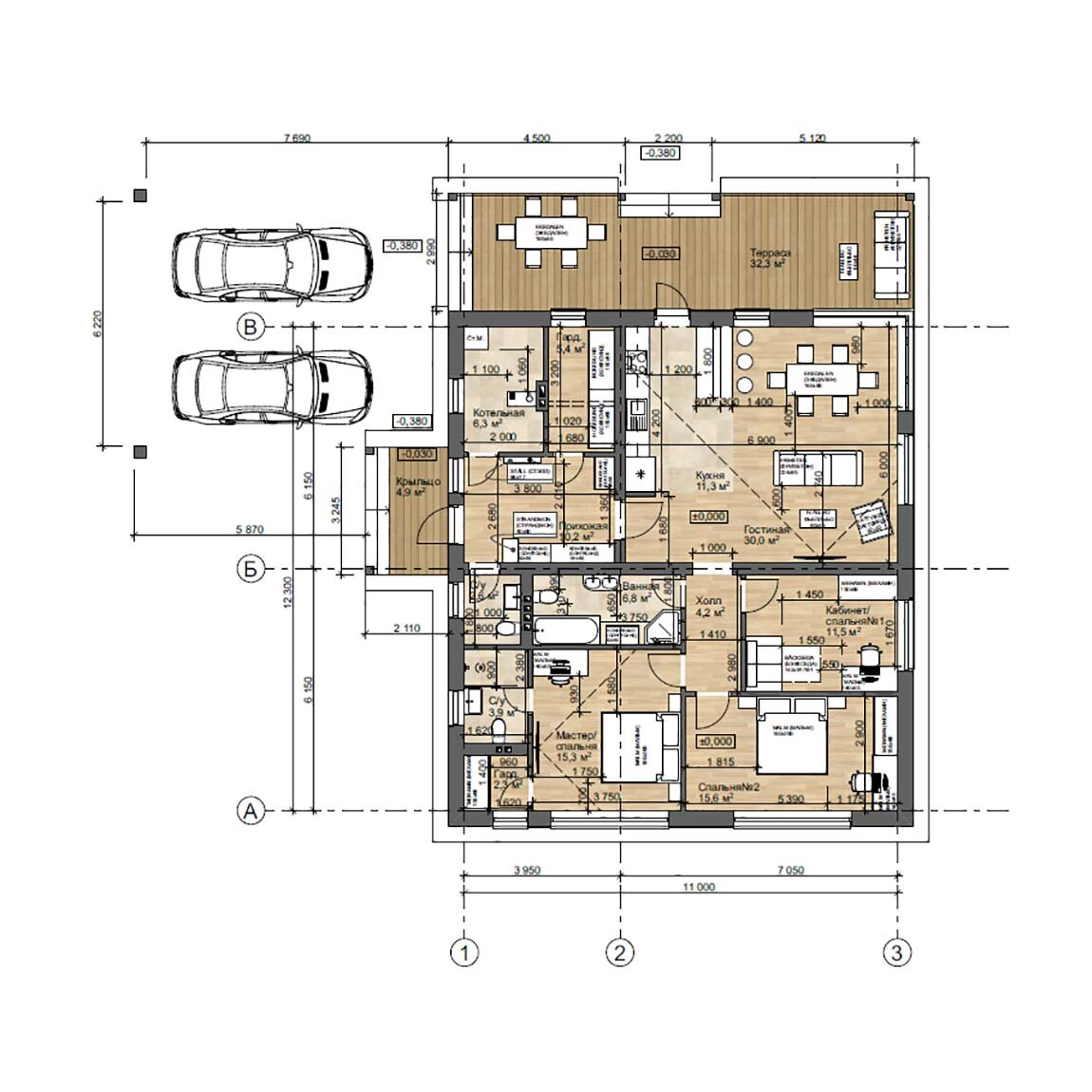
πŸ”₯ΠŸΡ€ΠΎΠ΅ΠΊΡ‚ 1-этаТного Π΄ΠΎΠΌΠ° Π² стилС ΠΌΠΈΠ½ΠΈΠΌΠ°Π»ΠΈΠ·ΠΌ ΠΏΠ»ΠΎΡ‰Π°Π΄ΡŒΡŽ 125 ΠΌΒ² с 3 спальнями ΠΈ 3 санузлами Π·Π° 7,5 ΠΌΠ»Π½ Ρ€ΡƒΠ±.

Π₯арактСристики ΠΏΡ€ΠΎΠ΅ΠΊΡ‚Π° ΠšΠΎΠ»ΠΈΡ‡Π΅ΡΡ‚Π²ΠΎ этаТСй: 1 этаТ;
Π‘Ρ‚ΠΈΠ»ΡŒ: Минимализм;
CΡ€ΠΎΠΊ ΡΡ‚Ρ€ΠΎΠΈΡ‚Π΅Π»ΡŒΡΡ‚Π²Π°: ΠΎΡ‚ 10 мСсяцСв;
ΠšΠΎΡ‚Π΅Π»ΡŒΠ½Π°Ρ: Π”Π°;
ΠŸΠ°Π½ΠΎΡ€Π°ΠΌΠ½Ρ‹Π΅ ΠΎΠΊΠ½Π°: Π”Π°. Ѐлэтхаус Π² стилС ΠΌΠΈΠ½ΠΈΠΌΠ°Π»ΠΈΠ·ΠΌ ΠΏΠ»ΠΎΡ‰Π°Π΄ΡŒΡŽ 125 ΠΊΠ².ΠΌ.
ΠŸΡ€ΠΎΠ΅ΠΊΡ‚ ΠΎΡ†Π΅Π½ΠΈΡ‚ сСмья ΠΈΠ· 4-5 Ρ‡Π΅Π»ΠΎΠ²Π΅ΠΊ, ΠΏΡ€Π΅Π΄ΠΏΠΎΡ‡ΠΈΡ‚Π°ΡŽΡ‰Π°Ρ ΡΠΎΠ²Ρ€Π΅ΠΌΠ΅Π½Π½ΡƒΡŽ Π°Ρ€Ρ…ΠΈΡ‚Π΅ΠΊΡ‚ΡƒΡ€Ρƒ ΠΈ Ρ„ΡƒΠ½ΠΊΡ†ΠΈΠΎΠ½Π°Π»ΡŒΠ½ΠΎΡΡ‚ΡŒ: β€’Β Β ΠŸΠΎΠ»ΠΎΠ²ΠΈΠ½Ρƒ ΠΏΠ»ΠΎΡ‰Π°Π΄ΠΈ Π·Π°Π½ΠΈΠΌΠ°Π΅Ρ‚ общая Π·ΠΎΠ½Π° β€” с Π΅Π΄ΠΈΠ½Ρ‹ΠΌ пространством ΠΊΡƒΡ…Π½ΠΈ-гостиной ΠΈ мСстами хранСния.
‒  Вторая ΠΏΠΎΠ»ΠΎΠ²ΠΈΠ½Π° Π΄ΠΎΠΌΠ° β€” Π»ΠΈΡ‡Π½Ρ‹Π΅ помСщСния. ΠœΠ°ΡΡ‚Π΅Ρ€ спальня, дСтская ΠΈ ΠΊΠ°Π±ΠΈΠ½Π΅Ρ‚, ΠΊΠΎΡ‚ΠΎΡ€Ρ‹ΠΉ Ρ‚Π°ΠΊΠΆΠ΅ ΠΌΠΎΠΆΠ½ΠΎ ΠΏΠ΅Ρ€Π΅ΠΎΠ±ΠΎΡ€ΡƒΠ΄ΠΎΠ²Π°Ρ‚ΡŒ Π² спальню.
β€’Β Β ΠŸΡ€ΠΎΡΡ‚ΠΎΡ€Π½Π°Ρ тСрраса β€” Π΄ΠΎΠΏΠΎΠ»Π½ΠΈΡ‚Π΅Π»ΡŒΠ½Π°Ρ полСзная ΠΏΠ»ΠΎΡ‰Π°Π΄ΡŒ Π² Π»Π΅Ρ‚Π½ΠΈΠΉ сСзон.
‒  Для ΠΏΠ°Ρ€ΠΊΠΎΠ²ΠΊΠΈ Π°Π²Ρ‚ΠΎΠΌΠΎΠ±ΠΈΠ»Π΅ΠΉ ΠΏΡ€Π΅Π΄Π½Π°Π·Π½Π°Ρ‡Π΅Π½ навСс. _________ ΠœΡ‹ Π³ΠΎΡ‚ΠΎΠ²Ρ‹ Π΄ΠΎΡ€Π°Π±ΠΎΡ‚Π°Ρ‚ΡŒ любой ΠΏΡ€ΠΎΠ΅ΠΊΡ‚ ΠΏΠΎ ΠΈΠ½Π΄ΠΈΠ²ΠΈΠ΄ΡƒΠ°Π»ΡŒΠ½Ρ‹ΠΌ поТСланиям. ΠžΡΡ‚Π°Π²ΡŒΡ‚Π΅ заявку, ΠΈ наши спСциалисты свяТутся с Π²Π°ΠΌΠΈ, Ρ‡Ρ‚ΠΎΠ±Ρ‹ ΠΎΠ±ΡΡƒΠ΄ΠΈΡ‚ΡŒ подробности. Бсылка Π½Π° ΠΏΡ€ΠΎΠ΅ΠΊΡ‚: domrnr.ru/projects/flat-001-ba Π‘Π°ΠΉΡ‚: www.domrnr.ru Π’Π΅Π»Π΅Ρ„ΠΎΠ½: +7 (499) 226-07-26 #Π°Ρ€Ρ…ΠΈΡ‚Π΅ΠΊΡ‚ΡƒΡ€Π° #ΠΏΡ€ΠΎΠ΅ΠΊΡ‚ #ΠΏΡ€ΠΎΠ΅ΠΊΡ‚ΠΈΡ€ΠΎΠ²Π°Π½ΠΈΠ΅β€ˆΠ΄ΠΎΠΌΠ° #Π΄ΠΈΠ·Π°ΠΉΠ½ #ΠΎΠ±Π·ΠΎΡ€ #Ρ‡Π°ΡΡ‚Π½Ρ‹ΠΉβ€ˆΠ΄ΠΎΠΌ #Ρ‡Π°ΡΡ‚Π½Ρ‹Π΅β€ˆΠ΄ΠΎΠΌΠ° #ΠΆΠΈΠ»ΠΎΠΉβ€ˆΠ΄ΠΎΠΌ #ΡΡ‚Ρ€ΠΎΠΈΡ‚Π΅Π»ΡŒΡΡ‚Π²ΠΎ #ΠΏΡ€ΠΎΠ΅ΠΊ


Π₯арактСристики ΠΏΡ€ΠΎΠ΅ΠΊΡ‚Π°

ΠšΠΎΠ»ΠΈΡ‡Π΅ΡΡ‚Π²ΠΎ этаТСй: 1 этаТ;
Π‘Ρ‚ΠΈΠ»ΡŒ: Минимализм;
CΡ€ΠΎΠΊ ΡΡ‚Ρ€ΠΎΠΈΡ‚Π΅Π»ΡŒΡΡ‚Π²Π°: ΠΎΡ‚ 10 мСсяцСв;
ΠšΠΎΡ‚Π΅Π»ΡŒΠ½Π°Ρ: Π”Π°;
ΠŸΠ°Π½ΠΎΡ€Π°ΠΌΠ½Ρ‹Π΅ ΠΎΠΊΠ½Π°: Π”Π°.

Ѐлэтхаус Π² стилС ΠΌΠΈΠ½ΠΈΠΌΠ°Π»ΠΈΠ·ΠΌ ΠΏΠ»ΠΎΡ‰Π°Π΄ΡŒΡŽ 125 ΠΊΠ².ΠΌ.
ΠŸΡ€ΠΎΠ΅ΠΊΡ‚ ΠΎΡ†Π΅Π½ΠΈΡ‚ сСмья ΠΈΠ· 4-5 Ρ‡Π΅Π»ΠΎΠ²Π΅ΠΊ, ΠΏΡ€Π΅Π΄ΠΏΠΎΡ‡ΠΈΡ‚Π°ΡŽΡ‰Π°Ρ ΡΠΎΠ²Ρ€Π΅ΠΌΠ΅Π½Π½ΡƒΡŽ Π°Ρ€Ρ…ΠΈΡ‚Π΅ΠΊΡ‚ΡƒΡ€Ρƒ ΠΈ Ρ„ΡƒΠ½ΠΊΡ†ΠΈΠΎΠ½Π°Π»ΡŒΠ½ΠΎΡΡ‚ΡŒ:

-2

β€’Β Β ΠŸΠΎΠ»ΠΎΠ²ΠΈΠ½Ρƒ ΠΏΠ»ΠΎΡ‰Π°Π΄ΠΈ Π·Π°Π½ΠΈΠΌΠ°Π΅Ρ‚ общая Π·ΠΎΠ½Π° β€” с Π΅Π΄ΠΈΠ½Ρ‹ΠΌ пространством ΠΊΡƒΡ…Π½ΠΈ-гостиной ΠΈ мСстами хранСния.

‒  Вторая ΠΏΠΎΠ»ΠΎΠ²ΠΈΠ½Π° Π΄ΠΎΠΌΠ° β€” Π»ΠΈΡ‡Π½Ρ‹Π΅ помСщСния. ΠœΠ°ΡΡ‚Π΅Ρ€ спальня, дСтская ΠΈ ΠΊΠ°Π±ΠΈΠ½Π΅Ρ‚, ΠΊΠΎΡ‚ΠΎΡ€Ρ‹ΠΉ Ρ‚Π°ΠΊΠΆΠ΅ ΠΌΠΎΠΆΠ½ΠΎ ΠΏΠ΅Ρ€Π΅ΠΎΠ±ΠΎΡ€ΡƒΠ΄ΠΎΠ²Π°Ρ‚ΡŒ Π² спальню.

β€’Β Β ΠŸΡ€ΠΎΡΡ‚ΠΎΡ€Π½Π°Ρ тСрраса β€” Π΄ΠΎΠΏΠΎΠ»Π½ΠΈΡ‚Π΅Π»ΡŒΠ½Π°Ρ полСзная ΠΏΠ»ΠΎΡ‰Π°Π΄ΡŒ Π² Π»Π΅Ρ‚Π½ΠΈΠΉ сСзон.

‒  Для ΠΏΠ°Ρ€ΠΊΠΎΠ²ΠΊΠΈ Π°Π²Ρ‚ΠΎΠΌΠΎΠ±ΠΈΠ»Π΅ΠΉ ΠΏΡ€Π΅Π΄Π½Π°Π·Π½Π°Ρ‡Π΅Π½ навСс.

_________

ΠœΡ‹ Π³ΠΎΡ‚ΠΎΠ²Ρ‹ Π΄ΠΎΡ€Π°Π±ΠΎΡ‚Π°Ρ‚ΡŒ любой ΠΏΡ€ΠΎΠ΅ΠΊΡ‚ ΠΏΠΎ ΠΈΠ½Π΄ΠΈΠ²ΠΈΠ΄ΡƒΠ°Π»ΡŒΠ½Ρ‹ΠΌ поТСланиям. ΠžΡΡ‚Π°Π²ΡŒΡ‚Π΅ заявку, ΠΈ наши спСциалисты свяТутся с Π²Π°ΠΌΠΈ, Ρ‡Ρ‚ΠΎΠ±Ρ‹ ΠΎΠ±ΡΡƒΠ΄ΠΈΡ‚ΡŒ подробности.

Бсылка Π½Π° ΠΏΡ€ΠΎΠ΅ΠΊΡ‚: domrnr.ru/projects/flat-001-ba

Π‘Π°ΠΉΡ‚: www.domrnr.ru

Π’Π΅Π»Π΅Ρ„ΠΎΠ½: +7 (499) 226-07-26

#Π°Ρ€Ρ…ΠΈΡ‚Π΅ΠΊΡ‚ΡƒΡ€Π° #ΠΏΡ€ΠΎΠ΅ΠΊΡ‚ #ΠΏΡ€ΠΎΠ΅ΠΊΡ‚ΠΈΡ€ΠΎΠ²Π°Π½ΠΈΠ΅β€ˆΠ΄ΠΎΠΌΠ° #Π΄ΠΈΠ·Π°ΠΉΠ½ #ΠΎΠ±Π·ΠΎΡ€ #Ρ‡Π°ΡΡ‚Π½Ρ‹ΠΉβ€ˆΠ΄ΠΎΠΌ #Ρ‡Π°ΡΡ‚Π½Ρ‹Π΅β€ˆΠ΄ΠΎΠΌΠ° #ΠΆΠΈΠ»ΠΎΠΉβ€ˆΠ΄ΠΎΠΌ #ΡΡ‚Ρ€ΠΎΠΈΡ‚Π΅Π»ΡŒΡΡ‚Π²ΠΎ #ΠΏΡ€ΠΎΠ΅ΠΊΡ‚β€ˆΠ΄ΠΎΠΌΠ°