Добавить в корзинуПозвонить
Найти в Дзене
«Калужские новости»

В Калуге заложили новый микрорайон

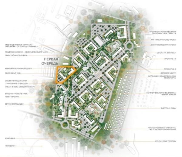
Накануне Дмитрий Денисов принял участие в торжественной церемонии закладки нового микрорайона "Жилые кварталы - Острова". Он символически заложил первый камень. Также на месте закладки оставили капсулу с посланием к потомкам. "Это важное события для города и калужан! На севере Калуги будет построено около 230 тысяч квадратных метров жилья – это полноценный жилой микрорайон с продуманной инфраструктурой и качественным благоустройством. В жилом комплексе предусмотрены закрытые дворы без машин, безбарьерная среда, спортцентр, ипподром, детские сады и площадки, школа", - отметил в соцсетях градоначальник. Между тем, как мы уже писали, калужский блогер, политолог и журналист Сергей Фадеев высказался по поводу отсутствия до сих пор школы на Тайфуне в Калуге. Он, видимо, в ироничном ключе, предположил, что тут замешана коррупция - дескать, в новых кварталах, ради развития инфраструктуры и повышения цен на жилье, школы закладываются сразу, а микрорайон Тайфун так десятилетиями и остается без у

Накануне Дмитрий Денисов принял участие в торжественной церемонии закладки нового микрорайона "Жилые кварталы - Острова". Он символически заложил первый камень. Также на месте закладки оставили капсулу с посланием к потомкам.

"Это важное события для города и калужан! На севере Калуги будет построено около 230 тысяч квадратных метров жилья – это полноценный жилой микрорайон с продуманной инфраструктурой и качественным благоустройством. В жилом комплексе предусмотрены закрытые дворы без машин, безбарьерная среда, спортцентр, ипподром, детские сады и площадки, школа", - отметил в соцсетях градоначальник.

Между тем, как мы уже писали, калужский блогер, политолог и журналист Сергей Фадеев высказался по поводу отсутствия до сих пор школы на Тайфуне в Калуге. Он, видимо, в ироничном ключе, предположил, что тут замешана коррупция - дескать, в новых кварталах, ради развития инфраструктуры и повышения цен на жилье, школы закладываются сразу, а микрорайон Тайфун так десятилетиями и остается без учебного заведения.

-2