Добавить в корзинуПозвонить
Найти в Дзене
Все о ремонте квартир

Красивый современный ремонт квартиры 70 м2.

Владельцами этой квартиры стала молодая семейная пара. После приобретения нового жилья, они обратились за дизайн-проектом в студию Екатерины Третьяковой. Главное пожелание заказчиков: функциональное пространство с большим количеством скрытых мест хранения, лаконичный интерьер в спокойной природной цветовой гамме. После согласования планировочного решения и выбора оттенков для оформления интерьера, был выполнен капитальный ремонт с перепланировкой. План квартиры после ремонта и установки мебели. Изначально это была 2-комн. квартира со просторными изолированными комнатами, где на потолке в центре гостиной была несущая балка. В процессе перепланировки, кухню объеденили с гостиной, при этом немного уменьшили площадь последней комнаты. Но за счет этого решения - во-первых организовали отдельный кабинет, во-вторых балка осталась со стороны кабинета, где как ее продолжение установили встроенную мебель и покрасили в тот же цвет. Кухня-гостиная Для основного фона выбрали нейтральный оттенок се

Владельцами этой квартиры стала молодая семейная пара. После приобретения нового жилья, они обратились за дизайн-проектом в студию Екатерины Третьяковой.

Главное пожелание заказчиков: функциональное пространство с большим количеством скрытых мест хранения, лаконичный интерьер в спокойной природной цветовой гамме.

После согласования планировочного решения и выбора оттенков для оформления интерьера, был выполнен капитальный ремонт с перепланировкой.

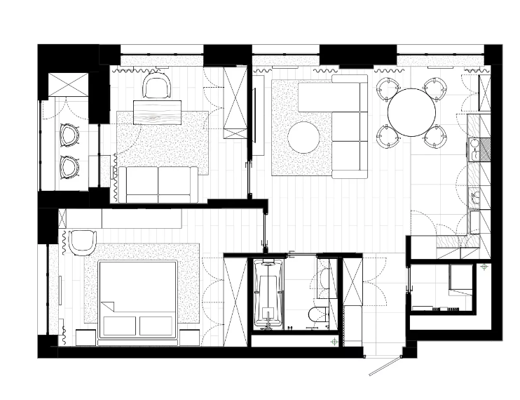
План квартиры после ремонта и установки мебели.

Изначально это была 2-комн. квартира со просторными изолированными комнатами, где на потолке в центре гостиной была несущая балка. В процессе перепланировки, кухню объеденили с гостиной, при этом немного уменьшили площадь последней комнаты. Но за счет этого решения - во-первых организовали отдельный кабинет, во-вторых балка осталась со стороны кабинета, где как ее продолжение установили встроенную мебель и покрасили в тот же цвет.

Кухня-гостиная

-2

Для основного фона выбрали нейтральный оттенок серого, в кухне гостиной добавили акцента в виде мягкого уютного дивана синего цвета.

Очень классное решение использовали для оформления стены в зоне ТВ - панелями из шпона, ими же обыграли дверь в кабинет, таким образом она оказалась практически невидимой.

Для оформления спальни и кабинета, так же использовали светлую цветовую гамму. Графичные черные элементы и рельефная панель в спальне подчеркивают вертикаль, визуально увеличивая высоту потолка.

Отделка пола во всех комнатах, кроме зоны кухни и прихожей, выполнена инженерной доской из натурального дерева, цвет которой добавил контраста светлому фону - этот способ делает интерьер более гармоничным и законченным.

Той же стилистики и натуральной цветовой гаммы придерживались при отделки коридора и санузла.

Интерьер и ремонт был выполнен на 100% по дизайн-проекту, а результат очень порадовал заказчиков.

Спасибо, что заглянули в мою студию! Понравилось ставьте лайки! Пишите комментарии! И не забывайте подписываться!