Добавить в корзинуПозвонить
Найти в Дзене
KRASNOPOLSKY ремонт

Демонтаж перегородок в новостройке сроки и цена

Покупая квартиру в новостройке многие задаются вопросом, а не изменить ли мне планировку квартиры? Ведь спальни можно сделать побольше, а кухню можно объединить с одной из комнат и получить просторную кухню-гостиную, а раздельный санузел совместить и расширить пространство ванной!В большинстве случаев всё это приводит к полному или частичному демонтажу перегородок, которые возвёл застройщик. На одном из наших объектов, который мы выполнили в 2020 году была именно такая ситуация! Почти все перегородки в квартире были выполнены из газоблока толщиной 100мм и немного стен было выложено в полкирпича. Снесли всё, остались лишь внешние стены квартиры! Здание построено по каркасно - монолитной системе и поэтому все сносимые стены не являются несущими, всю нагрузку несут бетонные стены и колонны, а их мы не трогаем поэтому всё безопасно! Часто при проведении демонтажа заказчики просят максимально бережно разбирать стены, чтобы затем из уцелевших блоков возвести новые перегородки, но сохранить б

Покупая квартиру в новостройке многие задаются вопросом, а не изменить ли мне планировку квартиры? Ведь спальни можно сделать побольше, а кухню можно объединить с одной из комнат и получить просторную кухню-гостиную, а раздельный санузел совместить и расширить пространство ванной!В большинстве случаев всё это приводит к полному или частичному демонтажу перегородок, которые возвёл застройщик. На одном из наших объектов, который мы выполнили в 2020 году была именно такая ситуация!

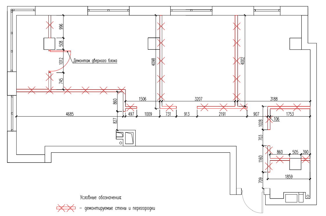
Изначальный план квартиры со стенами которые предстояло снести
Изначальный план квартиры со стенами которые предстояло снести

Почти все перегородки в квартире были выполнены из газоблока толщиной 100мм и немного стен было выложено в полкирпича. Снесли всё, остались лишь внешние стены квартиры!

Здание построено по каркасно - монолитной системе и поэтому все сносимые стены не являются несущими, всю нагрузку несут бетонные стены и колонны, а их мы не трогаем поэтому всё безопасно!

Часто при проведении демонтажа заказчики просят максимально бережно разбирать стены, чтобы затем из уцелевших блоков возвести новые перегородки, но сохранить блоки удаётся далеко не всегда, особенно если застройщик отнёсся к кладке газоблока достаточно ответственно и сделал всё по технологии (применил прочный клей, армировал кладку, соблюдал перевязку блоков) и это именно такая ситуация!Блоки ломались где угодно, но только не по швам!

Видно наличие армирования, и то как заполнены швы
Видно наличие армирования, и то как заполнены швы

Обычно демонтаж в квартире площадью до 100м2 занимает 2-3 дня, сюда входит демонтаж, фасовка в мешки, спуск и погрузка в машину, либо в строительную мульду. Очень важно запастись всем необходимым заранее, а именно нужно иметь перфоратор, кувалду, ломик, молоток, лопату, строительный пылесос, веник, перчатки, респиратор, мешки для мусора с большим запасом! Если предварительно смочить стены водой, то пыли будет значительно меньше.

Сейчас в новостройках очень бдительно следят за соблюдением тихих часов обычно это с 13 до 15, поэтому работу надо планировать так, чтобы в это время выполнять бесшумные работы, например фасовать битый блок в мешки или спускать мусор вниз.

-4

В среднем с квартиры площадью 70м2 получается мусора 12-14 метров кубических, а это целый камаз!

С трудом уместили в одну машину
С трудом уместили в одну машину

Стоимость работ по демонтажу на данном объекте под ключ составила 30 т.р. Демонтаж выполнялся двумя крепкими парнями и занял 2 дня.

Очень просторно получилось!
Очень просторно получилось!

После выполнения работ обязательно необходимо оставлять квартиру, коридоры и лифты максимально чистыми, это нужно для того чтобы заказчик смог увидеть, что все оговоренные работы по демонтажу выполнены, ТСЖ не имело претензий к заказчику, а также для того чтобы бригада каменщиков дальше могла беспрепятственно выполнять работы по возведению новых перегородок не отвлекаясь на уборку помещения.

Ещё больше полезных статей и информации о ремонте в нашем Телеграмме https://t.me/krasnopolskyRD