Добавить в корзинуПозвонить
Найти в Дзене

Очень маленький санузел! Как всё разместить?

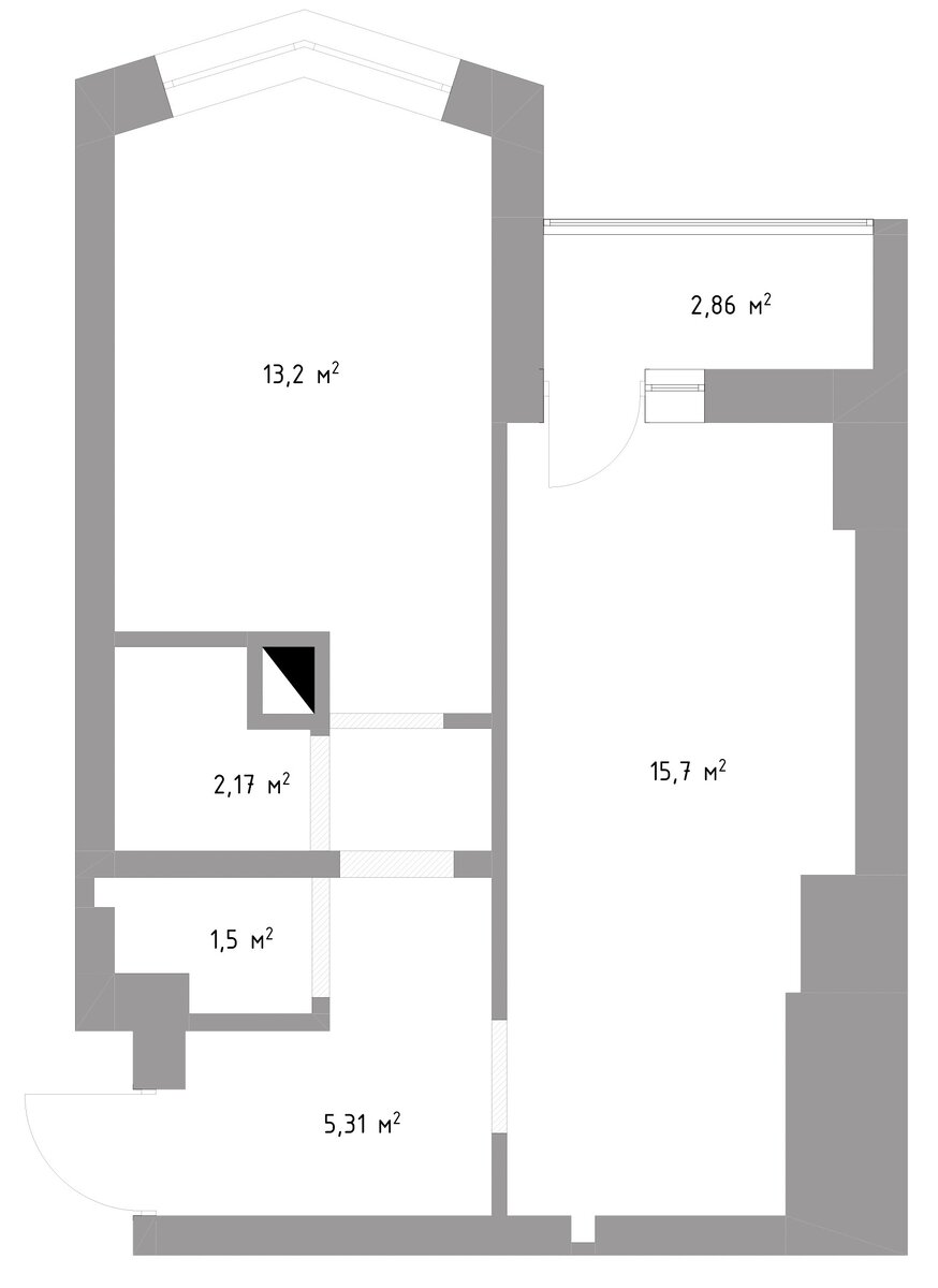
Бывает, что планировка от застройщика не соответствует потребностям для комфортного проживания. В данной статье, рассмотрим на примере нашего проекта один из таких вариантов. На первый взгляд, может показаться что ничего необычного в планировке нет. Обычная «евродвушка», с отдельной спальней, и кухней гостиной. Но проблемой в данной планировке стал санузел. Суть в том, что одним из запросов заказчика было объединить два санузла в один, но после замера выяснилось, что стена между помещениями несущая. Представьте, два маленьких пространства, в которые нужно было разместить все базовые потребности. Приходилось принимать компромиссные решения, которые влияли на функционал и эргономику. После нескольких вариантов пришло понимание, что для достижения успеха нужно выходить за рамки и мыслить шире. В итоге, мы нашли решение! Использовали пространство коридора для объединения санузлов, а единственную функцию коридора, вход в спальню, выполняет общее пространство кухни-гостиной. А еще это реш

Бывает, что планировка от застройщика не соответствует потребностям для комфортного проживания. В данной статье, рассмотрим на примере нашего проекта один из таких вариантов.

На первый взгляд, может показаться что ничего необычного в планировке нет. Обычная «евродвушка», с отдельной спальней, и кухней гостиной.

Но проблемой в данной планировке стал санузел. Суть в том, что одним из запросов заказчика было объединить два санузла в один, но после замера выяснилось, что стена между помещениями несущая. Представьте, два маленьких пространства, в которые нужно было разместить все базовые потребности. Приходилось принимать компромиссные решения, которые влияли на функционал и эргономику. После нескольких вариантов пришло понимание, что для достижения успеха нужно выходить за рамки и мыслить шире.

-2

В итоге, мы нашли решение! Использовали пространство коридора для объединения санузлов, а единственную функцию коридора, вход в спальню, выполняет общее пространство кухни-гостиной. А еще это решение, повлияло на планировку спальни, в которой образовалась ниша для встроенного шкафа. Таким образом одно решение, решило несколько вопросов.