Найти в Дзене

Нестандартная, но простая кухня нашим друзьям

Сейчас начну проект для наших друзей. Нарезаю задачу, кухня простая, линейная, размер 2983мм. На кухне останется пенал из ушедшей Икеи, который куплен без фасадов и был установлен давно, еще во время ремонта квартиры. Пользоваться им удобно, поэтому было решено его оставить. Остальные корпуса были поделены следующим образом: 80см на базу с мойкой (хозяйка любит, чтобы мойка была большой и просторной), 60см на встроенную посудомойку, 60см на ящики с варочной панелью, и остаток в 35см будет обычным шкафчиком с дверкой. Особенностью кухни будет ее высота. Наши друзья очень высокие, включая очень подросшего ребенка, поэтому высота нижних баз будет целый метр. Из интересных пожеланий клиента это ящики в цокольном пространстве. Такой опыт у семьи уже был, но тогда такие ящики изготавливались из обычных роликов на деревянной конструкции. В этот раз я собираюсь использовать специальный механизм. Верхние шкафы будут доходить до окошка вентиляции, которое закрывать не планируется. Стиль б

Сейчас начну проект для наших друзей. Нарезаю задачу, кухня простая, линейная, размер 2983мм.

На кухне останется пенал из ушедшей Икеи, который куплен без фасадов и был установлен давно, еще во время ремонта квартиры. Пользоваться им удобно, поэтому было решено его оставить.

Вот сюда мы будем ставить мебель
Вот сюда мы будем ставить мебель

Остальные корпуса были поделены следующим образом: 80см на базу с мойкой (хозяйка любит, чтобы мойка была большой и просторной), 60см на встроенную посудомойку, 60см на ящики с варочной панелью, и остаток в 35см будет обычным шкафчиком с дверкой.

Особенностью кухни будет ее высота. Наши друзья очень высокие, включая очень подросшего ребенка, поэтому высота нижних баз будет целый метр.

схема корпусов
схема корпусов

Из интересных пожеланий клиента это ящики в цокольном пространстве. Такой опыт у семьи уже был, но тогда такие ящики изготавливались из обычных роликов на деревянной конструкции. В этот раз я собираюсь использовать специальный механизм.

Верхние шкафы будут доходить до окошка вентиляции, которое закрывать не планируется.

Стиль будет самый простой, фасады гладкие, пластик - мятного цвета. Столешница и стеновая панель будут из искусственного камня, переход с фартуком плавный, таким образом это будет единое пространство.

Декор пластика
Декор пластика

Моя задача сейчас нарисовать макет, согласовать окончательно размеры и сделать заказ фурнитуры и материалов.

До Нового года поставить кухню мы уже не успеем, но заказать материалы можем, таким образом мы уже не будем зависеть от подъема цен, которые часто возникают в конце года или в начале следующего.

Но вернемся к кухне, для начала я рисую в программе эскиз. Максимально в размер, чтобы сразу можно было посчитать количество листового материала и кромки.

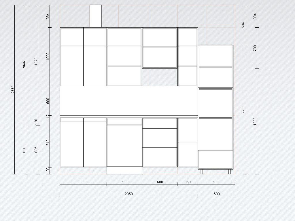
прорисовываю нужные механизмы и высоты
прорисовываю нужные механизмы и высоты

На этой картинке и чертежом с размерами можно в общем остановиться, но я люблю нарисовать вариант, который покажет будущую кухню в максимально живом исполнении.

Поэтому у меня получается 3D картинка.

-6

Ручки и цвет столешницы я пока выбрала на свой вкус и цвет. Это мы еще будем согласовывать.

Если мы будем встречаться, то разложу каталоги, если решаем удаленно, то скину фото и ссылку на наших поставщиков фурнитуры.

Что ж, начинаем работать.

#mebel #мебель #кухняназаказ #дизайнмебели