Найти в Дзене
GREY HOUSE

Дом сдан. Фото построенного дома. Можно посмотреть дом вживую!

Сдали дом по проекту Летбридж. В доме: кухня-гостиная, 2 спальни, с/у, хоз. помещение + терраса. Габариты дома: 6 х 6 м Площадь: 71 м2 Срок строительства дома с внутренней отделкой - 6 недель. Планировка дома Фото готового дома Фото готового дома внутри В эти выходные приглашаем Вас на просмотр дома. На объекте будет работать наш менеджер. У него можно уточнить Все интересующие Вас детали, обсудить изменения в проект, отдать в расчет свой проект. Если вы планируете строительство дома весной или летом 2023 года, то сейчас самое время посмотреть дом.
Вначале этого года мы заключили договора (до 24 февраля), которые строили до середины июля.
В начале года не будет домов для просмотра. Они будут на начальном этапе строительства. Первые дома будут сданы не раньше марта. Дом расположен в д. Карабаново, Богородский г.о., Московская обл. ГЕО Запись на просмотр Комплектация дома:
- Каркас дома сухой строганный 45х145 + 50мм
- Ветрозащита - JUTAVEK 115
- Пароизоляция Ютафол Н110+скотч
- Отделк
Оглавление

Сдали дом по проекту Летбридж.

В доме: кухня-гостиная, 2 спальни, с/у, хоз. помещение + терраса.

Габариты дома: 6 х 6 м

Площадь: 71 м2

Срок строительства дома с внутренней отделкой - 6 недель.

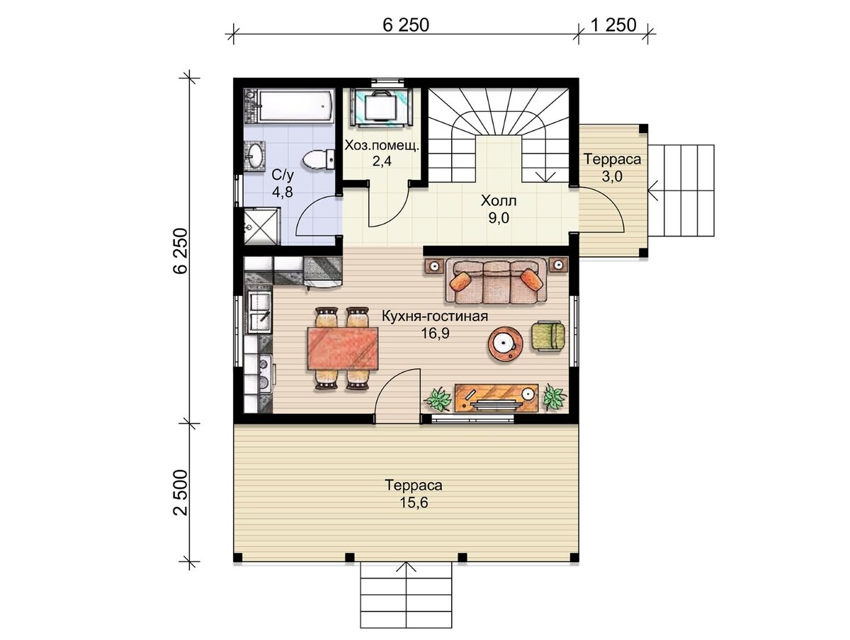
Планировка дома

Планировка 1 этажа
Планировка 1 этажа
Планировка 2 этажа
Планировка 2 этажа

Фото готового дома

Фото готового дома внутри

В эти выходные приглашаем Вас на просмотр дома. На объекте будет работать наш менеджер. У него можно уточнить Все интересующие Вас детали, обсудить изменения в проект, отдать в расчет свой проект.

Если вы планируете строительство дома весной или летом 2023 года, то сейчас самое время посмотреть дом.
Вначале этого года мы заключили договора (до 24 февраля), которые строили до середины июля.

В начале года не будет домов для просмотра. Они будут на начальном этапе строительства. Первые дома будут сданы не раньше марта.

Дом расположен в д. Карабаново, Богородский г.о., Московская обл. ГЕО

Запись на просмотр

Комплектация дома:
- Каркас дома
сухой строганный 45х145 + 50мм
- Ветрозащита -
JUTAVEK 115
- Пароизоляция Ютафол Н110+скотч
- Отделка снаружи скандинавская доска толщиной 21мм
с заводской покраской
- Утепление - пол, потолок, наружные стены 200мм
 Технониколь, перегородки 100мм
- Отделка внутри - имитация бруса толщиной 16мм, пол OSB толщиной 22мм
- Отделка пола на террасе лиственницей толщиной 28мм
- Кровля - металлочерепица толщиной 0,45мм
 PE
- Окна
ПВХ Rehau
- Двери входные -
ПВХ Rehau
- Водосточная система
GrandLine
- Разводка электрики

Стоимость дома в этой комплектации - 3850000 руб.

***

Все новости читайте в нашем телеграм-канале

Подписывайтесь на нашу группу Вконтакте

И, конечно же, подписывайтесь на нас в «Дзене»

Больше фотографий готового дома - https://grey-house.ru/object/karabanovo/

Наши контакты:
Телефон:
8-495-504-71-33
What’s App
mail@grey-house.ru
Сайт:
grey-house.ru