Добавить в корзинуПозвонить
Найти в Дзене

Уютный и практичный одноэтажный дом.

Всем привет!👋
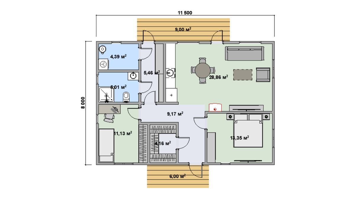
Продолжаем знакомить с нашими новыми проектами! Сегодня представляем Вашему вниманию современный финский дом Стелла. Дом очень функциональный: на площади в 92 м2 разместились:
🔹 просторный холл 9,17 м2 и коридор 5,46 м2 🔹 котельная 4,39 м2 🔹 вместительный санузел 6 м2 🔹 2 спальни 11,13 и 13,35 м2 🔹 кухня/гостиная 28,86 м2 🔹 гардеробная 4,16 м2 Основной отличительной чертой дома является односкатная кровля, которая добавляет объема и пространства кухне-гостиной 😍
Дом получился современным, уютным и очень компактным, габариты дома 8х11,5 м 💪🏻
Кроме того мы предусмотрели для посиделок с друзьями выход на патио и отдельный вход в техническую зону.
Не упустите свой шанс оформить этот и другие наши дома в ипотеку на выгодных условиях со ставкой от 5,3% ____________________________________________________________________________________ Мы строим Для вас/Дома/Мечту. 📡 www.norvill.ru 📞 Позвонить: +7 (916) 304-75-40 WhatsApp / Telegram: +7 (916) 304-75-40 📧 norv

Всем привет!👋
Продолжаем знакомить с нашими новыми проектами! Сегодня представляем Вашему вниманию современный финский дом Стелла.

Дом очень функциональный: на площади в 92 м2 разместились:

🔹 просторный холл 9,17 м2 и коридор 5,46 м2

🔹 котельная 4,39 м2

🔹 вместительный санузел 6 м2

🔹 2 спальни 11,13 и 13,35 м2

🔹 кухня/гостиная 28,86 м2

🔹 гардеробная 4,16 м2

-2

Основной отличительной чертой дома является односкатная кровля, которая добавляет объема и пространства кухне-гостиной 😍

Дом получился современным, уютным и очень компактным, габариты дома 8х11,5 м 💪🏻

Кроме того мы предусмотрели для посиделок с друзьями выход на патио и отдельный вход в техническую зону.

Не упустите свой шанс оформить этот и другие наши дома в ипотеку на выгодных условиях со ставкой от 5,3%

____________________________________________________________________________________

Мы строим Для вас/Дома/Мечту.

📡 www.norvill.ru

📞 Позвонить: +7 (916) 304-75-40

WhatsApp / Telegram: +7 (916) 304-75-40

📧 norvilcompany@yandex.ru

#проектдома #скандинавскиедома #домподключ #одноэтажныйдом #каркасноестроительство #каркасноедомостроение #строительстводома #строительство #каркасныйдом #каркасник