Добавить в корзинуПозвонить
Найти в Дзене
Филдс

Уют и морская тематика в типовой панельке: как дизайнер оформила квартиру 67 м² для девушки

Дизайнер Алеся Котова оформила четырехкомнатную квартиру 67 м² для девушки, которая работает в сфере логистики. Заказчице требовались отдельная спальня, кабинет, уютная гостиная и комната для мамы, которая часто приезжает погостить. Что касается стилистики, главные пожелания — комфорт и атмосфера защищенности, а также отсылки к морской тематике. Планировка Гостиная На пол в жилых зонах уложили паркетную доску, а стены выкрасили в серо-голубой оттенок. Визуально приподнять низкие потолки помогли широкие карнизы, которые покрасили в цвет стенам. Кухня Площадь кухни — всего 5,9 м2. Несмотря на это, там удалось уместить достаточно функциональный гарнитур и даже столовую группу. На полу использовали два вида керамики — керамогранит под бетон и плитку с геометрическим рисунком. В результате получилось создать эффект ковра. Спальня Стену в изголовье кровати выделили акцентными обоями. В изножье запланировали вместительную систему хранения с нишей под телевизор. Нотки розового добавляю
Оглавление

Дизайнер Алеся Котова оформила четырехкомнатную квартиру 67 м² для девушки, которая работает в сфере логистики. Заказчице требовались отдельная спальня, кабинет, уютная гостиная и комната для мамы, которая часто приезжает погостить. Что касается стилистики, главные пожелания — комфорт и атмосфера защищенности, а также отсылки к морской тематике.

  • Общая площадь: 67 м²
  • Место: Москва
  • Тип дома: «панелька» 1976 года постройки
  • Количество комнат: 4
  • Высота потолка: 2,4 м
  • Кто здесь живет: девушка
  • Дизайнер: Алеся Котова
  • Стилист: Анастасия Власова
  • Фото: Евгений Гнесин

Планировка

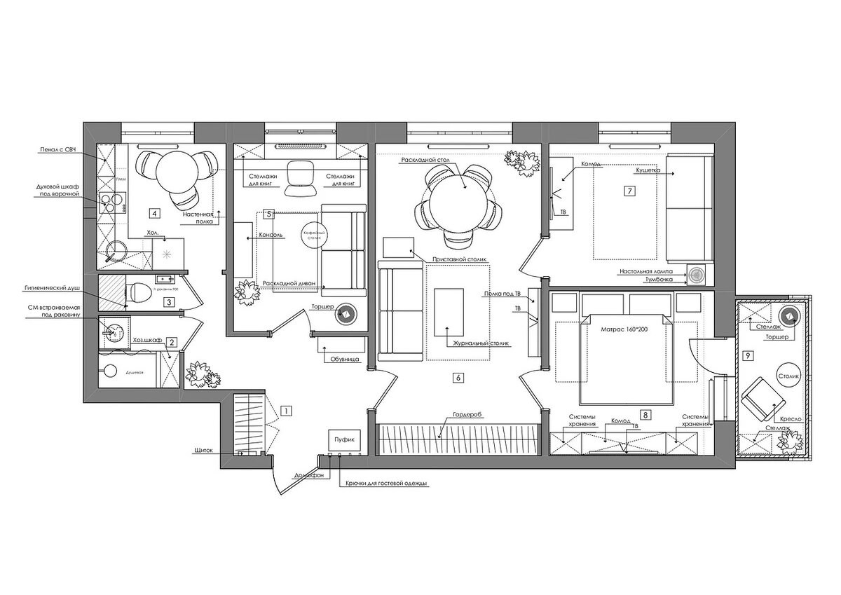
Исходную планировку решили не менять. Большую комнату определили под гостиную, а в помещениях поменьше обустроили спальню, гостевую и кабинет. Бюджет закладывали ограниченный, поэтому многое из мебели купили в ИКЕА.
Исходную планировку решили не менять. Большую комнату определили под гостиную, а в помещениях поменьше обустроили спальню, гостевую и кабинет. Бюджет закладывали ограниченный, поэтому многое из мебели купили в ИКЕА.

Гостиная

На пол в жилых зонах уложили паркетную доску, а стены выкрасили в серо-голубой оттенок. Визуально приподнять низкие потолки помогли широкие карнизы, которые покрасили в цвет стенам.

Кухня

Площадь кухни — всего 5,9 м2. Несмотря на это, там удалось уместить достаточно функциональный гарнитур и даже столовую группу. На полу использовали два вида керамики — керамогранит под бетон и плитку с геометрическим рисунком. В результате получилось создать эффект ковра.

Спальня

Стену в изголовье кровати выделили акцентными обоями. В изножье запланировали вместительную систему хранения с нишей под телевизор. Нотки розового добавляют уют.

Гостевая

В гостевой отошли от привычного сценария и оклеили стены обоями с принтом. Рисунок птиц на них поддержали соответствующим декором на люстре. Светлую отделку и мебель разбавили текстилем глубокого бирюзового оттенка.

Кабинет

В кабинете попробовали разнообразить цветовую палитру. Главной изюминкой стал малиновый диван, а ярко-синие стеллажи перекликаются с картинами на стенах. Письменный стол у окна — часть единой мебельной конструкции, которую изготовили на заказ.

Прихожая

Рядом со входом поставили пуф и установили несколько крючков для одежды. Нишу с полками напротив просто закрыли жалюзийными дверцами, что позволило сэкономить на покупке шкафа.

Санузел

Санузел в квартире раздельный. В ванной разместили большую душевую и раковину со стиральной машиной под ней.

Подпишись на канал Филдс, чтобы первым видеть новые публикации. Интересные мнения в комментариях приветствуются. Если материал понравился — ставь лайк!