Добавить в корзинуПозвонить
Найти в Дзене
Все о ремонте квартир

Что такое дизайн-проект, из каких 8-ми этапов он состоит, и сколько стоит.

Конечно, многие из вас, уже возможно и не раз, обращались к дизайнерам за такой услугой. Но... есть и те кто не сталкивался ни разу. Из каких этапов состоит полный дизайн-проект: 1. Обмерный план - то есть если работаем офлайн, то дизайнер приходит на объект и измеряет все помещения, в том числе окна, дверные проемы, их высоты и т. д. Если заказчик находится в другом городе, то либо дизайнер просит своего коллегу сделать обмерный план, либо сам заказчик делает это самостоятельно, либо заказывает такую услугу у других специалистов. Все цены будут внизу статьи. Так выглядит обмерный план. 2. Второй этап - заполняем ТЗ, то есть либо заказчик самостоятельно заполняет техническое задание, либо просто отвечает на мои вопросы. Где мы выявляем все его пожелания по стилю, цветовой гамме, сколько и какой мебели точно нужно и в какой комнате, нужна ванна или душевая и т. д. Я чаще всего работаю онлайн и считаю, что когда заказчик заполняет его самостоятельно, то это лучше. У него есть время поду

Конечно, многие из вас, уже возможно и не раз, обращались к дизайнерам за такой услугой. Но... есть и те кто не сталкивался ни разу.

Из каких этапов состоит полный дизайн-проект:

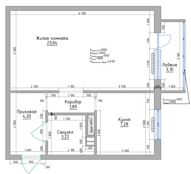
1. Обмерный план - то есть если работаем офлайн, то дизайнер приходит на объект и измеряет все помещения, в том числе окна, дверные проемы, их высоты и т. д. Если заказчик находится в другом городе, то либо дизайнер просит своего коллегу сделать обмерный план, либо сам заказчик делает это самостоятельно, либо заказывает такую услугу у других специалистов. Все цены будут внизу статьи.

Так выглядит обмерный план.

-2

2. Второй этап - заполняем ТЗ, то есть либо заказчик самостоятельно заполняет техническое задание, либо просто отвечает на мои вопросы. Где мы выявляем все его пожелания по стилю, цветовой гамме, сколько и какой мебели точно нужно и в какой комнате, нужна ванна или душевая и т. д.

Я чаще всего работаю онлайн и считаю, что когда заказчик заполняет его самостоятельно, то это лучше. У него есть время подумать, посоветоваться, например с супругом, дочкой, сыном и т.д. Потому что сразу можно просто что-то забыть, упустить...
Часть одного из ТЗ
-3

И когда ТЗ заполнено, я уже условно понимаю, что хочет в итоге видеть мой заказчик: цвет, стиль своего интерьера, какие зоны необходимо выделить и т. д. для комфортного проживания в дальнейшем. Затем можно созвониться, списаться или перевести диалог на видео связь для уточнения тех или иных вопросов.

3. Третий этап - заключение договора.

4. Планировочное решение - дизайнер разрабатывает 2-4 варианта планировочного решения, при разработки которых будут учтены все нормы эргономики и перепланировок. Так же исходя из данных ТЗ, учитывает все пожелания заказчика по наличию необходимых предметов мебели, образа жизни, привычек, хобби и т.д.

После того, как он выберет самый подходящий для него вариант, дизайнер его прорабатывает до идеала. И предоставляет заказчику альбом с полной документацией: исходный план, план демонтажа, план монтажа и новый обмерочный план с расстановкой мебели.

-4

5. 3Д визуализация - здесь заказчик уже получает полное представление своего интерьера, начиная от подобранной цветовой гаммы и краски для стен до керамогранита и розеток.

-5
И полную документацию проекта с чертежами демонтажа, монтажа (если требуется перепланировка), развертками стен, пола, потолка для дальнейшей работы строителей, потолочников, электриков и других мастеров.

По представленному чертежу, например, у строительной бригады будет полное понимание: в какой части стены нужно укладывать плитку или начинать покраску. Сантехник - в каком месте вывести трубы, а в каком спрятать в стену и так далее.

6. Комплектация объекта с подбором материалов и образцов

Сначала так же делаются чертежи с размерами мебели которую нужно выполнить на заказ, кроме кухонной - этим уже занимается сама мебельная компания, и какую купить. Затем подбираются конкретные образцы отделочных материалов.

-6

Именно на этом этапе "виртуальные" отделочные материалы визуализации обретают объем и фактуру.

7. Авторский надзор.

Регулярное посещение дизайнером объекта позволит на ранней стадии обнаружить ошибки строителей. Либо внести какие-то корректировки, бывают ситуации, когда воплотить ту или иную идею нет возможности, поэтому молниеносно требуется замена.

8. Подбор декора и фотосъемка уже готового стильного интерьера.
Примерно так выглядит весь процесс создания полного дизайн-проекта, но в моей практике, чаще всего заказывают именно первые 4 или 5, а дальше контролируют ремонт самостоятельно.

-7

Как посчитать бюджет - небольшая шпаргалка для расчета:

Отталкиваемся от стоимости работ строительной бригады - примерно 22% от общей суммы.
Мебель, техника - 25%;
Черновые материалы -11%;
Чистовые материалы - 27%;
Декор - 8%;
Полный дизайн-проект - 7%.

То есть сначала можно проанализировать цену работы отделочников за м. кв. в вашем регионе от этого и начинать расчёт.

По дизайн-проекту здесь все индивидуально и зависит самого объекта, региона в котором он находится и сложности планировки. Вот цены от...: обмерный план - от 100 руб. м2, планировочное решение - от 300 руб., визуализация - от 900 руб., документация рабочих чертежей от - 400 руб. м. кв., авторский надзор - 20 тыс. руб., комплектация - от 500 руб. м. кв. остальное по договоренности.

Спасибо, что заглянули в мою студию! Понравилось ставьте лайки! Пишите комментарии! И не забывайте подписываться!