Найти в Дзене
Не только СТРОЙКА

Как мы построили бюджетный и стильный дом 84 м2 (проект можно скачать)

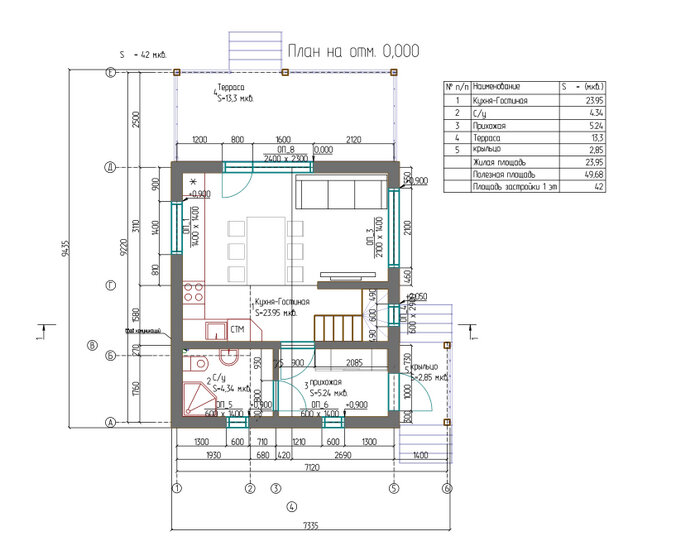
Этой осенью, мы закончили строительство небольшого аккуратненько дома в 2 этажа!  Здесь я постараюсь принести немного пользы, тем кто захочет построить такой дом! А именно, расскажу что в проекте интересного и выложу проект (все чертежи с конструктивом) чтобы вы могли использовать их для строительства! Вот такой домик 84 м2 Два этажа Построен по каркасной технологии Отделка сайдингом У дома просторная терраса Вот собственно проект для скачивания, в ПДФ: Проект загородного каркасного дома 84 м2 в Иркутске В Следующем посте обязательно смету выложу Вот обзор дома: В доме довольно большое количество комнат. Но надо полагать, что на такую площадь приходятся совсем небольшие комнаты ) На первом этаже компактно расположили крыльцо, террасу. Кухня-гостиная  в 24 м2, и здесь вы можете сказать, что у вас "туалет, гардероб, сан узел" больше, как это делают очень часто, но у всех разные возможности. Кто то в 500 квадратах чувствует себя очень не комфортно, кому и апарты в 21 м2 - зато свое! К т
Оглавление

Этой осенью, мы закончили строительство небольшого аккуратненько дома в 2 этажа!  Здесь я постараюсь принести немного пользы, тем кто захочет построить такой дом!

А именно, расскажу что в проекте интересного и выложу проект (все чертежи с конструктивом) чтобы вы могли использовать их для строительства!

Вот такой домик

84 м2

Два этажа

Построен по каркасной технологии

Отделка сайдингом

У дома просторная терраса

Вот собственно проект для скачивания, в ПДФ: Проект загородного каркасного дома 84 м2 в Иркутске

В Следующем посте обязательно смету выложу

Вот обзор дома:

В доме довольно большое количество комнат. Но надо полагать, что на такую площадь приходятся совсем небольшие комнаты )

-2

На первом этаже компактно расположили крыльцо, террасу. Кухня-гостиная  в 24 м2, и здесь вы можете сказать, что у вас "туалет, гардероб, сан узел" больше, как это делают очень часто, но у всех разные возможности. Кто то в 500 квадратах чувствует себя очень не комфортно, кому и апарты в 21 м2 - зато свое!

К тому же на первом этаже обалденные панорамные окна с выходом на террасу )

-3

Также на первом этаже есть холл под лестницу, тамбур и сан узел.

-4

На втором этаже целых 3!! Три спальни! Гардероб и сан узел! И конечно холл под лестницу! Конечно такое количество объектов планировки в 42 м2 не могли пройти незаметно для площади каждого из них.

-5

Но в итоге у дома: 2 холла, тамбур, 2 сан узла, гардеробная, кухня гостиная, 3 спальни )

Очень уютное и экономное жилье для обеспечения всех потребностей семьи )  И конечно если это рассматривать как второе жилье на природе, то претензий быть вообще не должно)

-6

У дома просторная терраса

-7

Строился дом на болотистой местности. У нас в Иркутске огромные территории Сибири простилаются на сотни км от одного города до другого) Но в самом городе течет несколько рек. Самая большая - Ангара, поменьше - Иркут, вот в его пойме и строился этот домик)

За счет того, что это черта города, место весьма популярно, хоть и на болоте. Называется Селиваниха, если кто то из Иркутска. От того и строился дом на сваях.

-8

Это внешний вид фасада "с другой стороны". И здесь стоит наверное проговорить про отделку фасада. Обычный, но не самый дешевый садинг... Точнее надежный и хороший сайдинг, без большого количества вставок, углов, переходов обойдется вам не так дорого как кажется. Остается вопрос как сделать его более или менее привлекательным?

Самый лучший способ - сделать контраст на элементах: откосы, углы, сафиты - будут симпатичнее смотреться если вы сделаете на светлом сайдинге эти элементы темнее )

-9

Домик строился с комплектом сантехники, электрики, чистыми полами. Теплым полом. Отделка финиша - это процесс отдельной истории, да и сейчас еще не выполнен. Но стены подготовлены под поклейку обоев.

-10

Собственно после окончания работы строителей, поклеить обои - это совсем не сложная операция. И самое главное - не ответственная, от неё не упадут стены если накосячишь. По этому если остальные работы выполняли строители, то обои уже будут клеить хозяева.

-11

Сколько все обошлось с разбивкой по этапам и сметой "чтобы скачать" я опубликую в следующем посте )

Как вам домик?

Проект для скачивания:  Проект каркасного дома два этажа с террасой, скачать