Добавить в корзинуПозвонить
Найти в Дзене

Скромный и элегантный дом эконом-класса в скандинавском стиле

Общая площадь: 136 кв.м., размеры дома: 18 x 11 м. Всех приветствую, дорогие друзья! С Вами, как всегда потрясный, архитектор Номернаби́с. Побывав в Скандинавии меня поразила величественная красота её северной природы с зеркальными поверхностями озёр, каменистыми склонами, вечнозелёными лесами, а также суровый климат, заставляющий жить в постоянной готовности к борьбе со стихией. Здесь температура наверное не меньше -200, где-е-е любимые тёплые песочки? Видимо это и определило характер скандинавского архитектурного стиля. Сдержанно-практичный, но в то же время безукоризненно элегантный, зародившийся на территории нынешних Швеции, Дании, Норвегии и Финляндии, этот стиль весьма самобытен. И вот он - скромный, но очень элегантный скандинавский дом из клееного бруса. Помимо броской цветовой гаммы и приземистого горизонтального силуэта, запоминается общей простотой и цельностью формы, а также большой центральной витражной группой. Ну не прелесть ли? Даже менять почти ничего не хочется. Раз
Оглавление

Общая площадь: 136 кв.м., размеры дома: 18 x 11 м.

Всех приветствую, дорогие друзья! С Вами, как всегда потрясный, архитектор Номернаби́с.

Побывав в Скандинавии меня поразила величественная красота её северной природы с зеркальными поверхностями озёр, каменистыми склонами, вечнозелёными лесами, а также суровый климат, заставляющий жить в постоянной готовности к борьбе со стихией. Здесь температура наверное не меньше -200, где-е-е любимые тёплые песочки? Видимо это и определило характер скандинавского архитектурного стиля. Сдержанно-практичный, но в то же время безукоризненно элегантный, зародившийся на территории нынешних Швеции, Дании, Норвегии и Финляндии, этот стиль весьма самобытен.

И вот он - скромный, но очень элегантный скандинавский дом из клееного бруса. Помимо броской цветовой гаммы и приземистого горизонтального силуэта, запоминается общей простотой и цельностью формы, а также большой центральной витражной группой. Ну не прелесть ли? Даже менять почти ничего не хочется. Разве крыльцо сделать таким же как терраса справа и объединить их проходом.

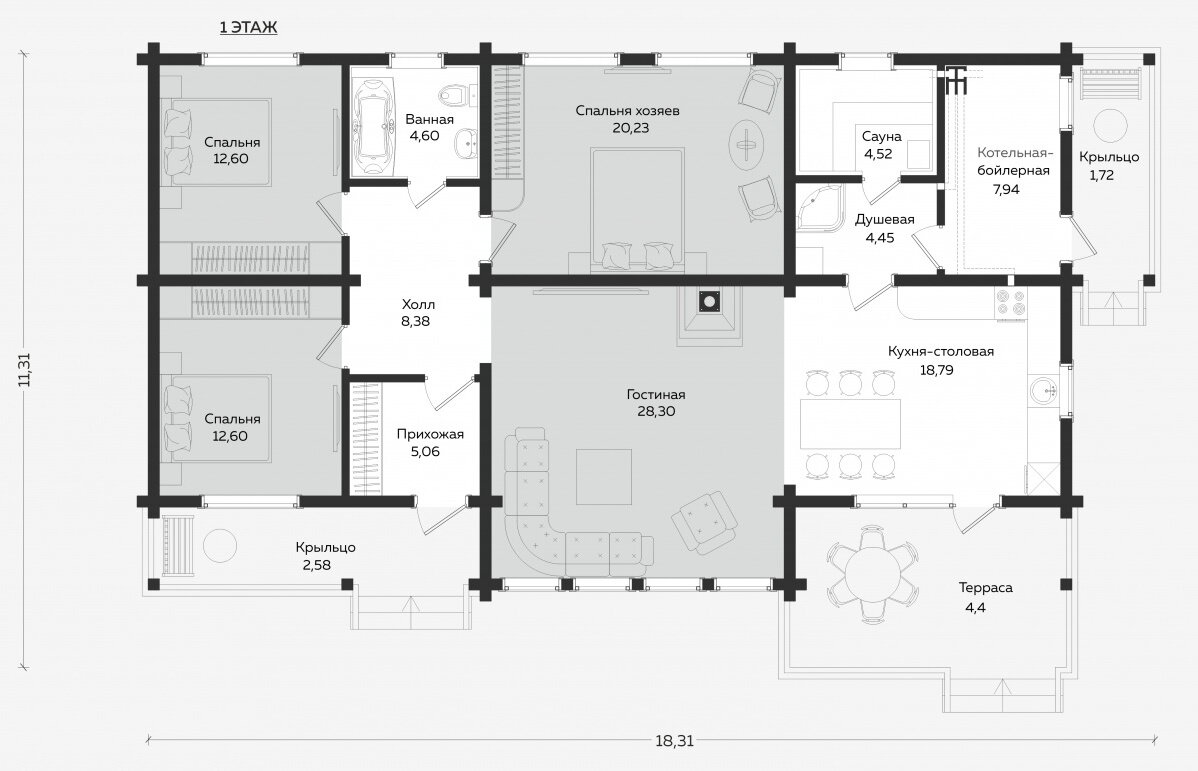
Планировка радует максимально полезным использованием своей площади, больше половины которой отдано под жилые комнаты. Она обладает одновременно и компактностью, и зонированностью помещений, среди которых выделяются три группы: блок спален, объединённое пространство кухни-столовой и гостиной, а также зону сауны и котельной.

Прихожая небольшая, но достаточная для эконом-класса. Далее холл, ванная и три спальни. Спальня хозяев большая и светлая, две другие спальни небольшие, но вполне комфортные.

Гостиная тоже большая, с целой остеклённой двухсветной стеной. Супер! Но почему камин не по середине, не пойму? А, понял - там большая плазма висит. Чтобы сэкономить место я бы его вставил в стену и сделал его не квадратным, а прямоугольным. Ну, как исключение, плазму можно над ним повесить. А диваны поставить по всей ширине остеклённой стены.

Кухня-столовая достаточно просторная с выходом на террасу. Из неё же вход в душевую с сауной. Я бы поставил остеклённую перегородку между кухней и гостиной, конечно с двухстворчатыми, тоже остеклёнными дверями. Да и между холлом и гостиной поставил бы такие же.

Ну и как же в таких широтах без сауны, небольшая, уютная, эх погреться бы, закоченел я на этом севере. Далее. Из душевой проходим в котельную-бойлерную со своим выходом на участок. Прекрасно.

-2

Что же ещё? А, отделка. Строгость материалов наружной отделки контрастирует со смелой терракотовой окантовкой дома, что придаёт фасадам современность и стиль, а будущему хозяину, - возможность выделиться из окружающих, не прибегая к лишним затратам. Действительно, дом выглядит эффектно, даже потрясно. Да?

-3
-4
-5
-6

В общем, вот такой современный скандинавский дом. Скандинавский стиль в архитектуре далёк от высоких технологий и художественно-декоративных инноваций. Это скорее скромный, лишенный бессмысленного пафоса, довольно сдержанный, но при этом, весьма элегантный и уютный вариант жилища. На этом всё.

Спасибо Вам за просмотр! Пишите комменты, буду рад узнать Ваше мнение. Ваш, всегда потрясный, архитектор Номернаби́с.

Проект: https://www.mera-project.ru/catalog/doma-iz-brusa/m393/

Возможно вам будет интересно:

Проект дома эконом-класса в стиле барнхаус
Проект дома эконом-класса в стиле готика
Проект дома эконом-класса в стиле американского ранчо

Всем добра, радости и процветания!