Добавить в корзинуПозвонить
Найти в Дзене

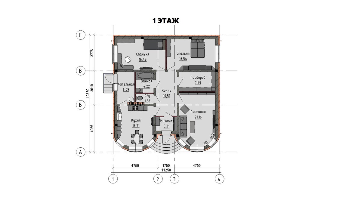
Проект дома для родителей с 2мя полукруглыми эркерами 11-12м (100м2)

⠀♻️Габаритные размеры 10,25м-12,35м ⠀♻️Общая площадь всех помещений - 104м2 ⠀♻️Жилая (полезная) площадь - 95м2 ⠀♻️Количество этажей - 1 ⠀♻️Высота потолков - 3,0м ⠀♻️Количество спален - 2 шт. ⠀♻️Количество сан.узов - 2шт (раздельный) Кайфовый симпотичный домик с 2мя полукруглыми эркерами, что весьма необычно и непривычно и такая же непривычная планировкой. Когда кухня и гостиная отдельно друг от друга.
Отлично подойдет для родителей и симпатичный и неброский и всего 100м2.
Раздельная кухня с гостиной шоб рыбку, котлетки жарить и мужу не ваняло))
Котельную можно юзать как склад для кастрюль. ☝️
Гостиная шобббы телек ни кто не мешал смотреть, и внукам где потусить есть, так шо везите своих сарванцов будут в огороде помогать.
Две равнозначные спальни, чтоб спать сладко и крепко и не кто в ухо не храпел, да старый)))
Ну и поразглядывай с разных сторон, Я старался. Родителям точно зайдет.
Консультация понадобится, звони пиши. 8-918-44-22-080 - Вадим М2 – архитектурно строительное бюро Н
Архитектор - Зяблов Вадим
Архитектор - Зяблов Вадим
  1. Проект дома подойдёт для #семьи из 3-4 человек.
  2. Проект дома подойдет для участка с фасадом 18м
  3. Материал - несущих стен - газобетон
  4. Наружная отделка- облицовочный кирпич Липецкий Коирца И Золотистый
  5. Кровельное покрытие - кровля мягкая Технониколь Ранчо
План 1го этажа
План 1го этажа

⠀♻️Габаритные размеры 10,25м-12,35м

⠀♻️Общая площадь всех помещений - 104м2

⠀♻️Жилая (полезная) площадь - 95м2

⠀♻️Количество этажей - 1

⠀♻️Высота потолков - 3,0м

⠀♻️Количество спален - 2 шт.

⠀♻️Количество сан.узов - 2шт (раздельный)

Кайфовый симпотичный домик с 2мя полукруглыми эркерами, что весьма необычно и непривычно и такая же непривычная планировкой. Когда кухня и гостиная отдельно друг от друга.

Отлично подойдет для родителей и симпатичный и неброский и всего 100м2.

Раздельная кухня с гостиной шоб рыбку, котлетки жарить и мужу не ваняло))
Котельную можно юзать как склад для кастрюль. ☝️
Гостиная шобббы телек ни кто не мешал смотреть, и внукам где потусить есть, так шо везите своих сарванцов будут в огороде помогать.
Две равнозначные спальни, чтоб спать сладко и крепко и не кто в ухо не храпел, да старый)))

Ну и поразглядывай с разных сторон, Я старался. Родителям точно зайдет.
Консультация понадобится, звони пиши. 8-918-44-22-080 - Вадим

-3
-4
-5
-6
-7

М2 – архитектурно строительное бюро

На сайте проект имеет номер ZV - 011

сайт: https://m2-23.ru - кликай на сайте еще больше проектов

М2 – архитектурно строительное бюро

instagram: @domproekt https://www.instagram.com/domproekt/

youtube: https://www.youtube.com/channel/UCuJVBu1fxnXXBWmR86yoJ9g

Почта: m2-23@yandex.ru

  • тел: 8-918-44-22-080 Вадим архитектор -пиши звони 😘