Добавить в корзинуПозвонить
Найти в Дзене

Вести с полей: итоги реализации невероятного кухонного гарнитура

Хотела бы показать к какому результату привела совместная работа с компанией БИС интерьер. Я уже писала ранее о запросах заказчицы. Статья выше подробно рассказывает о поставленных задачах и проектировании. В той статье я только говорила о задумках и идеях. Здесь подробно покажу, что же у нас получилось в итоге. Ниже можно увидеть, как план помещения трансформируется в модель, как на ней вырастают объекты мебели. Вот какие итоговые изображение мы получили после проработки декора стен, освещения, текстиля Почему важен авторский надзор и реализация мебели под надзором дизайнера. Прошу обратить внимание на некоторые важные детали, которые мы учли при проектировании. Их удалось реализовать и результат очень порадовал заказчицу. На острове мы сделали специальную зону, которая нижу уровня обеденной поверхности. Она прячется ниже и не бросается в глаза со входа, вся техника подключается в розетку, которая утоплена и провода не тянутся на виду. Все смотрится эстетично и у хозяйки все под руко
Оглавление

Хотела бы показать к какому результату привела совместная работа с компанией БИС интерьер.

Вести с полей: любимый проект кухонного гарнитура
pinkitch13 октября 2022

Я уже писала ранее о запросах заказчицы. Статья выше подробно рассказывает о поставленных задачах и проектировании. В той статье я только говорила о задумках и идеях. Здесь подробно покажу, что же у нас получилось в итоге.

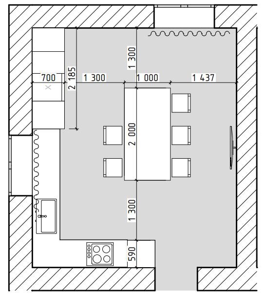
Ниже можно увидеть, как план помещения трансформируется в модель, как на ней вырастают объекты мебели.

План помещения с расстановкой мебели и оборудования
План помещения с расстановкой мебели и оборудования
Модель помещения кухни. Вид сверху
Модель помещения кухни. Вид сверху

Вот какие итоговые изображение мы получили после проработки декора стен, освещения, текстиля

Почему важен авторский надзор и реализация мебели под надзором дизайнера.

Прошу обратить внимание на некоторые важные детали, которые мы учли при проектировании. Их удалось реализовать и результат очень порадовал заказчицу. На острове мы сделали специальную зону, которая нижу уровня обеденной поверхности. Она прячется ниже и не бросается в глаза со входа, вся техника подключается в розетку, которая утоплена и провода не тянутся на виду. Все смотрится эстетично и у хозяйки все под рукой.

Посмотрите, как в процессе реализации объекта с дизайнером, проект удалось улучшить и добавить завершенности, которая не была достигнута изначально.
Черный радиатор
идеально вписался на стадии ремонта. Подбор ткани для штор начался после того, как удалось найти идеальный фиолетовый оттенок стульев. Их привезли на объект и уже на месте подбирался текстиль для штор. Ткань подошла идеально и появились тяжелые контрастные детали, поддерживающие стулья, светильники и черный короб ГКЛ. На проекте этого явно не хватало.

-6

-7

На стадии ремонта стало ясно, что лучше повторить коробом ГКЛ контур верхних навесных шкафов. Обратите внимание на то, что ранее в проекте этого не подразумевалось. На очередном выезде на объект такой вариант показался более эстетичным, аккуратным и легким.

Я уже говорила выше о черном радиаторе, то же коснулось и смесителя. В итоге взяли черный! Он отлично перекликается с другими черными элементами кухни.

Также реализация объекта намного сочнее и более текстурированный, чем проект. Что не может не радовать

Это действительно любимый проект кухонного гарнитура, ведь заказчица доверила полностью реализацию в наши руки и все получилось лучше, чем задумывалось.

После подведения итогов ремонта и анализа, проведенного в этой статье, стало ясно, что дизайнер важен не только на стадии разработки, но и на стадии ремонта и реализации всех идей.

Обращайтесь!

pinkitch