Добавить в корзину
Позвонить
Найти в Дзене
Войти
RC off road
4529 подписчиков
Подписаться
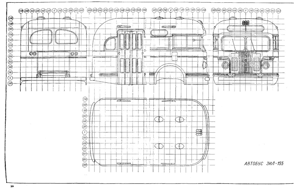
ОБЩИЙ ВИД АВТОТРАНСПОРТНЫХ СРЕДСТВ (ЗИЛ-155, КАРМАН-ГИА ФИАТ-1800, КОРВЕТ 1957 ГОДА, ЛАЗ, ПОЛУПРИЦЕПА-ХЛОПКОВОЗА, ТАТРА-603, КАЗ-601, ГАЗ-13
29 ноября 2022
29 ноя 2022
12
...
Читать далее
Всё об автомобилях
4,84 млн интересуются
Следить за темой
1
3383007232.1341.1778595195372.37865