Добавить в корзинуПозвонить
Найти в Дзене
Блондинка в дизайне

Уместила кухню, гостиную и спальню на 19 квадратных метрах

В прошлом году ко мне обратился заказчик со словами: « У меня маленькая квартира с неудобной планировкой, я не знаю что из нее можно сделать, наверно я буду ее продавать…» Я слышу такие слова очень часто, когда самостоятельно не удается придумать хорошее решение и люди просто продают такие квартиры, а иногда и дома! Рассмотрим что не так было с данным проектом ) 1. На исходе мы имели однокомнатную квартиру, где была маленькая кухня в 6.9 кв.м. и одна жилая комната в 11.3. кв.м. В таком случае на данной площади у нас поместится только диван и тумба с телевизором. Диван при этом нужно ежедневно складывать и раскладывать для сна, что откровенно говоря неудобно. И это с учетом, что в квартире проживает только один человек, для двоих такой сценарий планировки становится еще более неудобным. Я бы сама не хотела выходя из кухни ложиться сразу в кровать, либо сидеть на балконе. А если ко мне придут гости? Хотя бы один человек. Ни мне, ни гостю не будет комфортно в таком приватном месте к
Оглавление

В прошлом году ко мне обратился заказчик со словами: « У меня маленькая квартира с неудобной планировкой, я не знаю что из нее можно сделать, наверно я буду ее продавать…»

Я слышу такие слова очень часто, когда самостоятельно не удается придумать хорошее решение и люди просто продают такие квартиры, а иногда и дома!

Рассмотрим что не так было с данным проектом )

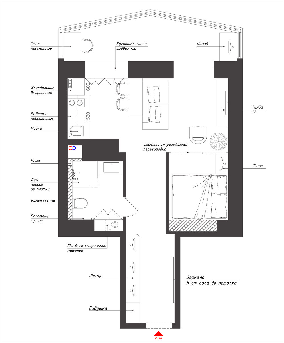
1. На исходе мы имели однокомнатную квартиру, где была маленькая кухня в 6.9 кв.м. и одна жилая комната в 11.3. кв.м.

  • Что делать с одной комнатой? Отдавать ее под гостиную?

В таком случае на данной площади у нас поместится только диван и тумба с телевизором. Диван при этом нужно ежедневно складывать и раскладывать для сна, что откровенно говоря неудобно. И это с учетом, что в квартире проживает только один человек, для двоих такой сценарий планировки становится еще более неудобным.

  • Отдавать комнату под спальню с полноценной кроватью?

Я бы сама не хотела выходя из кухни ложиться сразу в кровать, либо сидеть на балконе. А если ко мне придут гости? Хотя бы один человек. Ни мне, ни гостю не будет комфортно в таком приватном месте как спальня. Спальня – это личное пространство, согласитесь.

  • При всем этом вопрос с гостиной/спальней – это не единственная проблема этой квартиры. Мы так же видим, что кухня тоже достаточно мала.

2. Что я предложила клиенту?

Снести 2 перегородки
Сделать объединённую кухню гостиную
Разместить очень небольшую, но все же спальню, с полноценной кроватью
-2

3. Что у нас получилось.

Увеличение пространства за счет объединения кухни и гостиной. У нас полноценно встал стол, весь кухонный гарнитур, диван и ТV зона.

Ура!

Мы можем звать гостей, нам не нужно каждый день складывать и раскладывать диван, потому что теперь у нас есть отдельная спальня.

-3
-4

-5
-6

Мы убрали оконные блоки и также присоединили зону лоджии, что дало нам больше света и воздуха, но самое главное в одном из проемов вместо балконных дверей и окна мы добавили кухонную рабочую поверхность и доп. зону хранения для посуды.

-7

В спальне отлично встала двуспальная кровать и даже небольшой шкаф для вещей.

Чтобы больше уединиться или закрыться от дневного света, за стеклянной перегородкой мы повесили шторы, которые легко зашторивать.

-8

Поместилось даже кресло =)

-9

Напомню, что площадь данного пространства всего 19 кв м.)

-10

Продажа квартиры, конечно, была отменена)

Напишите, пожалуйста, в комментариях понравилось ли вам как я изменила эту квартиру или что бы вы добавили в данный проект)
Подписывайтесь на мой канал, у меня много интересных решений =)

Больше моих работ в Инстаграм@natalya_sh_design
По вопросам сотрудничества писать в Tелеграм: @blond_in_designn