Добавить в корзинуПозвонить
Найти в Дзене

Всего 39 кв.м. В однушке уместили всё! Кухню, гостиную, спальню и не только! ДО/ПОСЛЕ фото.

Новый жилой комплекс. г Казань. Однокомнатная квартира площадью 39 кв.м., высота потолков 2,94 м. В квартире работала дизайнер Маргарита Калинина. Квартира предназначена для проживания одного человека с домашним питомцем, а именно мама заказчицы и ёё кошка. Цель сделать квартиру светлой и уютной, чтобы в ней было удобно пожилой женщине. Определённых пожеланий к цвету и фактурам не было, главное не вычурно. (Сегодня проект с профессиональными фотографиями)
Планировка. Изначально планировка была такой: очень узкая кухня, комната, коридор, санузел. Старую планировку изменили. Убрали часть стены между комнатой и кухней, на старой кухне теперь зона гостиной и сама кухня, чуть уменьшили площадь спальни, зато появилась гардеробная, рабочее место, санузел не трогали, он остался прежним. Прихожая. Слева от входной двери установили большой встроенный шкаф с распашными дверцами для верхней одежды и обуви. Внизу спрятан лоток для кошки. Белый распашной шкаф в прихожей справа от входа,

Новый жилой комплекс. г Казань. Однокомнатная квартира площадью 39 кв.м., высота потолков 2,94 м. В квартире работала дизайнер Маргарита Калинина. Квартира предназначена для проживания одного человека с домашним питомцем, а именно мама заказчицы и ёё кошка. Цель сделать квартиру светлой и уютной, чтобы в ней было удобно пожилой женщине. Определённых пожеланий к цвету и фактурам не было, главное не вычурно. (Сегодня проект с профессиональными фотографиями)
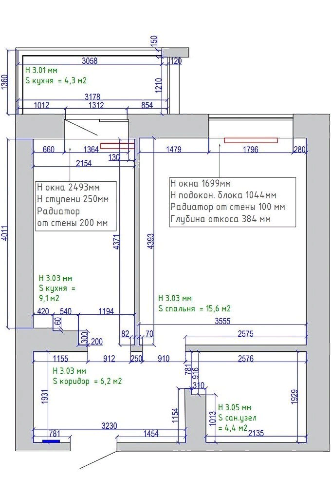
Планировка. Изначально планировка была такой: очень узкая кухня, комната, коридор, санузел.

Старая планировка квартиры
Старая планировка квартиры

Старую планировку изменили. Убрали часть стены между комнатой и кухней, на старой кухне теперь зона гостиной и сама кухня, чуть уменьшили площадь спальни, зато появилась гардеробная, рабочее место, санузел не трогали, он остался прежним.

Новая планировка квартиры
Новая планировка квартиры

Прихожая. Слева от входной двери установили большой встроенный шкаф с распашными дверцами для верхней одежды и обуви. Внизу спрятан лоток для кошки.

Прихожая после ремонта
Прихожая после ремонта
Прихожая ДО ремонта
Прихожая ДО ремонта
-5

Белый распашной шкаф в прихожей справа от входа, это место, где мы спрятали стиральную машину.

-6

Санузел. Плитка на стене в двух цветах, на полу с ярким рисунком, подвесная тумба с накладной раковиной, душевая кабина, подвесной унитаз с инсталляцией.

-7
-8
-9

Кухня-гостиная. Та самая узкая комната. Гарнитур с ярко-синим нижним рядом шкафов, ни сколько не резонирует с общим настроением комнаты.

Кухня-гостиная
Кухня-гостиная
Кухня ДО ремонта
Кухня ДО ремонта
-12

В зоне гостиной раскладной диван.

-13
-14

Напротив обеденного стола, рабочий стол, он же будуарный столик.

-15

Скрытая дверь ведет в гардеробную.

-16

Спальня. Получилась роскошной, двуспальная кровать, прикроватная тумба, над изголовьем светильник для чтения.

Спальня до ремонта
Спальня до ремонта
-18
-19

Также есть удобное кресло со столиком.

-20

Балкон с панорамным остеклением, потолок натяжной, на полу плитка, под ней теплый пол. Поставили небольшой комод для хранения.

Балкон ДО ремонта
Балкон ДО ремонта
-22

На наш взгляд квартира получилась не просто красивой, а шикарной. И маме нашей заказчицы будет в ней очень комфортно жить.