Найти в Дзене

Как переделать однокомнатную квартиру в студию, сохранив при этом функциональность, и выделить отдельную зону для каждого члена семьи

Ко мне обратилась молодая пара с просьбой распланировать однокомнатную квартиру. Казалось бы простая задача… Но было не всё так просто. Во-первых, супруги хотели из однокомнатной квартиры сделать квартиру-студию, во-вторых, они планируют пополнение семейства, но не сейчас, а в ближайшем будущем. Т.е. моей задачей было распланировать квартиру так, чтобы в последствие без ремонта и каких либо переделок появился угол для малыша. Работа была ещё интересна тем, что заказчики люди творческие. У супруги художественное образование. Супруга любит рисовать, и к тому же хочет делать это дома. Поэтому нужно место под мольберт. Одним словом, передо мной стояла не простая задача: учесть все пожелания заказчика и разместить всё необходимое в однокомнатной квартире на 35 кв.м. Вот первоначальный план, с которого началась работа. Делать из квартиры студию было не обязательной задачей, супруги просто о ней мечтали, но я решили попробовать и реализовать их пожелания. Я сделала 3 варианта планировки. И во

Ко мне обратилась молодая пара с просьбой распланировать однокомнатную квартиру. Казалось бы простая задача… Но было не всё так просто. Во-первых, супруги хотели из однокомнатной квартиры сделать квартиру-студию, во-вторых, они планируют пополнение семейства, но не сейчас, а в ближайшем будущем. Т.е. моей задачей было распланировать квартиру так, чтобы в последствие без ремонта и каких либо переделок появился угол для малыша.

Работа была ещё интересна тем, что заказчики люди творческие. У супруги художественное образование. Супруга любит рисовать, и к тому же хочет делать это дома. Поэтому нужно место под мольберт.

Одним словом, передо мной стояла не простая задача: учесть все пожелания заказчика и разместить всё необходимое в однокомнатной квартире на 35 кв.м.

Вот первоначальный план, с которого началась работа.

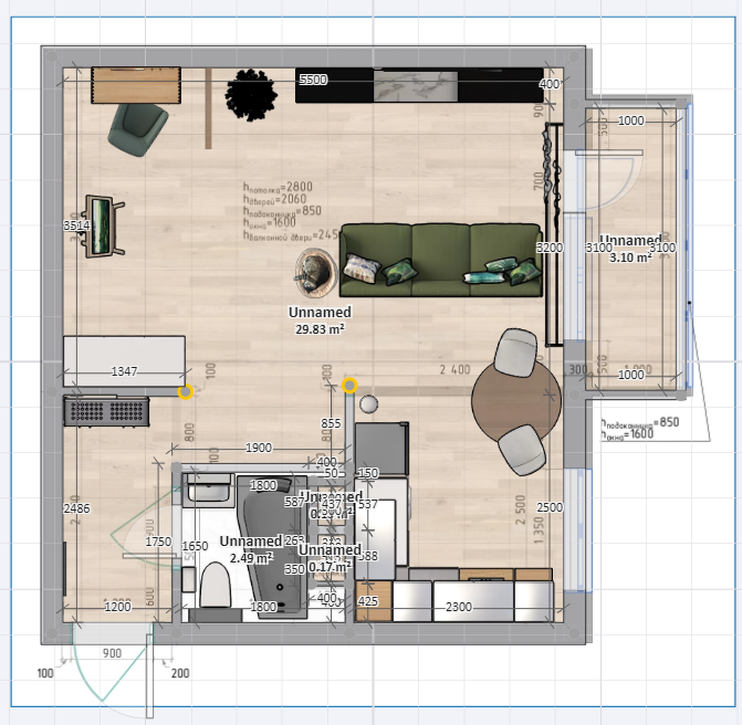
Обмерный план
Обмерный план

Делать из квартиры студию было не обязательной задачей, супруги просто о ней мечтали, но я решили попробовать и реализовать их пожелания.

Я сделала 3 варианта планировки. И вот что у меня получилось:

Заказчики выбрали вариант №2.

За счёт того, что убрали перегородку между кухней и комнатой, увеличилось пространство маленькой кухни. Всё необходимое на кухне поместилось, даже стиральной машине нашлось место. Встал полноценный угловой кухонный гарнитур.

-3

Так же получилось очень уютное место для обеденного стола.

-4

Чтобы не занимать место большим количеством мебели, решили обойтись без кровати, заменив ее на раскладной диван.

-5

Заказчики хотели в своем интерьере разместить перегородку из реек. И такую перегородку мы использовали для зонирования квартиры. Я считаю, получилось отлично, получилось разделить помещений, при этом осталось много света и воздуха.

-6

Ну и самой сложной задачей было запланировать уголок для малыша, который будет использовать до момента его появления.

Я подумала, что отлично будет сделать уголок для молодой супруги, где она будет заниматься своим любимым хобби и собой.

-7

Ванная комната в маленьких квартирах тоже очень сложный момент. Заказчики хотели поставить ванную, а не душевую кабину (чтобы было удобно купать ребенка). И вот что получилось.

Мне хотелось сделать эту квартиру максимально удобной и функциональной, поэтому я использовала все имеющиеся возможности. Я подумала, что не будет лишнем дополнительное место для уединения и организовала его на балконе.

Милое тихое местечко, где можно посидеть в тишине и почитать любимую книгу.

И так же мы не забыли про домашнего питомца. У хозяев есть кот. Ему тоже нужно не мало место. На кухне поставили миски, лоток для туалета размещен в санузле, а для сна выделили ему отличный уголок в коридоре.

-10

В итоге заказчики довольны результатом. В проекте были учтены и реализованы все их задумки и желания. Надеюсь, им будет комфортно и уютно жить в квартире с этим дизайном.

Если вы планируете делать ремонт в своей квартире, получить не только красивый, но и комфортный, функциональный дизайн, пишите мне.

Viber, WhatsApp: +7 9033093942

Telegram: @Yuliya_siti63

E-mail: siti_@list.ru