Найти в Дзене
GREY HOUSE

Фотоотчет с объекта. Строительство каркасного дома.

В работе дом по проекту Химос с 3-мя спальнями. Размеры дома - 12,5х8,7м. Жилая площадь - 97 м2. Планировка дома Фотоотчет с объекта Строим дом в КП "Южный парк", Домодедовский р-н. Бригада возвела каркас дома. Монтирует стропильную систему. Комплектация дома:
- Каркас дома сухой строганный 45х145мм
- Ветрозащита - JUTAVEK 115
- Пароизоляция Ютафол Н110+скотч
- Отделка снаружи скандинавская доска толщиной 21мм с заводской покраской
- Утепление - пол, потолок, наружные стены 200мм Paroc Extra Light, перегородки 100мм
- Отделка внутри - без отделки
- Отделка пола - ОСП толщиной 22мм, на террасе лиственницей толщиной 28мм
- Кровля - металлочерепица толщиной 0,5мм PurLite Matt
- Окна ПВХ Rehau Grazio толщиной 70мм двойной стеклопакет 
- Двери входные - ПВХ Rehau толщиной 70мм Можем сделать ленточный или плитный фундамент! Цена и базовая комплектация -https://grey-house.ru/ceny/himos3/ Наши преимущества:
1. Бригады: постоянные, история строительства (фотоотчеты), можно выбрать понравившуюся
Оглавление

В работе дом по проекту Химос с 3-мя спальнями.

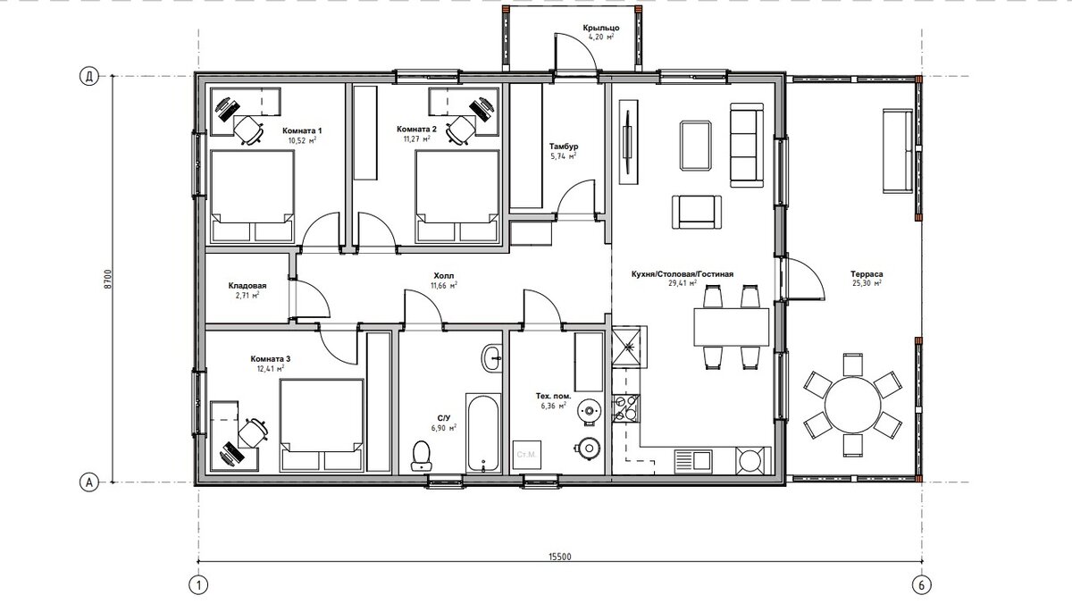
Размеры дома - 12,5х8,7м. Жилая площадь - 97 м2.

Планировка дома

Планировка каркасного дома
Планировка каркасного дома

Фотоотчет с объекта

Строим дом в КП "Южный парк", Домодедовский р-н.

Бригада возвела каркас дома. Монтирует стропильную систему.

Комплектация дома:
- Каркас дома сухой строганный 45х145мм
- Ветрозащита -
JUTAVEK 115
- Пароизоляция Ютафол Н110+скотч
- Отделка снаружи скандинавская доска толщиной 21мм
с заводской покраской
- Утепление - пол, потолок, наружные стены 200мм
 Paroc Extra Light, перегородки 100мм
- Отделка внутри - без отделки
- Отделка пола - ОСП толщиной 22мм, на террасе лиственницей толщиной 28мм
- Кровля - металлочерепица толщиной 0,5мм
 PurLite Matt
- Окна
ПВХ Rehau Grazio толщиной 70мм двойной стеклопакет 
- Двери входные -
ПВХ Rehau толщиной 70мм

Можем сделать ленточный или плитный фундамент!

Цена и базовая комплектация -https://grey-house.ru/ceny/himos3/

Наши преимущества:
1. Бригады: постоянные, история строительства (фотоотчеты), можно выбрать понравившуюся бригаду, можно посетить строящиеся объекты, почитать отзывы клиентов
2. Документация: детальная смета, чертежи дома в соответствии с нормами, разработанные конструктором
3. Премиальное качество и разумная цена

Заключаем договора на 2023 год с минимальной предоплатой. Заключив договор сейчас, Вы можете выбрать понравившуюся Вам бригаду.

***
Все новости читайте в нашем телеграм-канале

Подписывайтесь на нашу группу Вконтакте

И, конечно же, подписывайтесь на нас в «Дзене»

Наши контакты:
Телефон:
8-495-504-71-33
What’s App
mail@grey-house.ru
Сайт:
grey-house.ru