Найти в Дзене

Что входит в дизайн-проект?

Дизайн-проект — это концепция будущего интерьера, комплексный пакет документов с различными вариантами планировки квартиры/дома, схемами, техническими планами, 3D-визуализацией, иллюстрациями и подбором необходимых материалов и меблировки в соответствии с индивидуальными требованиями заказчика. Готовый проект также является инструкцией для строителей. У всех студий и дизайнеров состав дизайн-проекта может отличаться. Мы создали наиболее полный пакет услуг. В этой статье расскажем об услугах, входящих в дизайн-проект от Aleta interiors. А в самом конце будет важная новость 1. Планировочное решение. Мы предоставляем минимум 3 варианта планировочного решения и вместе выбираем наиболее подходящий для воплощения всех возможных сценариев жизни. 2. Чертежи, а именно 3. Фотореалистичные 3D-визуализации. Это возможность представить как будет выглядеть ваш интерьер еще до его реализации. Хорошая визуализация четко передает объем, особенности освещения, материалы, фактуры, расположение мебели.

Дизайн-проект — это концепция будущего интерьера, комплексный пакет документов с различными вариантами планировки квартиры/дома, схемами, техническими планами, 3D-визуализацией, иллюстрациями и подбором необходимых материалов и меблировки в соответствии с индивидуальными требованиями заказчика. Готовый проект также является инструкцией для строителей.

У всех студий и дизайнеров состав дизайн-проекта может отличаться. Мы создали наиболее полный пакет услуг.

В этой статье расскажем об услугах, входящих в дизайн-проект от Aleta interiors. А в самом конце будет важная новость

1. Планировочное решение. Мы предоставляем минимум 3 варианта планировочного решения и вместе выбираем наиболее подходящий для воплощения всех возможных сценариев жизни.

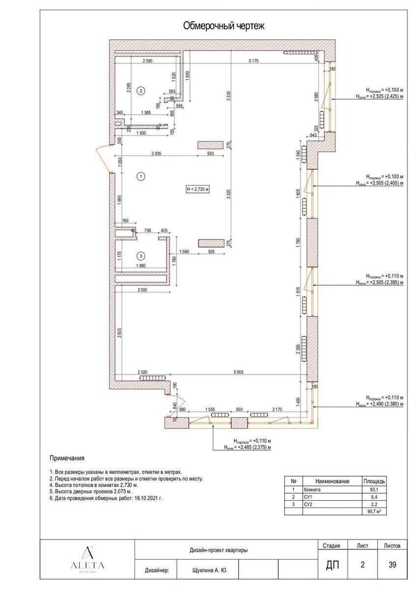
2. Чертежи, а именно

  • Обмерочный чертеж
  • План демонтажа стен и перегородок
  • План монтажа новых конструкций
  • План расстановки мебели
  • План потолков с указанием типа, используемого материала и сложных углов
  • План полов с указанием типа напольного покрытия.
  • План размещения электроустановочных изделий и осветительных приборов
  • Развертки стен
  • Эскизы мебели на заказ
  • Ведомость отделочных материалов
  • Ведомость осветительных приборов, сантехники и мебели

3. Фотореалистичные 3D-визуализации. Это возможность представить как будет выглядеть ваш интерьер еще до его реализации. Хорошая визуализация четко передает объем, особенности освещения, материалы, фактуры, расположение мебели. Вы можете визуально оценить общий вид помещения и словно потрогать каждый элемент интерьера.

За планировочным решением/ консультацией/ дизайн-проектом добро пожаловать в нашу студию!