Добавить в корзинуПозвонить
Найти в Дзене
GREY HOUSE

Приглашаем на просмотр дома!

Если вы планируете строительство дома весной или летом 2023 года, то сейчас самое время посетить стройку и познакомиться с бригадой.
Вначале этого года мы заключили договора (до 24 февраля), которые строили до середины июля. В начале нового года скорее всего не будет домов для просмотра. Они будут на начальном этапе строительства. Первые дома будут сданы не раньше марта. Немного о доме Дом по проекту Химос Размеры дома - 15х8,5м Планировка дома На каком этапе сейчас находится строительство? Дом снаружи практически готов. Осталось застелить пол террасы лиственницей. Внутри бригада разводит электрику. Дальше будет зашивать стены и потолок имитацией бруса. Комплектация дома:
- Каркас дома сухой строганный 45х145 + 50мм
- Ветрозащита - JUTAVEK 115
- Пароизоляция Ютафол Н110+скотч
- Отделка снаружи скандинавская доска толщиной 21мм с заводской покраской
- Утепление - пол, потолок, наружные стены 200мм Paroc Extra Light, перегородки 100мм
- Отделка внутри - имитация бруса толщиной 16мм 
- О
Оглавление

Если вы планируете строительство дома весной или летом 2023 года, то сейчас самое время посетить стройку и познакомиться с бригадой.
Вначале этого года мы заключили договора (до 24 февраля), которые строили до середины июля.

В начале нового года скорее всего не будет домов для просмотра. Они будут на начальном этапе строительства. Первые дома будут сданы не раньше марта.

Немного о доме

Дом по проекту Химос

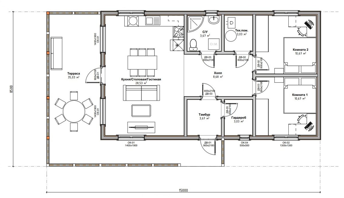
Размеры дома - 15х8,5м

Планировка дома

Планировка дома Химос
Планировка дома Химос

На каком этапе сейчас находится строительство?

Дом снаружи практически готов. Осталось застелить пол террасы лиственницей.

Внутри бригада разводит электрику. Дальше будет зашивать стены и потолок имитацией бруса.

Комплектация дома:
- Каркас дома сухой строганный 45х145 + 50мм
- Ветрозащита -
JUTAVEK 115
- Пароизоляция Ютафол Н110+скотч
- Отделка снаружи скандинавская доска толщиной 21мм
с заводской покраской
- Утепление - пол, потолок, наружные стены 200мм
 Paroc Extra Light, перегородки 100мм
- Отделка внутри - имитация бруса толщиной 16мм 
- Отделка пола на террасе лиственницей толщиной 28мм
- Кровля - металлочерепица толщиной 0,5мм
 PurLite Matt
- Окна
ПВХ Rehau Grazio толщиной 70мм двойной стеклопакет 
- Двери входные -
ПВХ Rehau толщиной 70мм
- Водосточная система
GrandLine

Дом расположен в деревне Лопотово, г.о. Солнечногорск. ГЕО

Запись на просмотр

***

Все новости читайте в нашем телеграм-канале

Подписывайтесь на нашу группу Вконтакте

И, конечно же, подписывайтесь на нас в «Дзене»

Цена и комплектация дома - https://grey-house.ru/ceny/himos/

Наши контакты:
Телефон:
8-495-504-71-33
What’s App
mail@grey-house.ru
Сайт:
grey-house.ru