Найти в Дзене

"Однушка на пятерых"! Как многодетная семья с тремя детьми живет в однокомнатной квартире.

Молодой не женатый Алексей купил однокомнатную квартиру для себя в Балашихе, вскоре он знакомится со своей будущей женой и вместе они переезжают в Казань из-за работы. А однушка так и остается стоять, ремонт в ней кстати сделать Алексей так и не успел. В Казани у ребят рождается трое детей и они решают переехать обратно всей семьей и встает вопрос где жить? Снимать квартиру, продать однушку и копить на другую квартиру... И вдруг жене пришла идея в голову, как разместить всё в квартире так, чтобы всем хватило места. Прихожая. Здесь жена продумала открытое хранение, потому что, когда все приходят с прогулки одежду нужно просушить, а в шкафах этого не сделать. Полка на колёсиках - это для детей, приходя с улицы они самостоятельно кладут каждый в своё отделение шапки, перчатки, тем самым не создается бардак. Пол в прихожей выложили серой плиткой. Кухня. Гарнитур и всю корпусную мебель заказывали в Казани. Гарнитур из ЛДСП, фасады - плиты AGT. Обеденный стол куплен много лет назад в Икеа и

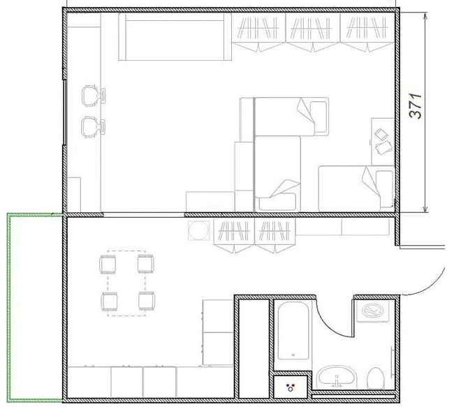
Молодой не женатый Алексей купил однокомнатную квартиру для себя в Балашихе, вскоре он знакомится со своей будущей женой и вместе они переезжают в Казань из-за работы. А однушка так и остается стоять, ремонт в ней кстати сделать Алексей так и не успел. В Казани у ребят рождается трое детей и они решают переехать обратно всей семьей и встает вопрос где жить? Снимать квартиру, продать однушку и копить на другую квартиру... И вдруг жене пришла идея в голову, как разместить всё в квартире так, чтобы всем хватило места.

План квартиры, который придумала жена
План квартиры, который придумала жена

Прихожая. Здесь жена продумала открытое хранение, потому что, когда все приходят с прогулки одежду нужно просушить, а в шкафах этого не сделать. Полка на колёсиках - это для детей, приходя с улицы они самостоятельно кладут каждый в своё отделение шапки, перчатки, тем самым не создается бардак. Пол в прихожей выложили серой плиткой.

-2

Кухня. Гарнитур и всю корпусную мебель заказывали в Казани. Гарнитур из ЛДСП, фасады - плиты AGT. Обеденный стол куплен много лет назад в Икеа и переехал с ними из Казани, стулья тоже куплены в Икее.

-3

В этой угловой колонне вся встроенная техника.

-4

На фартуке керамогранит под дерево, что очень удобно, на нём не видно брызг и разводов. От вытяжки отказались, хозяйка итак ей никогда не пользовалась.

-5

Кухню и комнату разделяет портал со шторой. От дверей отказались по понятным причинам из-за нехватки места.

-6

Вдоль окна большой рабочий стол, с комодами по бокам. Он и место для макияжа, и место для работы. А также может служить местом для уроков в будущем.

-7

Для сна супруги используют раскладную кушетку из Икеи, изначально хотели установить шкаф с откидной кроватью, но она занимает много места и от этой идеи отказались.

-8

Центр комнаты-это игровая зона. Площадь от окна до перегородки 13 кв.м. этого хватает троим детям для игр. Система стеллажей обеспечивает порядок в игрушках.

-9

Спальные места от игровой зоны отделяет перегородка с перфорацией, она играет не только декоративную роль. Её установили, чтобы дети не тянулись за игрушками, когда ложатся спать.

-10

В спальной зоне поместился комод для вещей на три отделения для каждого ребенка.

-11

В углу большой трехметровый шкаф. В нём хранится всё: одежда, постельное бельё, есть место для пылесоса, гладильной доски и сушилки.

-12

Санузел. Площадь 3,75 кв.м, в отделке использованы те же цвета и фактуры, что и в комнате. Раковину заказали асимметричную и без подстолья, чтобы под ней поместилась корзина для белья.

-13

Чистые полотенца хранятся на полке над дверью, бытовая химия в узком закрытом шкафчике.

-14

Вот такая уютная и светлая квартира получилась по задумке жены. Конечно в будущем планируется расширение, но до него можно комфортно и счастливо жить в такой классной однушке.