Добавить в корзинуПозвонить
Найти в Дзене

Телевизор под лестницей

В некоторых наших проектах представлено решение, когда под лестницей устраивается зона с телевизором. Иногда меня спрашивают – а это как вообще? Это удобно? Ниже несколько примеров. Обратите внимание на такой момент – в большинстве примеров телевизор находится под первым (низким) пролетом лестницы. У нас чаще вариант использования пространства под вторым (высоким) пролетом лестницы – от 1,4 до 3м метров. Один пролет лесницы это примерно 3м2 жилого пространства и в небольших домах разбрасываться этими квадратами на мой взгляд непозволительная роскошь. =) Пример из проекта: Кроме тв-зоны пространство под лестницей можно использовать и другими способами, вот один из примеров: https://hauzez.com/kak-ispolzovat-prostranstvo-pod-lestnicej-v-gostinoj/

В некоторых наших проектах представлено решение, когда под лестницей устраивается зона с телевизором. Иногда меня спрашивают – а это как вообще? Это удобно?

Ниже несколько примеров. Обратите внимание на такой момент – в большинстве примеров телевизор находится под первым (низким) пролетом лестницы.

У нас чаще вариант использования пространства под вторым (высоким) пролетом лестницы – от 1,4 до 3м метров.

Один пролет лесницы это примерно 3м2 жилого пространства и в небольших домах разбрасываться этими квадратами на мой взгляд непозволительная роскошь. =)

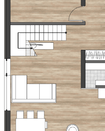
Пример из проекта:

часть планировки из типового проекта hauzez.com
часть планировки из типового проекта hauzez.com
-2
-3

-4
-5

Кроме тв-зоны пространство под лестницей можно использовать и другими способами, вот один из примеров:

https://hauzez.com/kak-ispolzovat-prostranstvo-pod-lestnicej-v-gostinoj/