Найти в Дзене
Дима дизайнер

Переделал двушку в четырехкомнатную квартиру

Сегодня расскажу про объемно-планировочное решение, которое от начала до конца проектирования было максимально удачным и интересным. Речь об апартах 72метра в Московском ЖК Серебряный Фонтан. Как я переделал двушку в четырешку. Планировка изначально очень удачная: Изначально застройщик предлагает не совсем удачную, в моем понимании, планировку с кривым бесполезным коридором и проемом в спальню очень близко к входной двери. Хотя, в целом все неплохо. Задача заказчика куда сложнее: После пары ночей за перебором различных вариантов и переносом стен в скейче, получилось собрать все почти все хотелки заказчика. Согласовал планировочное с первого раза. Да, такое возможно. Что получилось в итоге: Все спальни довольно небольшой площади , поэтому монтаж системы постоянного притока воздуха обсуждался изначально. В итоге получилась классная современная квартира в которой решены все задачи, поставленные заказчиком: Как вам такое решение?
ЖК фото в свободном доступе
ЖК фото в свободном доступе

Сегодня расскажу про объемно-планировочное решение, которое от начала до конца проектирования было максимально удачным и интересным. Речь об апартах 72метра в Московском ЖК Серебряный Фонтан. Как я переделал двушку в четырешку.

Планировка изначально очень удачная:

  • Помещение максимально правильной формы, приближено к квадрату, без кривых стен и острых углов;
  • С большим количеством окон по двум сторонам;
  • Наличие двух подводов воды с разной стороны от входной группы
  • Большая высота помещения.
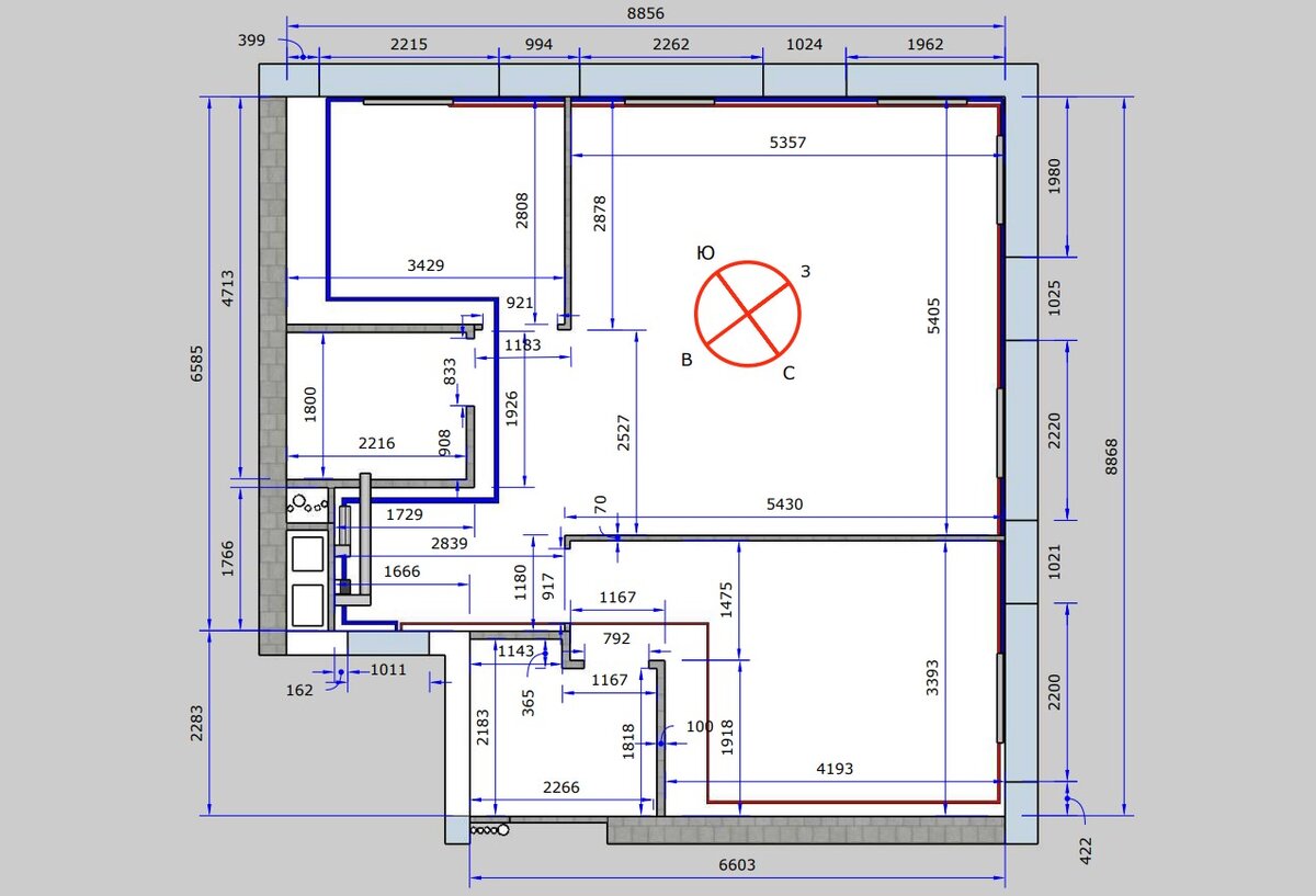
изначальная планировка по замеру
изначальная планировка по замеру

Изначально застройщик предлагает не совсем удачную, в моем понимании, планировку с кривым бесполезным коридором и проемом в спальню очень близко к входной двери. Хотя, в целом все неплохо.

Задача заказчика куда сложнее:

  • Обязательно наличие двух санузлов;
  • Постоянная готовка дома, а следовательно полноценная кухня;
  • Обеденная зона+барная стойка или остров;
  • Три спальни, одна из которых обязательно с угловым окном;
  • Достаточное кол-во мест хранения;
  • Стиральная -сушильная машины, в идеале в кладовой или постирочной.
Фотографии объекта
Фотографии объекта

После пары ночей за перебором различных вариантов и переносом стен в скейче, получилось собрать все почти все хотелки заказчика. Согласовал планировочное с первого раза. Да, такое возможно.

Что получилось в итоге:

  • Небольшая прихожая с почти полутораметровой гардеробной зоной. Несмотря на то что прихожая является частью ливингрума, входная дверь не просматривается и от входа не видно основного жилого пространства;
  • Трехметровая островная кухня, глубиной в метр, с дополнительным двухметровым пеналом для хранения в потолок, самый идеальный и удобный вариант для готовки. Также кухонный остров является барной стойкой со стороны гостиной;
  • Столовая для 4, максимум 6, человек;
  • Мягкая зона с диваном 2,6х1,5метра не размазанным по стене, что важно для общего стиля пространства;
ливингрум общей площадью - 35,8 м.кв.
ливингрум общей площадью - 35,8 м.кв.
  • Санузел с функцией постирочной, спрятанной за сдвижной фальшстенкой. Спрятаны стиральная и сушильная машина в колонну, водонагреватель большого объема и вся бытовая химия, средства для уборки и т.д.
  • Ванная комната с ванной 1,7метра и двумя мойками.
санузел с скрытой хоз-бытовой частью
санузел с скрытой хоз-бытовой частью
ванная комната
ванная комната
  • Хозяйская спальня. Просто спальня с зоной мейка и небольшим хранением, в процессе ремонта можно сменить мейк на большой полноценный шкаф;
  • Кабинет/гостевая комната, в дальнейшем детская;
  • Детская с угловым окном. Одну из стен пришлось немного загнуть, т.к. иначе примыкание было в окно. Но это дало возможность стилистически улучшить зону гостиной и получить нишу под спальное место в самой комнате;

Все спальни довольно небольшой площади , поэтому монтаж системы постоянного притока воздуха обсуждался изначально.

спальни
спальни

В итоге получилась классная современная квартира в которой решены все задачи, поставленные заказчиком:

  • зона прихожей - 2,85 м.кв.;
  • зона кухни - 9,2 м.кв.;
  • зона гостиной столовой - 23,7 м.кв.;
  • санузел / постирочная - 3 м.кв.;
  • ванная комната - 3,5 м.кв.;
  • спальня - 9,8 м.кв.;
  • кабинет - 8,7 м.кв.;
  • детская - 8,3 м.кв.;
итоговое планировочное решение
итоговое планировочное решение
перспективный вид с 3Д модели
перспективный вид с 3Д модели
перспективный вид с 3Д модели Добавьте описание
перспективный вид с 3Д модели Добавьте описание
перспективный вид с 3Д модели Добавьте описание
перспективный вид с 3Д модели Добавьте описание

Как вам такое решение?